← Back to Wakefield Council

Status

Awaiting decision
Received
30 Jul 2025
New dwellings
n/a

Summary

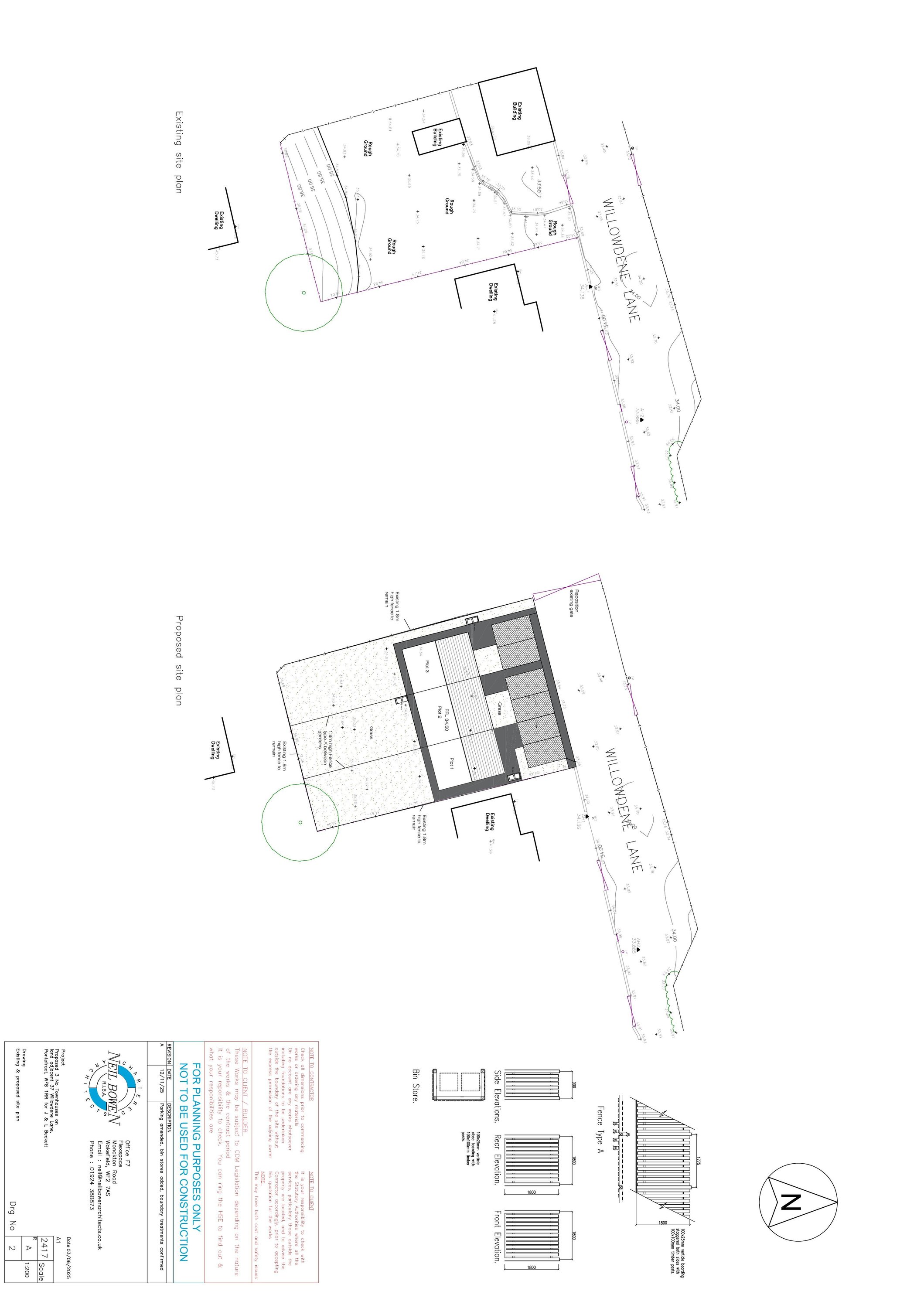
Construction of three new dwellings.

Full Proposal

Residential Development of Three Dwellings

Documents

APPLICATIONFORMREDACTED
Application Form
Not archived · Council Link
BIODIVERSITY STATEMENT
Supporting Documentation
Not archived · Council Link
BNG Metric
BNG Metric
Not archived · Council Link
Amended Drawing
Archived · Council Link
HABITAT PLAN
Drawing
Not archived · Council Link
HIGHWAYS DEVELOPMENT MANAGEMENT WAKEFIELD COUNCIL
Consultee Comment
Not archived · Council Link
HIGHWAYS DEVELOPMENT MANAGEMENT WAKEFIELD COUNCIL
Consultee Comment
Not archived · Council Link
NOISE IMPACT ASSESSMENT
Noise Documentation
Not archived · Council Link
ORDNANCE SURVEY
Drawing
Not archived · Council Link
PLANNING STATEMENT
Planning Statement
Not archived · Council Link
WAKEFIELD COUNCIL DRAINAGE
Consultee Comment
Not archived · Council Link
WAKEFIELD COUNCIL ECOLOGIST
Consultee Comment
Not archived · Council Link
YORKSHIRE WATER
Consultee Comment
Not archived · Council Link
YORKSHIRE WATER
Consultee Comment
Not archived · Council Link

Take Action

Make your voice heard. Authorities need to hear from people who support new homes.

✉️ Write Email in Support View on Council Portal