← Back to Wakefield Council

Status

Awaiting decision
Received
19 Aug 2025
New dwellings
n/a

Summary

Erection of 30 affordable residential dwellings with associated infrastructure and landscaping.

Full Proposal

Full planning application for the erection of 30 affordable dwellings (Use Class C3), internal highways, landscaping, open space and associated infrastructure and works

Documents

2B 3P PROPOSED ELEVATIONS
Drawing
Not archived · Council Link
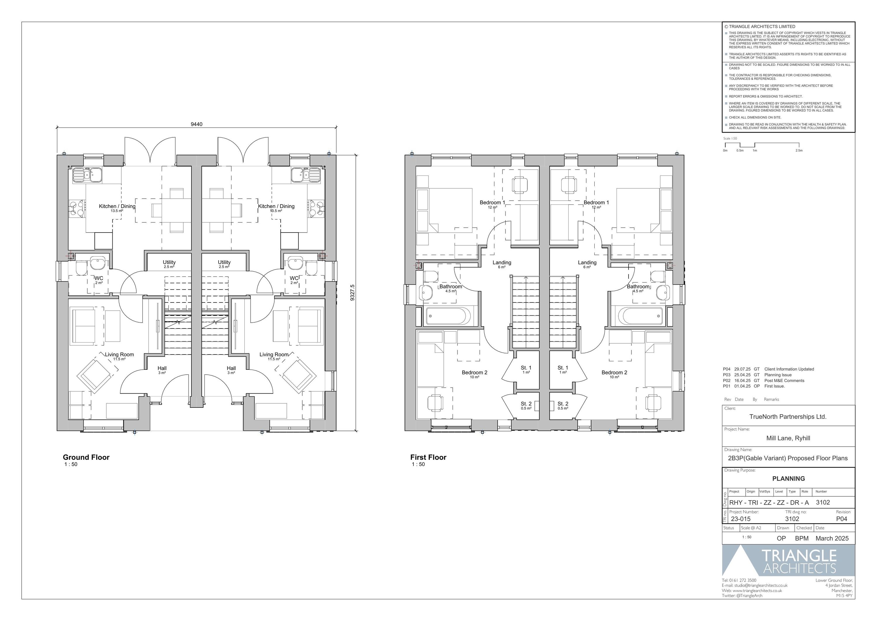
2B 3P PROPOSED ELEVATIONS GABLE VARIANT
Drawing
Not archived · Council Link
2B 3P PROPOSED SECTIONS
Drawing
Not archived · Council Link
2B 3P PROPOSED SECTIONS
Drawing
Not archived · Council Link
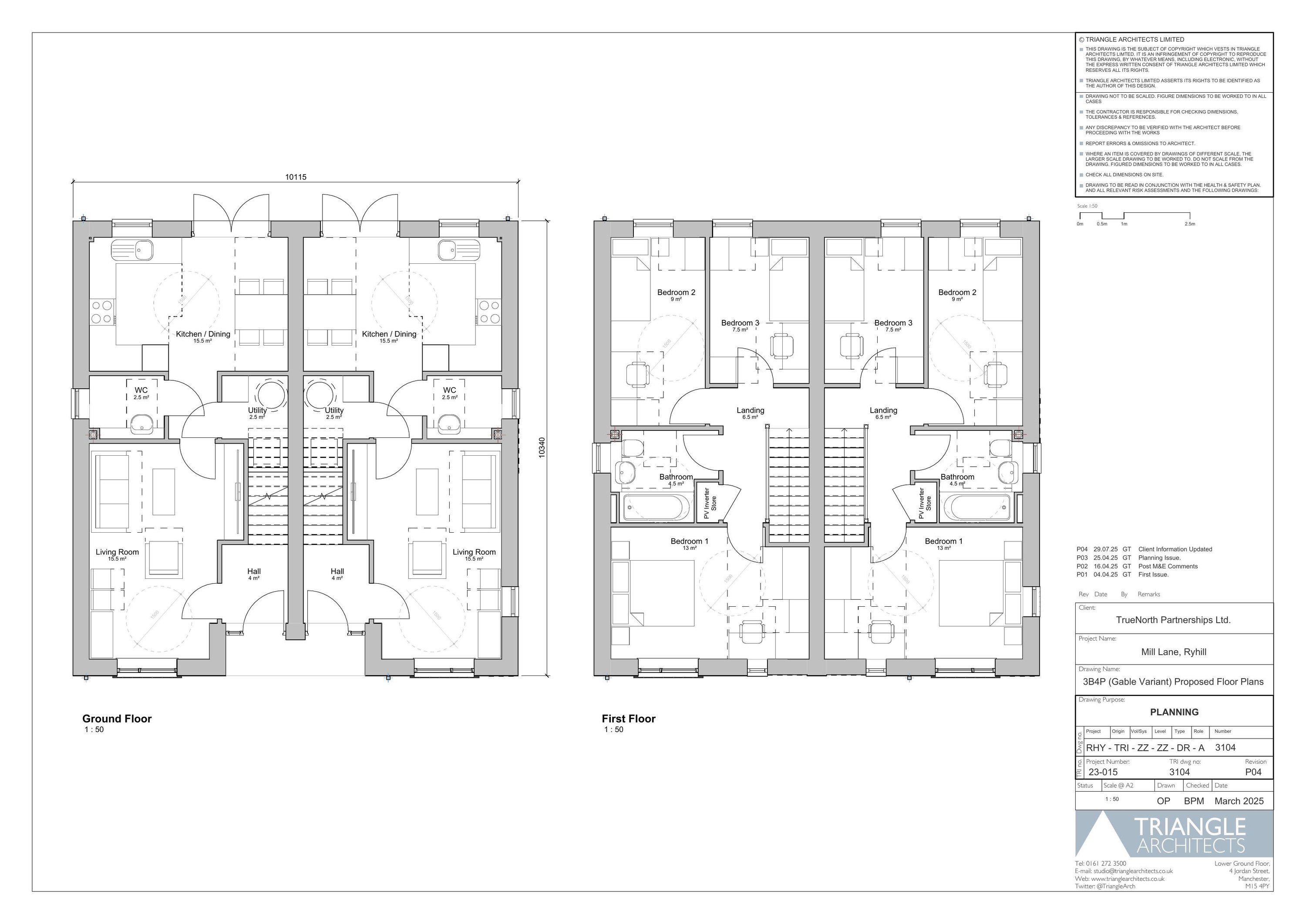
3B 4P PROPOSED ELEVATIONS
Drawing
Not archived · Council Link
3B 4P PROPOSED ELEVATIONS GABLE VARIANT
Drawing
Not archived · Council Link
3B 4P PROPOSED GA SECTIONS
Drawing
Not archived · Council Link
4B 5P FLOOR PLANS
Drawing
Not archived · Council Link
4B 5P PROPOSED ELEVATIONS
Drawing
Not archived · Council Link
4B 5P SECTIONS
Drawing
Not archived · Council Link
APPLICATION FORM REDACTED
Application Form
Not archived · Council Link
BNG Metric
BNG Metric
Not archived · Council Link
BOUNDARY TREATMENT PLAN
Drawing
Not archived · Council Link
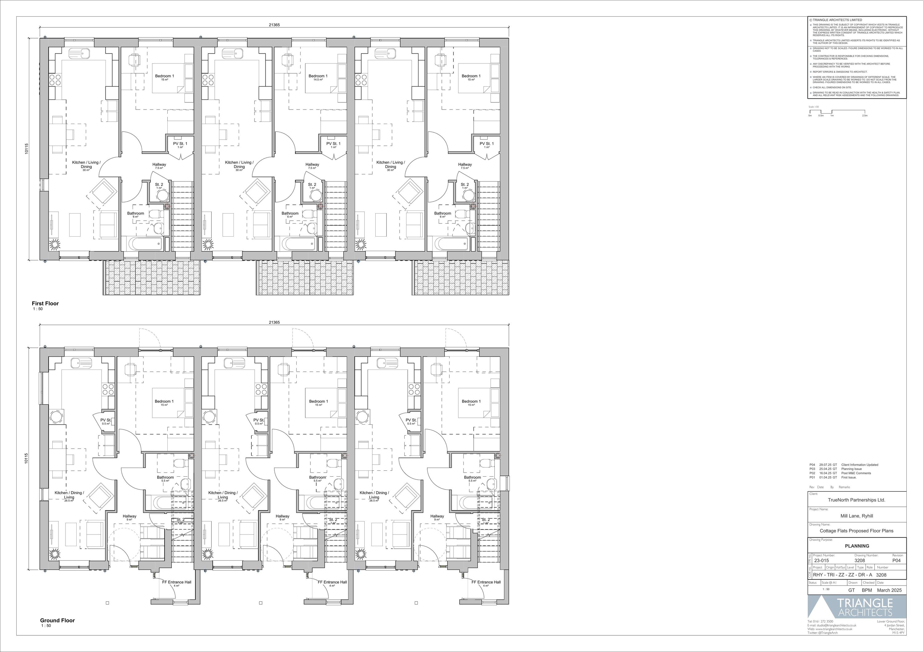
COTTAGE FLATS ELEVATIONS
Drawing
Not archived · Council Link
COTTAGE FLATS SECTIONS
Drawing
Not archived · Council Link
COVER LETTER REDACTED
Correspondence
Not archived · Council Link
DESIGN & ACCESS STATEMENT
Design and Access Statement
Not archived · Council Link
DESIGN & ACCESS STATEMENT 2
Design and Access Statement
Not archived · Council Link
DETAILED PLANTING PLAN
Drawing
Not archived · Council Link
DRAINAGE STRATEGY
Drawing
Not archived · Council Link
EDNA ANALYSIS
Ecological Documentation
Not archived · Council Link
Drawing
Archived · Council Link
FLOOD RISK ASSESSMENT & DRAINAGE STRATEGY
Flood Risk/Run Off Impact Assessment
Not archived · Council Link
FRAMEWORK RESIDENTIAL TRAVEL PLAN
Supporting Documentation
Not archived · Council Link
HEALTH IMPACT ASSESSMENT PLANNING TOOLKIT
Supporting Documentation
Not archived · Council Link
HIGHWAYS DEVELOPMENT MANAGEMENT WAKEFIELD COUNCIL
Consultee Comment
Not archived · Council Link
HIGHWAYS DEVELOPMENT MANAGEMENT WAKEFIELD COUNCIL
Consultee Comment
Not archived · Council Link
LAND QUALITY WAKEFIELD COUNCIL
Consultee Comment
Not archived · Council Link
LAND QUALITY WAKEFIELD COUNCIL
Consultee Comment
Not archived · Council Link
LANDSCAPE MANAGEMENT PLAN
Landscaping Documentation
Not archived · Council Link
LETTER & NOTICE 1
Supporting Documentation
Not archived · Council Link
LETTER OF OBJECTION
Objection Comment
Not archived · Council Link
LEVELS STRATEGY
Drawing
Not archived · Council Link
LNADSCAPE LAYOUT
Drawing
Not archived · Council Link
LONG SECTIONS
Drawing
Not archived · Council Link
Objection Comment
Objection Comment
Not archived · Council Link
OBJECTS
Public Comment
Not archived · Council Link
OBJECTS
Public Comment
Not archived · Council Link
PHASE 1 AND PHASE 2 GROUND INVESTIGATION REPORTS
Land Quality Documentation
Not archived · Council Link
PLANNING STATEMENT
Planning Statement
Not archived · Council Link
PRELIMINARY ECOLOGICAL APPRAISAL REPORT
Ecological Documentation
Not archived · Council Link
PRELIMINARY ECOLOGICAL APPRAISAL REPORT
Ecological Documentation
Not archived · Council Link
PROPOSED BLOCK-ROOF PLAN
Drawing
Not archived · Council Link
Superseded Drawing
Archived · Council Link
Drawing
Archived · Council Link
SCHOOL PLACE PLANNING
Consultee Comment
Not archived · Council Link
SCHOOL PLACE PLANNING
Consultee Comment
Not archived · Council Link
Drawing
Archived · Council Link
Site Notice
Site Notice
Not archived · Council Link
STAGE 1 ROAD SAFETY
Highways/Transport Documentation
Not archived · Council Link
STAGE 1 ROAD SAFETY
Highways/Transport Documentation
Not archived · Council Link
STREET ELEVATIONS
Drawing
Not archived · Council Link
STREET ELEVATIONS 2
Drawing
Not archived · Council Link
SUSTAINABILITY STATEMENT
Supporting Documentation
Not archived · Council Link
TPO Officer Consultee Comment
TPO Officer Consultee Comment
Not archived · Council Link
TPO Officer Consultee Comment
TPO Officer Consultee Comment
Not archived · Council Link
TRANSPORT STATEMENT REDACTED
Supporting Documentation
Not archived · Council Link
TREE RESPONSE
Supporting Documentation
Not archived · Council Link
WAKEFIELD COUNCIL DRAINAGE
Consultee Comment
Not archived · Council Link
WAKEFIELD COUNCIL DRAINAGE
Consultee Comment
Not archived · Council Link
WAKEFIELD COUNCIL SENIOR ECOLOGIST
Consultee Comment
Not archived · Council Link
WAKEFIELD COUNCIL SENIOR ECOLOGIST
Consultee Comment
Not archived · Council Link
WAKEFIELD COUNCIL STRATEGIC HOUSING
Consultee Comment
Not archived · Council Link
WAKEFIELD COUNCIL STRATEGIC HOUSING
Consultee Comment
Not archived · Council Link
WAKEFIELD COUNCIL STRATEGIC HOUSING
Consultee Comment
Not archived · Council Link
WAKEFIELD COUNCIL URBAN DESIGNER
Urban Designer Consultation Response
Not archived · Council Link
WAKEFIELD COUNCIL URBAN DESIGNER
Urban Designer Consultation Response
Not archived · Council Link
WEST YORKSHIRE POLICE DOCO
Consultee Comment
Not archived · Council Link
YORKSHIRE WATER
Consultee Comment
Not archived · Council Link

Take Action

Make your voice heard. Authorities need to hear from people who support new homes.

✉️ Write Email in Support View on Council Portal