← Back to Wakefield Council

Status

Awaiting decision
Received
28 Aug 2025
New dwellings
n/a

Summary

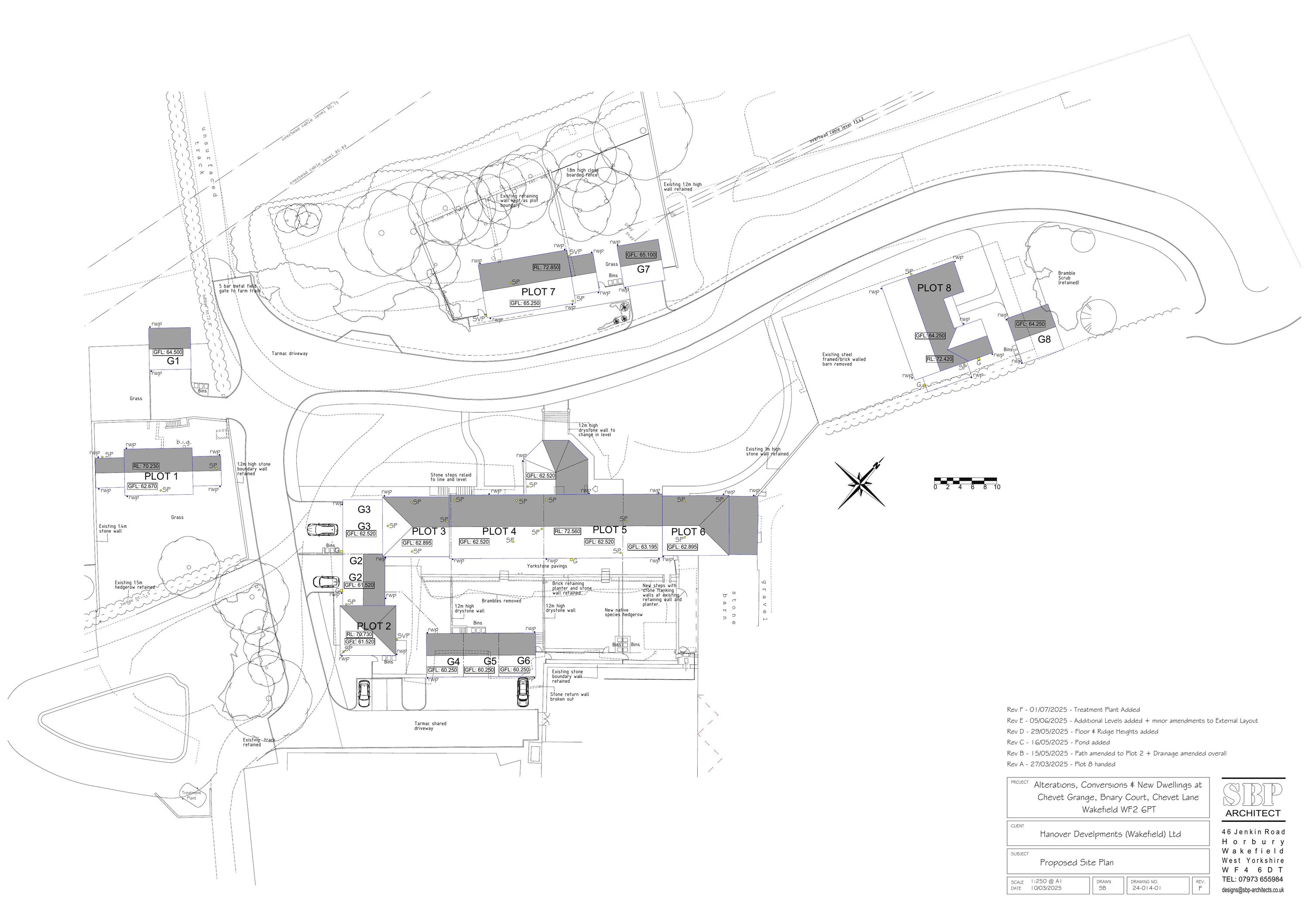
Conversion of listed barns and cottages to residential use plus new-build enabling works totalling eight units.

Full Proposal

Conversion of Listed Barns to Residential Use. Re-furbishment of Existing Labourers' Cottages. New-build, enabling works - 3 Units all with associated Garaging & Parking Spaces. In the following 6 no. Phases: Phase 1: Construction of amended access & provision of infrastructure to include services, drainage & creation of Parking & Storage Compounds Phase 2: Plot 2 Phase 3: Conversion of Units 3, 4, 5 & 6 and demolition of existing modern brick agricultural building Phase 4: Re-furbishment of Plot 1 Phase 5: Plot 7 Phase 6: Plot 8

Documents

(SALES DRAWING - KIOSKS)
Superseded Document
Not archived · Council Link
-ACCESS_ALTERATIONS
Drawing
Not archived · Council Link
-PASSING_PLACES
Drawing
Not archived · Council Link
1 - HERITAGE ASSESSMENT
Heritage Statement
Not archived · Council Link
110.011 - 100YR CALC
Superseded Document
Not archived · Council Link
110.011 - 1YR CALC
Superseded Document
Not archived · Council Link
110.011 - 30YR CALC
Superseded Document
Not archived · Council Link
2 - HERITAGE ASSESSMENT PLATES
Heritage Statement
Not archived · Council Link
3- HERITAGE ASSESSMENT FIGURES - 1-10
Heritage Statement
Not archived · Council Link
4 - HERITAGE ASSESSMENT FIGURES - 11-14
Heritage Statement
Not archived · Council Link
5 - HERITAGE ASSESSMENT APPENDIX
Heritage Statement
Not archived · Council Link
APPLICATIONFORMREDACTED
Application Form
Not archived · Council Link
BIODISC 1100MM INVERT
Superseded Document
Not archived · Council Link
CONSERVATION
Consultee Comment
Not archived · Council Link
CONSERVATION ENGINEERING ASSESSMENT REPORT
Supporting Documentation
Not archived · Council Link
Conservation Officer Consultee Comments
Conservation Officer Consultee Comments
Not archived · Council Link
Conservation Officer Consultee Comments
Conservation Officer Consultee Comments
Not archived · Council Link
EXISTING BARN ELEVATIONS
Drawing
Not archived · Council Link
Drawing
Archived · Council Link
EXTERNAL WORKS LAYOUT
Superseded Document
Not archived · Council Link
FPM-SB1-01000-00330-0100-PR
Superseded Document
Not archived · Council Link
HIMALAYAN BALSAM: NON-NATIVE SPECIES PROTOCOL
Superseded Drawing
Not archived · Council Link
IMPERMEABLE AREAS LAYOUT
Superseded Document
Not archived · Council Link
INSTALLATION GUIDELINES CLASSIC
Superseded Document
Not archived · Council Link
LANDSCAPE MANAGEMENT PLAN
Superseded Document
Not archived · Council Link
LOCATION
Drawing
Not archived · Council Link
PARKING SCHEDULE CHEVET
Drawing
Not archived · Council Link
PLOT 1 - EXISTING PLANS
Drawing
Not archived · Council Link
PLOTS 2-6 - PROPOSED ELEVATIONS I
Superseded Drawing
Not archived · Council Link
PLOTS 2-6 - PROPOSED ELEVATIONS I
Drawing
Not archived · Council Link
PLOTS 2-6 - PROPOSED ELEVATIONS I
Drawing
Not archived · Council Link
PLOTS 2-6 - PROPOSED ELEVATIONS I
Superseded Drawing
Not archived · Council Link
PLOTS 2-6 - PROPOSED ELEVATIONS II
Superseded Drawing
Not archived · Council Link
PLOTS 2-6 - PROPOSED ELEVATIONS II
Drawing
Not archived · Council Link
PLOTS 2-6 - PROPOSED ELEVATIONS II
Drawing
Not archived · Council Link
PLOTS 2-6 - PROPOSED GF PLANS
Drawing
Not archived · Council Link
PLOTS 2-6 - PROPOSED GROUND FLOOR PLANS
Superseded Drawing
Not archived · Council Link
PLOTS 2-6 - PROPOSED GROUND FLOOR PLANS
Superseded Drawing
Not archived · Council Link
PLOTS 2-6 - PROPOSED UF PLANS
Drawing
Not archived · Council Link
PLOTS 2-6 - PROPOSED UPPER FLOOR PLANS
Superseded Drawing
Not archived · Council Link
PLOTS 2-6 - PROPOSED UPPER FLOOR PLANS
Superseded Drawing
Not archived · Council Link
PLOTS 3-6 - EXISTING ELEVATIONS
Drawing
Not archived · Council Link
PLOTS 3-6 - EXISTING PLANS
Drawing
Not archived · Council Link
PRELIMINARY EXTERNAL LIGHTING & ASSESSMENT
Superseded Drawing
Not archived · Council Link
PRIVATE DRAINAGE LAYOUT 1
Superseded Document
Not archived · Council Link
PRIVATE DRAINAGE LAYOUT 2
Superseded Document
Not archived · Council Link
SBP - DESIGN AND ACCESS STATEMENT
Design and Access Statement
Not archived · Council Link
SBP HERITAGE IMPACT STATEMENT
Heritage Statement
Not archived · Council Link
SECTION 106 DRAFT
Supporting Documentation
Not archived · Council Link
SITE MANAGEMENT PLAN
Drawing
Not archived · Council Link
Site Notice
Site Notice
Not archived · Council Link
Landscaping Documentation
Archived · Council Link
Drawing
Archived · Council Link
Drawing
Archived · Council Link
Drawing
Archived · Council Link
Drawing
Archived · Council Link
Drawing
Archived · Council Link
Drawing
Archived · Council Link
Drawing
Archived · Council Link
SWEPT PATH ANALYSIS
Supporting Documentation
Not archived · Council Link
TYPICAL DRAINAGE DETAILS 1
Superseded Document
Not archived · Council Link
TYPICAL DRAINAGE DETAILS 2
Superseded Document
Not archived · Council Link
TYPICAL DRAINAGE DETAILS 3
Superseded Document
Not archived · Council Link
WILDLIFE ENHANCEMENT PLAN ? ADDENDUM
Superseded Drawing
Not archived · Council Link
WILDLIFE ENHANCEMENT PLAN PLAN
Superseded Drawing
Not archived · Council Link
WYA
Consultee Comment
Not archived · Council Link

Take Action

Make your voice heard. Authorities need to hear from people who support new homes.

✉️ Write Email in Support View on Council Portal