← Back to Wakefield Council

Status

Unknown
Received
22 Sep 2025
New dwellings
n/a

Full Proposal

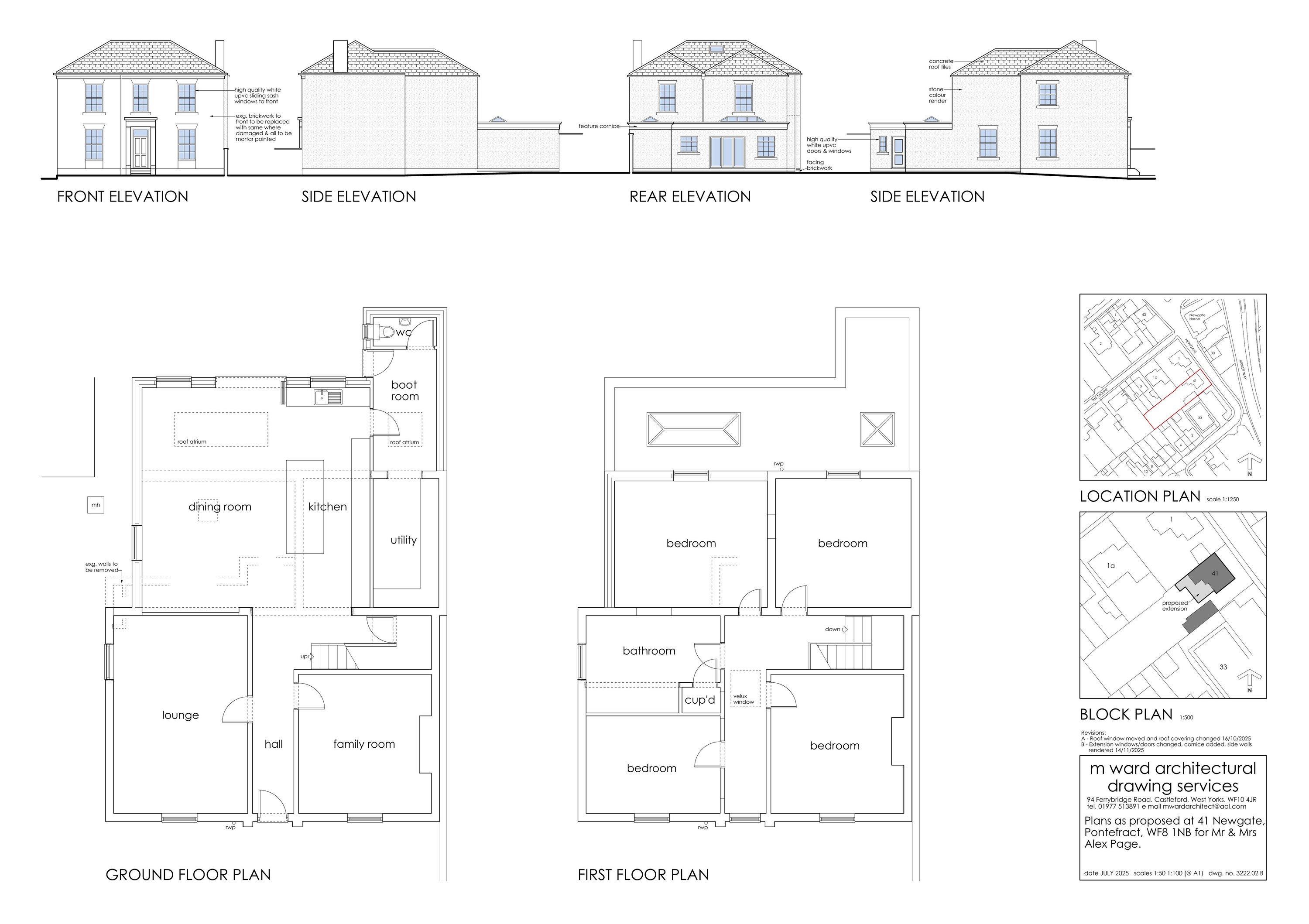
Proposed change of use from dwelling with dance studio to dwelling, part two storey part single story extension to rear, alterations to existing building comprising new and replacement openings to side and front, rooflight to rear, render to sides

Documents

41 NEWGATE PONTEFRACT EXISTING PLANS
Drawing
Not archived · Council Link
APPLICATIONFORMREDACTED
Application Form
Not archived · Council Link
Conservation Officer Consultee Comments
Conservation Officer Consultee Comments
Not archived · Council Link
Conservation Officer Consultee Comments
Conservation Officer Consultee Comments
Not archived · Council Link
DESIGN AND HERITAGE STATEMENT
Heritage Statement
Not archived · Council Link
Amended Drawing
Archived · Council Link
Site Notice
Site Notice
Not archived · Council Link
Site Notice
Site Notice
Not archived · Council Link
WINDOW DETAILS
Supporting Documentation
Not archived · Council Link

Take Action

Make your voice heard. Authorities need to hear from people who support new homes.

✉️ Write Email in Support View on Council Portal