← Back to Wakefield Council

Status

Decided
Received
07 Oct 2025
New dwellings
n/a

Summary

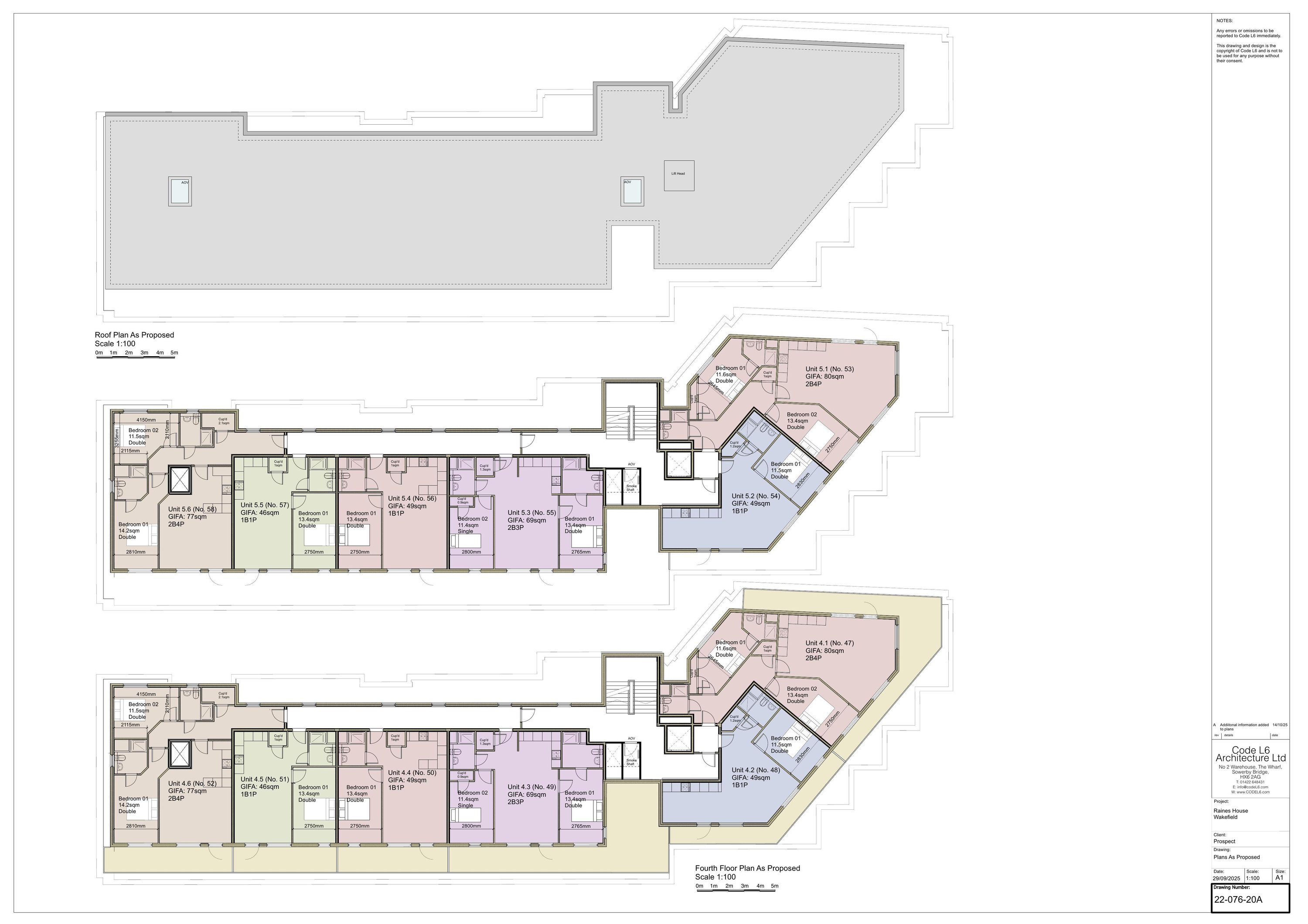
Add fourth and fifth storeys to create 12 flats (6x1-bed, 6x2-bed); part retrospective.

Full Proposal

Construction of 4th and 5th storey to create 12 residential units consisting of 6no. one bedroom units and 6no. two bedroom units. (Part retrospective)

Documents

Application Form
Application Form
Not archived · Council Link
APPLICATIONFORMREDACTED
Application Form
Not archived · Council Link
BIN AND CYCLE STORE DETAIL
Drawing
Not archived · Council Link
BOUNDARY TREATMENTS
Drawing
Not archived · Council Link
Case Officer Report
Case Officer Report
Not archived · Council Link
COMMENTS FROM HOUSING
Consultee Comment
Not archived · Council Link
Conservation Officer Consultee Comments
Conservation Officer Consultee Comments
Not archived · Council Link
CRIME PREVENTION STATEMENT
Supporting Documentation
Not archived · Council Link
Decision Notice
Decision Notice
Not archived · Council Link
ELEVATION 01 AS PROPOSED
Amended Drawing
Not archived · Council Link
ELEVATION 02 AS PROPOSED
Amended Drawing
Not archived · Council Link
ENERGY USAGE REPORT
Supporting Documentation
Not archived · Council Link
FLOOR PLANS AS PROPOSED
Amended Drawing
Not archived · Council Link
HEALTH IMPACT ASSESSMENT
Supporting Documentation
Not archived · Council Link
HIGHWAYS DEVELOPMENT MANAGEMENT WAKEFIELD COUNCIL
Consultee Comment
Not archived · Council Link
LOCATION PLAN
Drawing
Not archived · Council Link
PLANNING AND HERITAGE STATEMENT
Heritage Statement
Not archived · Council Link
Planning Statement
Planning Statement
Not archived · Council Link
PLANS AS PROPOSED
Amended Drawing
Not archived · Council Link
PROPOSED ELEVATIONS 01
Superseded Drawing
Not archived · Council Link
PROPOSED ELEVATIONS 01
Drawing
Not archived · Council Link
PROPOSED ELEVATIONS 02
Superseded Drawing
Not archived · Council Link
PROPOSED ELEVATIONS 02
Drawing
Not archived · Council Link
Superseded Drawing
Archived · Council Link
PROPOSED GF PLAN
Drawing
Not archived · Council Link
PROPOSED ROOF/FOURTH AND FIFTH FLOOR PLAN
Drawing
Not archived · Council Link
SAP REPORT
Supporting Documentation
Not archived · Council Link
SAP REPORT
Supporting Documentation
Not archived · Council Link
SAP REPORT
Supporting Documentation
Not archived · Council Link
SAP REPORT
Supporting Documentation
Not archived · Council Link
Site Notice
Site Notice
Not archived · Council Link
Drawing
Archived · Council Link
Amended Drawing
Archived · Council Link
Amended Drawing
Archived · Council Link
Amended Drawing
Archived · Council Link
STRATEGIC HOUSING
Consultee Comment
Not archived · Council Link
SUPPORTING STATEMENT
Supporting Documentation
Not archived · Council Link
WAKEFIELD COUNCIL - HEALTH IMPROVEMENT SPECIALIST
Consultee Comment
Not archived · Council Link
WAKEFIELD COUNCIL - HEALTH IMPROVEMENT SPECIALIST
Consultee Comment
Not archived · Council Link
WAKEFIELD COUNCIL DRAINAGE
Consultee Comment
Not archived · Council Link
WEST YORKSHIRE POLICE DOCO
Consultee Comment
Not archived · Council Link
WEST YORKSHIRE POLICE DOCO
Consultee Comment
Not archived · Council Link
WYPLO
Consultee Comment
Not archived · Council Link
WYPLO
Consultee Comment
Not archived · Council Link
WYPLO
Consultee Comment
Not archived · Council Link
WYPLO
Consultee Comment
Not archived · Council Link

Take Action

Make your voice heard. Authorities need to hear from people who support new homes.

✉️ Write Email in Support View on Council Portal