← Back to Wakefield Council

Status

Awaiting decision
Received
24 Nov 2025
New dwellings
n/a

Full Proposal

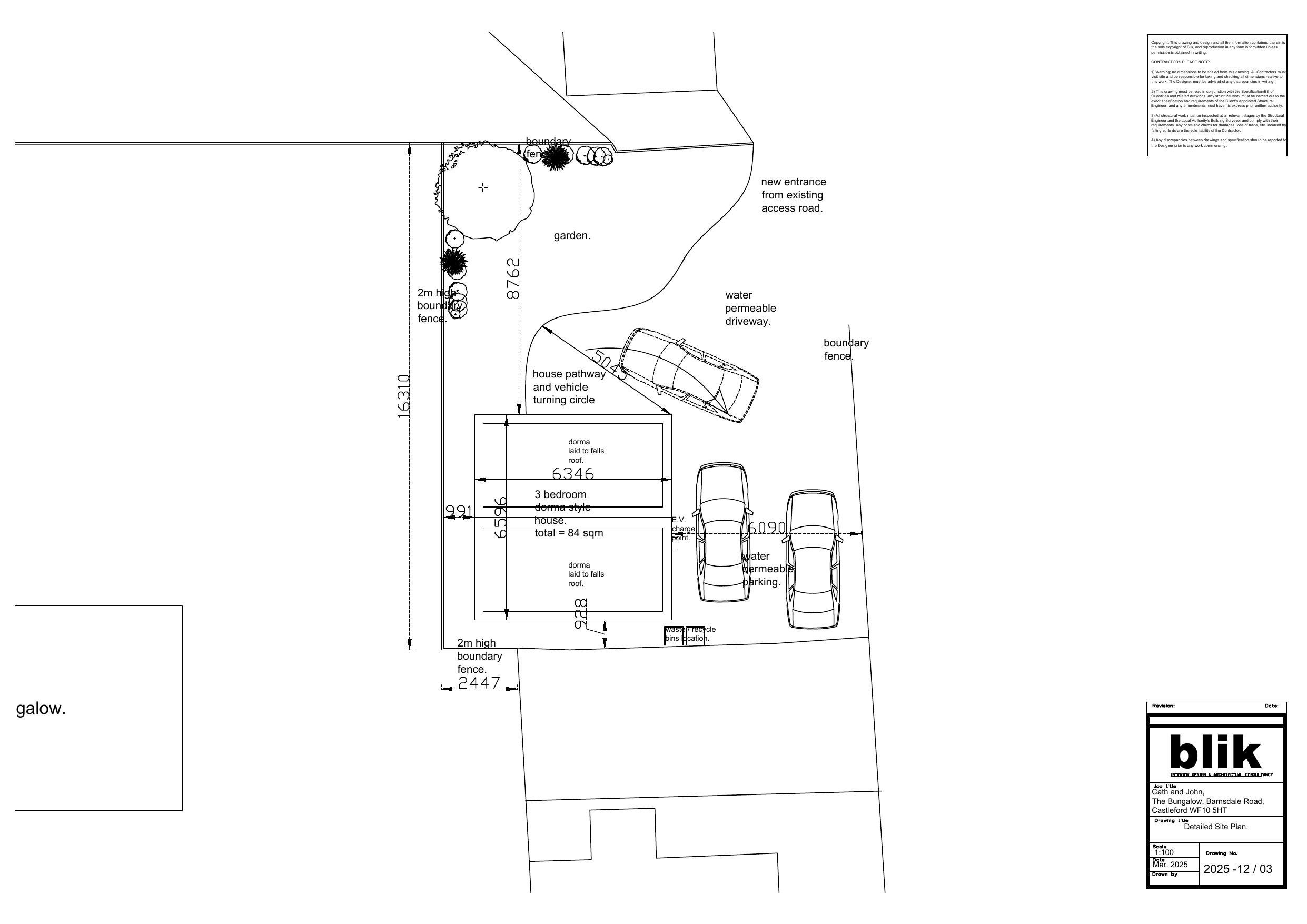
Outline application for construction of a dormer style bungalow within existing residential garden including the matters of access, layout and scale (appearance and landscaping reserved).

Documents

APPLICATIONFORMREDACTED
Application Form
Not archived · Council Link
BIODIVERSITY ACCOUNTING ASSESSMENT ISSUE
Supporting Documentation
Not archived · Council Link
BNG Metric
BNG Metric
Not archived · Council Link
Drawing
Archived · Council Link
ELEVATIONS
Drawing
Not archived · Council Link
Drawing
Archived · Council Link
FLOOD RISK ASSESSMENT.
Flood Risk/Run Off Impact Assessment
Not archived · Council Link
LOCATION PLAN
Drawing
Not archived · Council Link
Drawing
Archived · Council Link
Drawing
Archived · Council Link
SURVEY QUOTE
Ecological Documentation
Not archived · Council Link

Take Action

Make your voice heard. Authorities need to hear from people who support new homes.

✉️ Write Email in Support View on Council Portal