← Back to Wakefield Council

Status

Awaiting decision
Received
28 Nov 2025
New dwellings
n/a

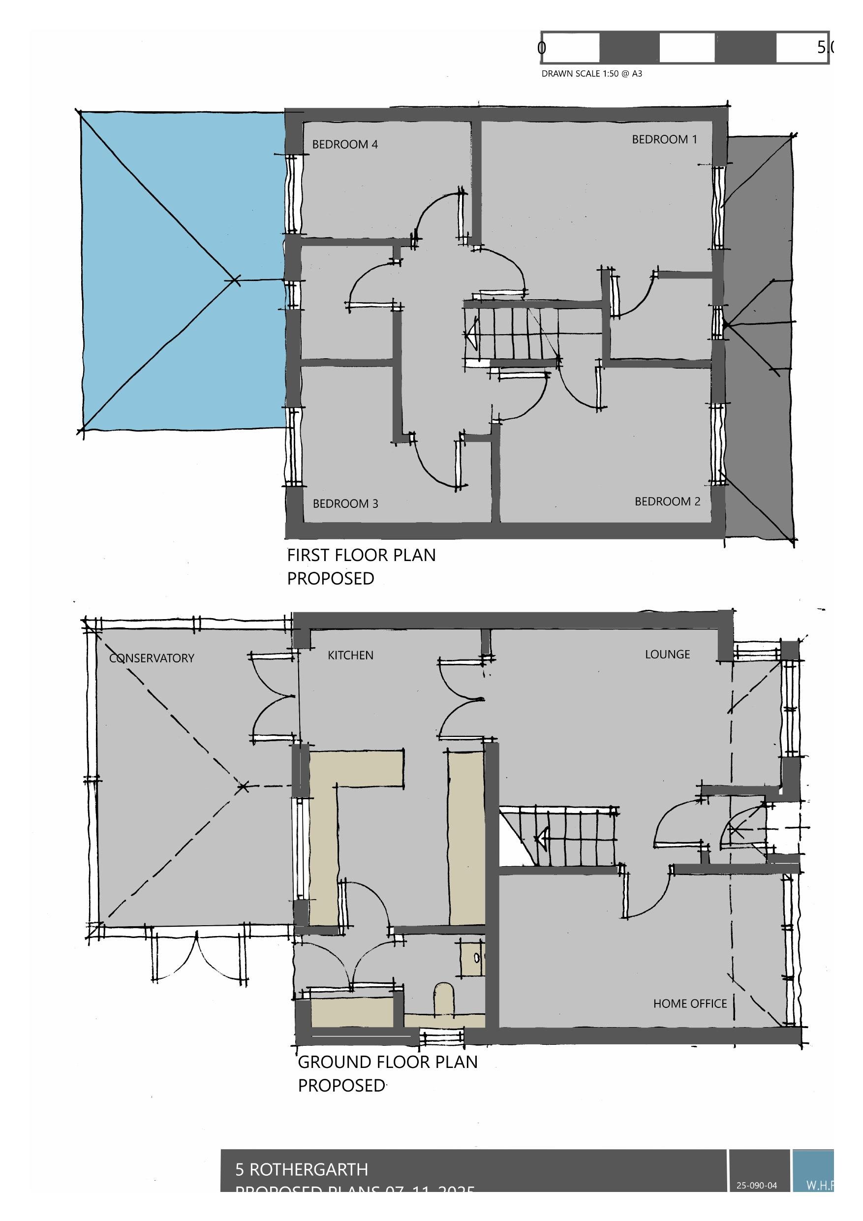
Full Proposal

The conversion of an existing attached garage to form a home office

Documents

APPLICATIONFORMREDACTED
Application Form
Not archived · Council Link
EXISTING ELEVATION
Superseded Drawing
Not archived · Council Link
EXISTING ELEVATIONS
Drawing
Not archived · Council Link
EXISTING FLOOR PLANS
Drawing
Not archived · Council Link
EXISTING PLANS
Superseded Drawing
Not archived · Council Link
LOCATION PLAN
Drawing
Not archived · Council Link
PROPOSED ELEVATION
Superseded Drawing
Not archived · Council Link
PROPOSED ELEVATIONS
Drawing
Not archived · Council Link
Drawing
Archived · Council Link
Superseded Drawing
Archived · Council Link
Site Notice
Site Notice
Not archived · Council Link

Take Action

Make your voice heard. Authorities need to hear from people who support new homes.

✉️ Write Email in Support View on Council Portal