← Back to Warwick District Council
W/25/0471
Warwick District Council · IDOX
Status
Decided
Received
28 Mar 2025
New dwellings
n/a
Summary
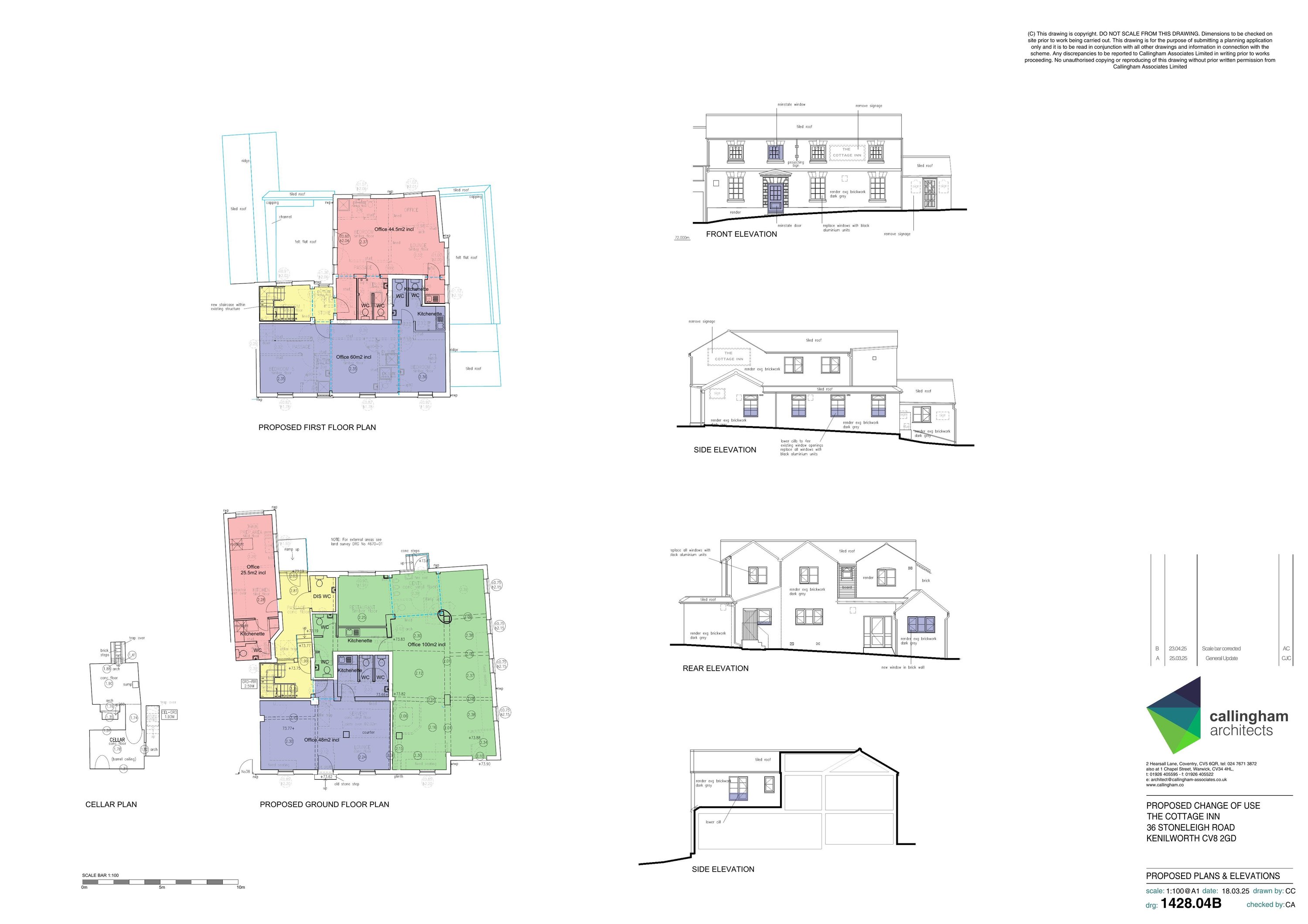
Change of use from public house (Sui Generis) to offices (Class E), with window and render works.
Full Proposal
Change of Use from Public House (Suis Generis) to Offices (Class E), including installation of new windows and replacement windows, and new render finish to elevations.
Documents
Mr Chris Hooper-Supports-32 Arthur Street Kenilworth(FULL)
Support Comment
Not archived
· Council Link
Mr Dan Ahmed-Supports-49 Ten Shilling Drive Coventry(FULL)
Support Comment
Not archived
· Council Link
Mr David Jones-Supports-5 Castle Court Park Road Kenilworth(FULL)
Support Comment
Not archived
· Council Link
Mr Lee Eaton-Neutral-1 Churchill Avenue Kenilworth(FULL)
General Comment
Not archived
· Council Link
Mr Matthew Harwood-Supports-20 Northvale Close kenilworth(FULL)
Support Comment
Not archived
· Council Link
Mr Paul Wright-Supports-Hilltop Highland Road Kenilworth(FULL)
Support Comment
Not archived
· Council Link
Mr Steve Steve Rice-Objects-6 Watling Road Kenilworth(FULL)
Objection Comment
Not archived
· Council Link
Mr Tom Kendall-Supports-Wordsworth Drive Kenilworth(FULL)
Support Comment
Not archived
· Council Link
Take Action
Make your voice heard. Authorities need to hear from people who support new homes.