← Back to Warwick District Council
W/25/1474
Warwick District Council · IDOX
Status
Unknown
Received
22 Oct 2025
New dwellings
n/a
Full Proposal
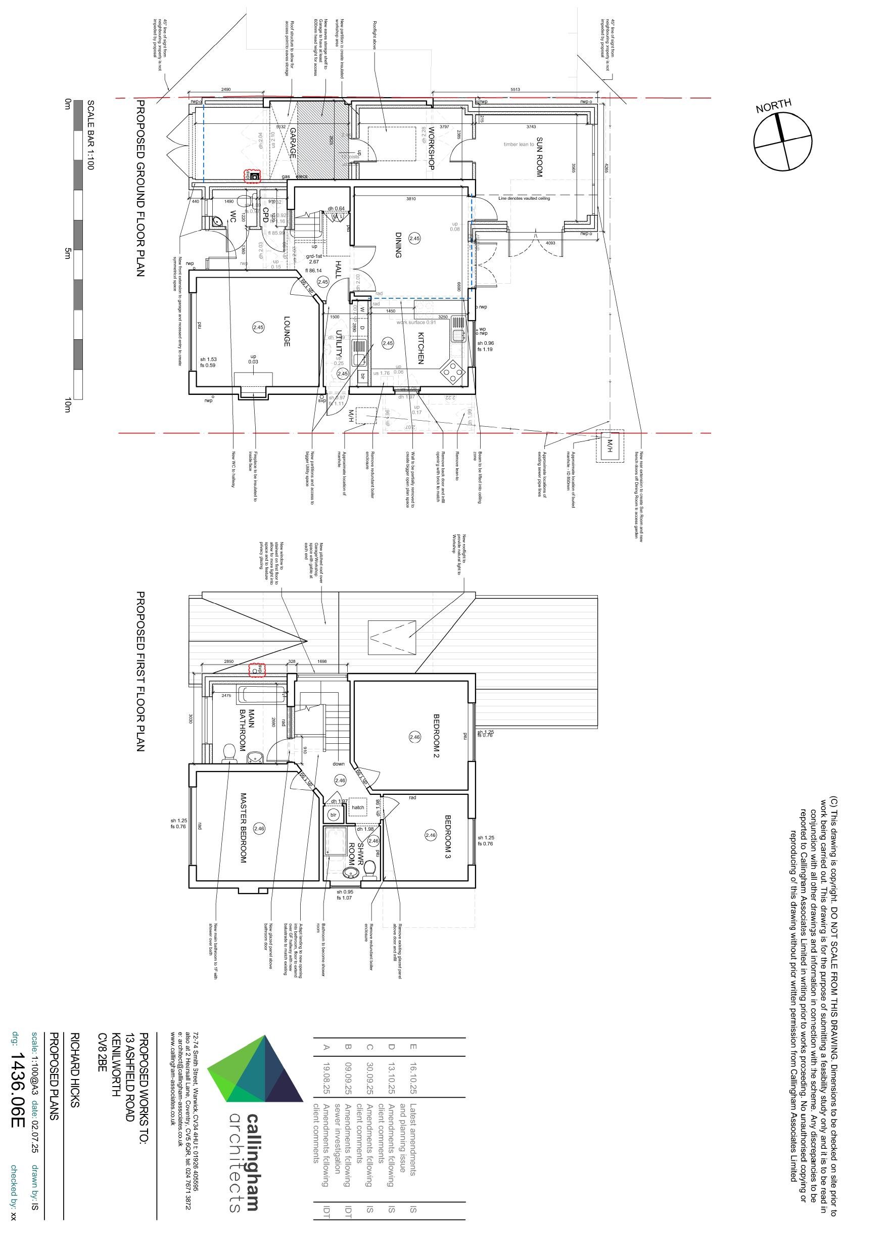
Demolition of existing single storey side structure. Erection of two storey extension to front of house. Erection of single storey to front of house. Erection of a single storey extension wraparound to side and rear of house. Installation of window to side elevation of house. Alteration to fenestration. Alterations of flat roof to pitch to existing side structure.
Documents
Take Action
Make your voice heard. Authorities need to hear from people who support new homes.