← Back to Warwick District Council

Status

Registered
Received
03 Nov 2025
New dwellings
n/a

Full Proposal

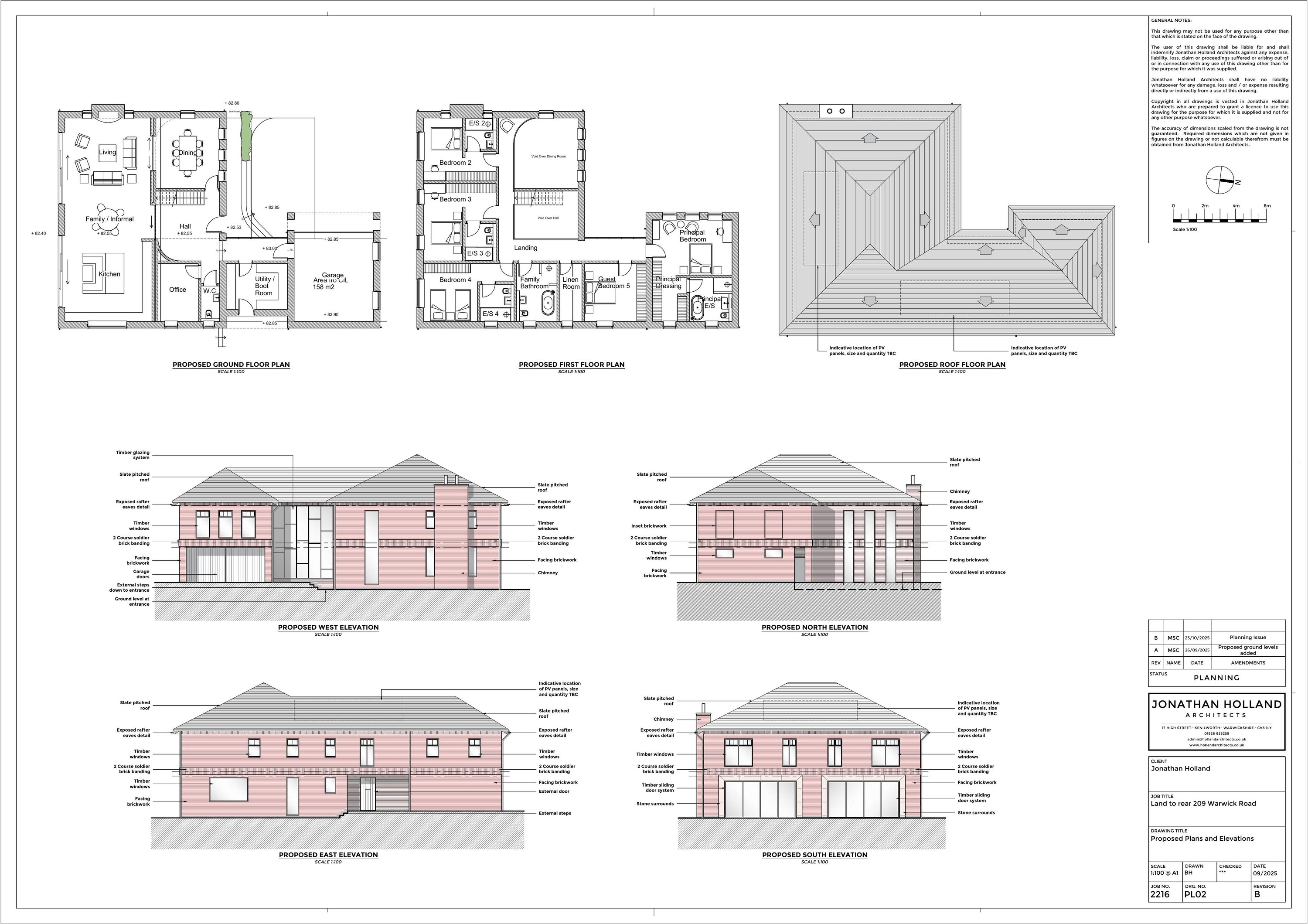
Proposed new build detached two-storey single dwelling with integrated double garage.

Documents

AIR QUALITY MITIGATION STATEMENT
Supporting Report
Not archived · Council Link
Amended Location Plan
Revised Drawing
Not archived · Council Link
APPLICATION FORM REDACTED
Application Form
Not archived · Council Link
ARBORICULTURE IMPACT ASSESSMENT
Supporting Report
Not archived · Council Link
CIL FORM 1
CIL Form
Not archived · Council Link
Community Protection-Environmental section
Consultation Response
Not archived · Council Link
CONSTRUCTION ENVIRONMENTAL MANAGEMENT
Supporting Report
Not archived · Council Link
ENERGY STATEMENT
Supporting Report
Not archived · Council Link
Revised Drawing
Archived · Council Link
FLOOD RISK ASSESSMENT AND DRAINAGE STRATEGY
Supporting Report
Not archived · Council Link
MISS TOWN CLERK-OBJECTS-KENILWORTH TOWN COUNCIL JUBILEE HOUSE SMALLEY PLACE KENI
Consultation Response
Not archived · Council Link
Mr Alastair Evans-Objects-211 Warwick Road Kenilworth(FULL)
Objection Comment
Not archived · Council Link
Mr Colin O'Connor-Objects-29 Suncliffe Drive Kenilworth(FULL)
Objection Comment
Not archived · Council Link
Mr Edward Gibson-Objects-Half acre Leamington road Leamington road Kenilworth(FU
Objection Comment
Not archived · Council Link
Mrs Clare Burden-Neutral-221 Warwick Road Kenilworth(FULL)
General Comment
Not archived · Council Link
Mrs Gill Horbury-Objects-61 Bullimore Grove, Kenilworth(FULL)
Objection Comment
Not archived · Council Link
Mrs Nicola Wood-Objects-209 Warwick Road Kenilworth(FULL)
Objection Comment
Not archived · Council Link
Network Rail
Consultation Response
Not archived · Council Link
Network Rail Land
Consultation Response
Not archived · Council Link
NOISE IMPACT ASSESSMENT
Supporting Report
Not archived · Council Link
OUTLINE DESCRIPTION -SUPPORTING DOCUMENT - FULL PLANNING
Supporting Report
Not archived · Council Link
PHOTO
Photo
Not archived · Council Link
PHOTO BNG - BASELINE
Photo
Not archived · Council Link
PRELIMINARY ECOLOGY APPRAISAL
Supporting Report
Not archived · Council Link
SAP - COMPLIANCE REPORT
Supporting Report
Not archived · Council Link
SAP - FULL SAP CALCULATION PRINTOUT
Supporting Report
Not archived · Council Link
SAP - PREDICTED ENERGY ASSESSMENT
Supporting Report
Not archived · Council Link
SAP - THERMAL BRIDGING
Supporting Report
Not archived · Council Link
SITE HABITAT BASELINE AND AREA SUIMMARY
Supporting Report
Not archived · Council Link
The Statutory Biodiversity Metric
Supporting Report
Not archived · Council Link
WCC Arboriculture
Consultation Response
Not archived · Council Link
WCC FLOOD RISK MANAGEMENT
Consultation Response
Not archived · Council Link
WCC Highways Authority
Consultation Response
Not archived · Council Link
WDC Waste Management response
Consultation Response
Not archived · Council Link

Take Action

Make your voice heard. Authorities need to hear from people who support new homes.

✉️ Write Email in Support View on Council Portal