← Back to Warwick District Council

Status

Registered
Received
13 Nov 2025
New dwellings
n/a

Summary

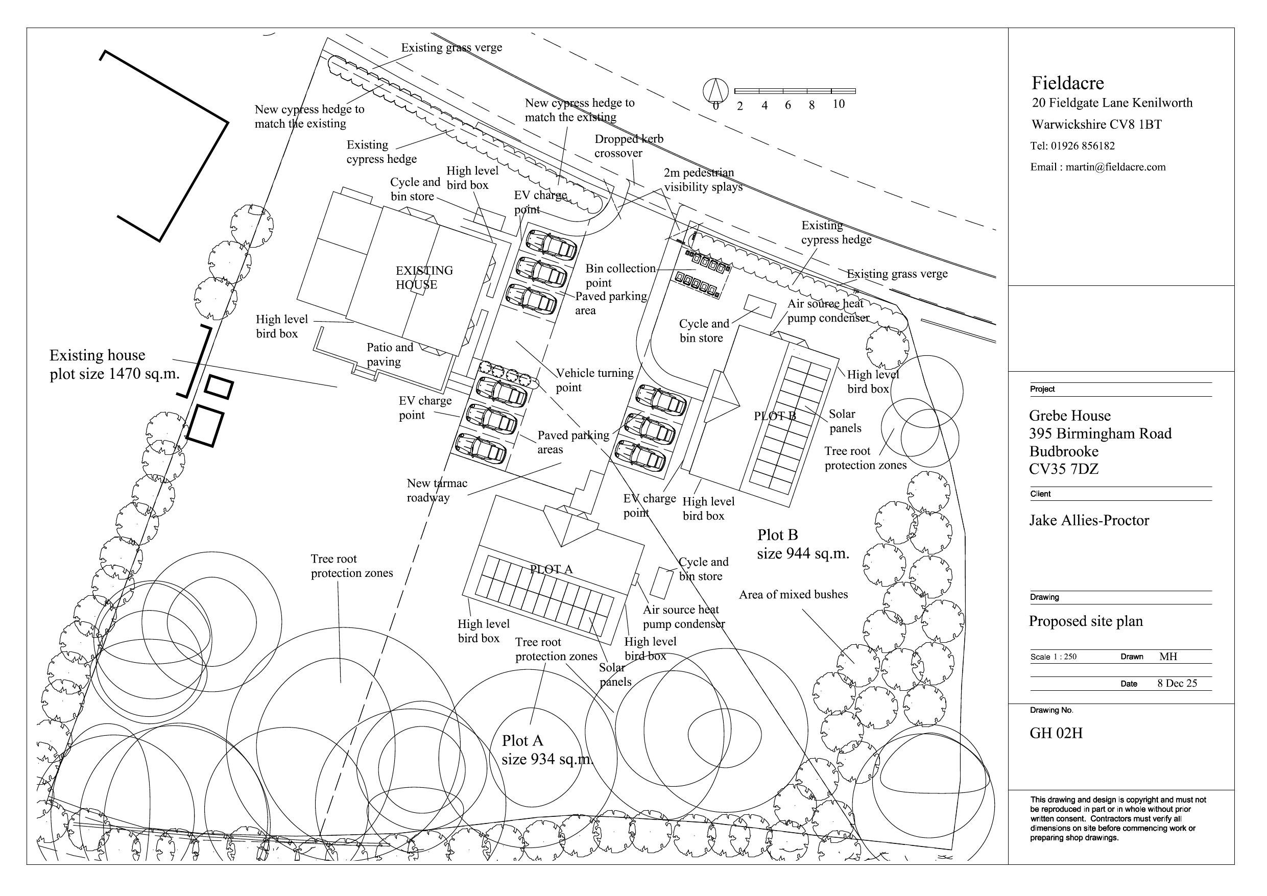
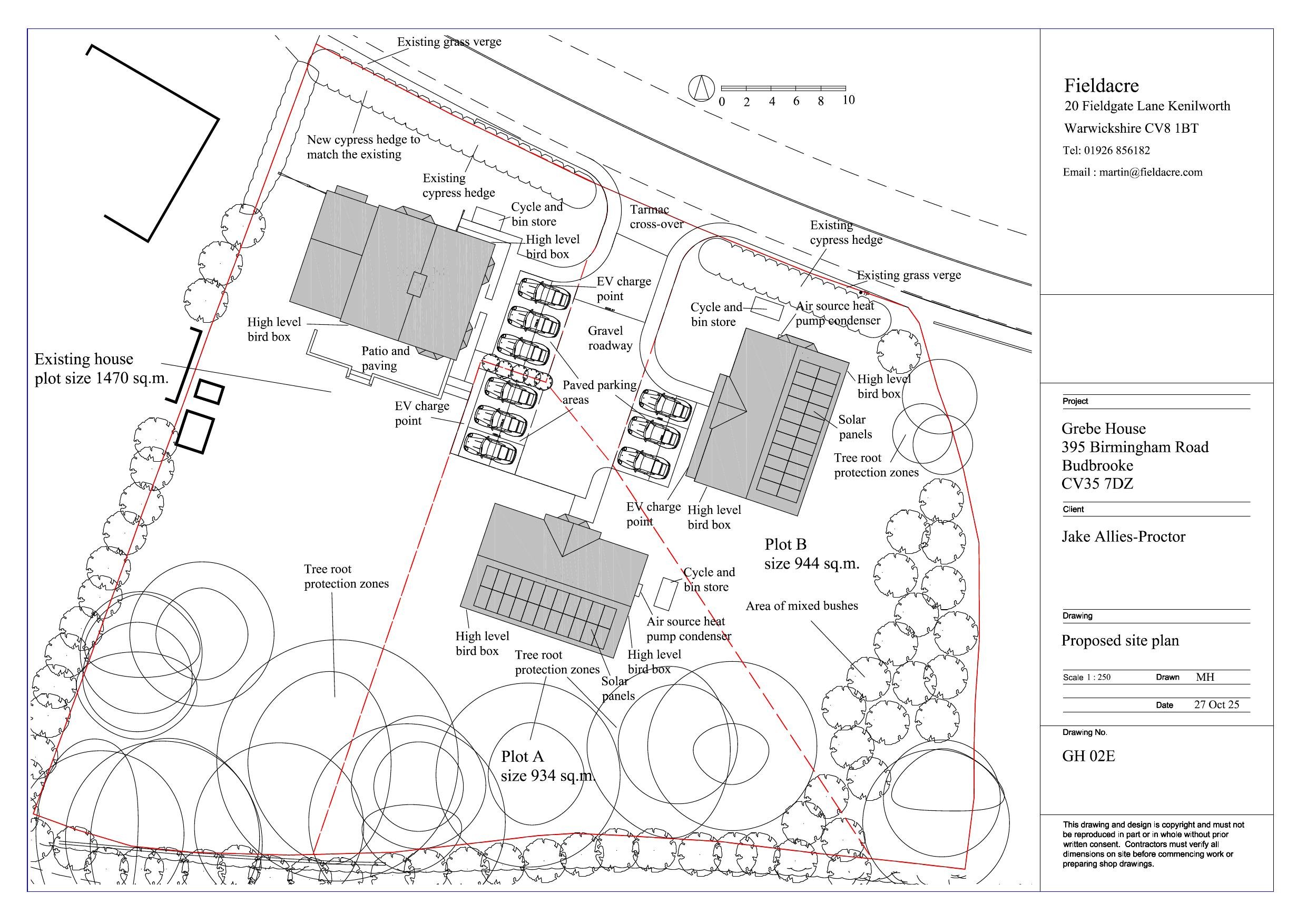
Alterations to existing dwelling with two new units.

Full Proposal

Proposed alterations to existing dwelling to include fenestration alterations and the addition of render, erection of 2no. dwellings, formation of a new access and associated works.

Documents

APPLICATION FORM REDACTED
Application Form
Not archived · Council Link
ARBORICULTURAL IMPACT ASSESSMENT
Supporting Report
Not archived · Council Link
BIODIVERSITY NET GAIN ASSESSMENT
Supporting Report
Not archived · Council Link
Birmingham Road elevation
Revised Drawing
Not archived · Council Link
BIRMINGHAM ROAD ELEVATION
Superseded
Not archived · Council Link
Canal and River Trust
Consultation Response
Not archived · Council Link
CIL FORM 1
CIL Form
Not archived · Council Link
CLLR HATTON PARISH COUNCIL HATTON PARISH COUNCIL-NEUTRAL-THE GRANARY BEAUSALE WA
Consultation Response
Not archived · Council Link
Cover email from agent with attachments
Case Correspondence
Not archived · Council Link
Cover email with attachment from Senior Carbon & Energy Advisor
Consultation Response
Not archived · Council Link
COVER LETTER
Case Correspondence
Not archived · Council Link
DESIGN AND ACCESS STATEMENT
Supporting Report
Not archived · Council Link
ECOLOGY AND BNG REPORT
Supporting Report
Not archived · Council Link
Energy Statement Response from Senior Carbon & Energy Advisor
Consultation Response
Not archived · Council Link
EXISTING ELEVATIONS
Drawing
Not archived · Council Link
EXISTING PLANS
Drawing
Not archived · Council Link
Drawing
Archived · Council Link
Health and community Protection
Consultation Response
Not archived · Council Link
LOCATION PLAN
Site Location Plan
Not archived · Council Link
MR BRIAN RYNINKS ON BEHALF OF BUDBROOKE PARISH COUNCIL-OBJECTS-BUDBROOKE PARISH
Consultation Response
Not archived · Council Link
Mr Robert Cochrane-Supports-399 Birmingham Road Budbrooke Warwick(FULL)
Support Comment
Not archived · Council Link
PLANNING AND HERITAGE STATEMENT
Supporting Report
Not archived · Council Link
PROPOSED A ELEVATIONS
Drawing
Not archived · Council Link
PROPOSED A PLANS
Superseded
Not archived · Council Link
PROPOSED B ELEVATIONS
Drawing
Not archived · Council Link
PROPOSED B PLANS
Superseded
Not archived · Council Link
PROPOSED ELEVATIONS
Drawing
Not archived · Council Link
Proposed House A Plans
Revised Drawing
Not archived · Council Link
Proposed House B Plans
Revised Drawing
Not archived · Council Link
Drawing
Archived · Council Link
Revised Drawing
Archived · Council Link
Superseded
Archived · Council Link
Road Circulation
Revised Drawing
Not archived · Council Link
ROAD TRAFFIC SIGHT LINES
Superseded
Not archived · Council Link
Road traffic sight lines
Revised Drawing
Not archived · Council Link
SUSAN HALLIDAY, 397 BIRMINGHAM ROAD, WARWICK, CV35 7DZ
Support Comment
Not archived · Council Link
SUSTAINABILITY AND ENERGY REPORT
Supporting Report
Not archived · Council Link
TREE CONSTRAINTS PLAN
Drawing
Not archived · Council Link
TREE PROTECTION PLAN
Drawing
Not archived · Council Link
WASTE MANAGEMENT
Consultation Response
Not archived · Council Link
WCC Arboriculture
Consultation Response
Not archived · Council Link
WCC Archaeology
Consultation Response
Not archived · Council Link
WCC ARCHAEOLOGY ASSESSMENT
Supporting Report
Not archived · Council Link
WCC Highways Authority
Consultation Response
Not archived · Council Link
WCC Highways Authority
Consultation Response
Not archived · Council Link
WDC Conservation Officer
Consultation Response
Not archived · Council Link

Take Action

Make your voice heard. Authorities need to hear from people who support new homes.

✉️ Write Email in Support View on Council Portal