← Back to Watford Borough Council

Status

Approval Not Required
Received
10 Dec 2024
New dwellings
n/a

Full Proposal

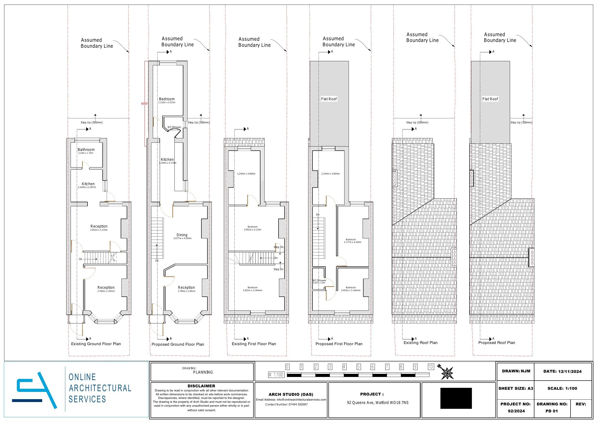
The erection of a single storey rear extension which would extend beyond the rear wall of the original house by 6.0m for which the maximum height would be 2.78m and for which the height of the eaves would be 2.62m

Documents

Application Form
Application Form
Not archived · Council Link
BLOCK PLAN
Drawing Approved
Not archived · Council Link
EXISTING AND PROPOSED ELEVATIONS
Drawing Approved
Not archived · Council Link
EXISTING AND PROPOSED ELEVATIONS PARTY WALL
Drawing Approved
Not archived · Council Link
Drawing Approved
Archived · Council Link
EXISTING AND PROPOSED SECTIONS
Drawing Approved
Not archived · Council Link
HPD DECISION
Decision
Not archived · Council Link
LOCATION PLAN
Drawing Approved
Not archived · Council Link
OFFICER REPORT
Officer Report
Not archived · Council Link
Drawing Approved
Archived · Council Link

Take Action

Make your voice heard. Authorities need to hear from people who support new homes.

✉️ Write Email in Support View on Council Portal