← Back to Watford Borough Council
25/01103/HPD
Watford Borough Council · IDOX
Status
Pending consideration
Received
22 Dec 2025
New dwellings
n/a
Full Proposal
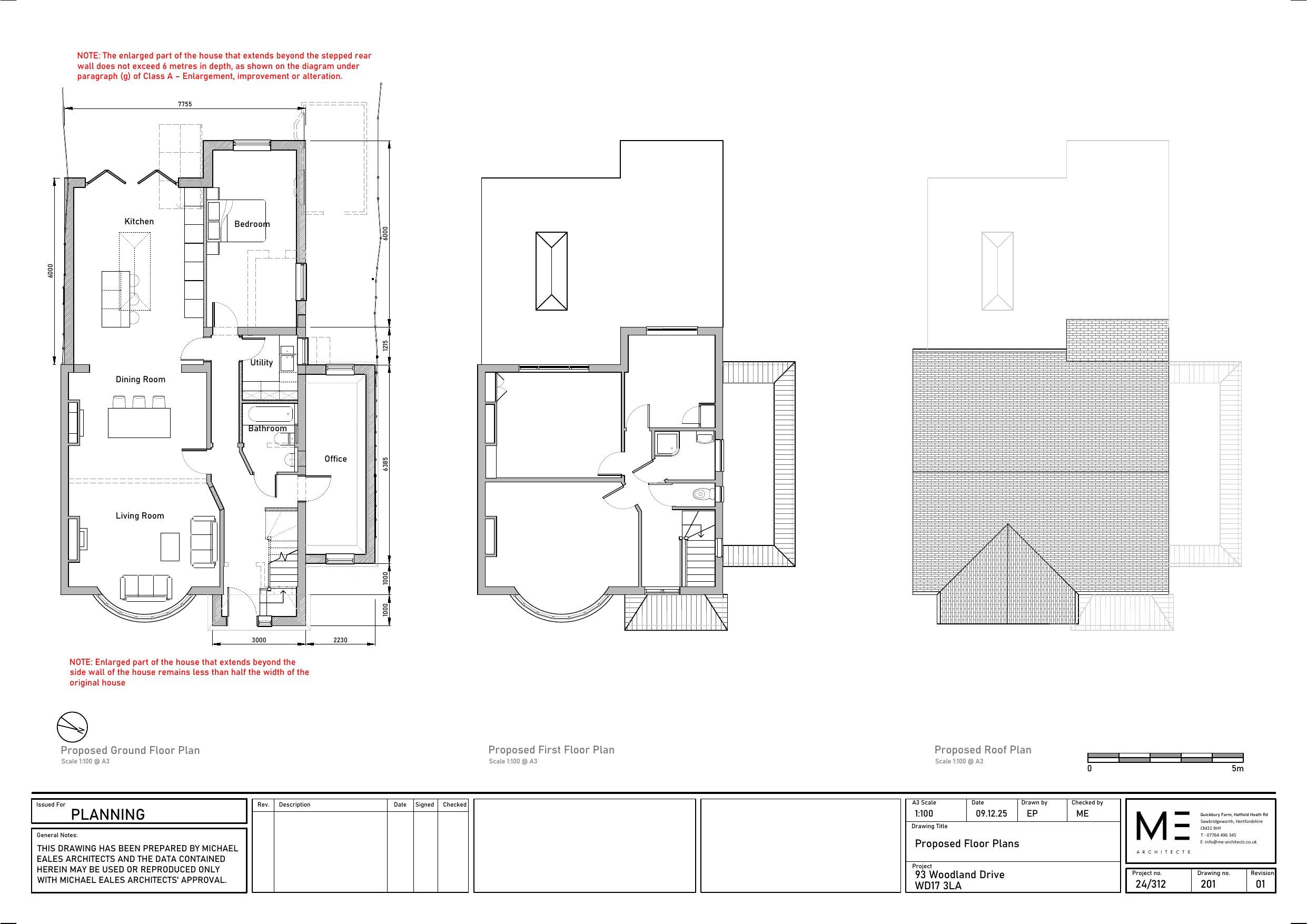
The erection of a single storey rear extension which would extend beyond the rear wall of the original house by 6.0m for which the maximum height would be 3.20m and for which the height of the eaves would be 3.0m. Erection of a single storey side extension, new front porch following the demolition extension, garden shed and external storage.
Documents
Take Action
Make your voice heard. Authorities need to hear from people who support new homes.