← Back to West Berkshire Council
Full Proposal
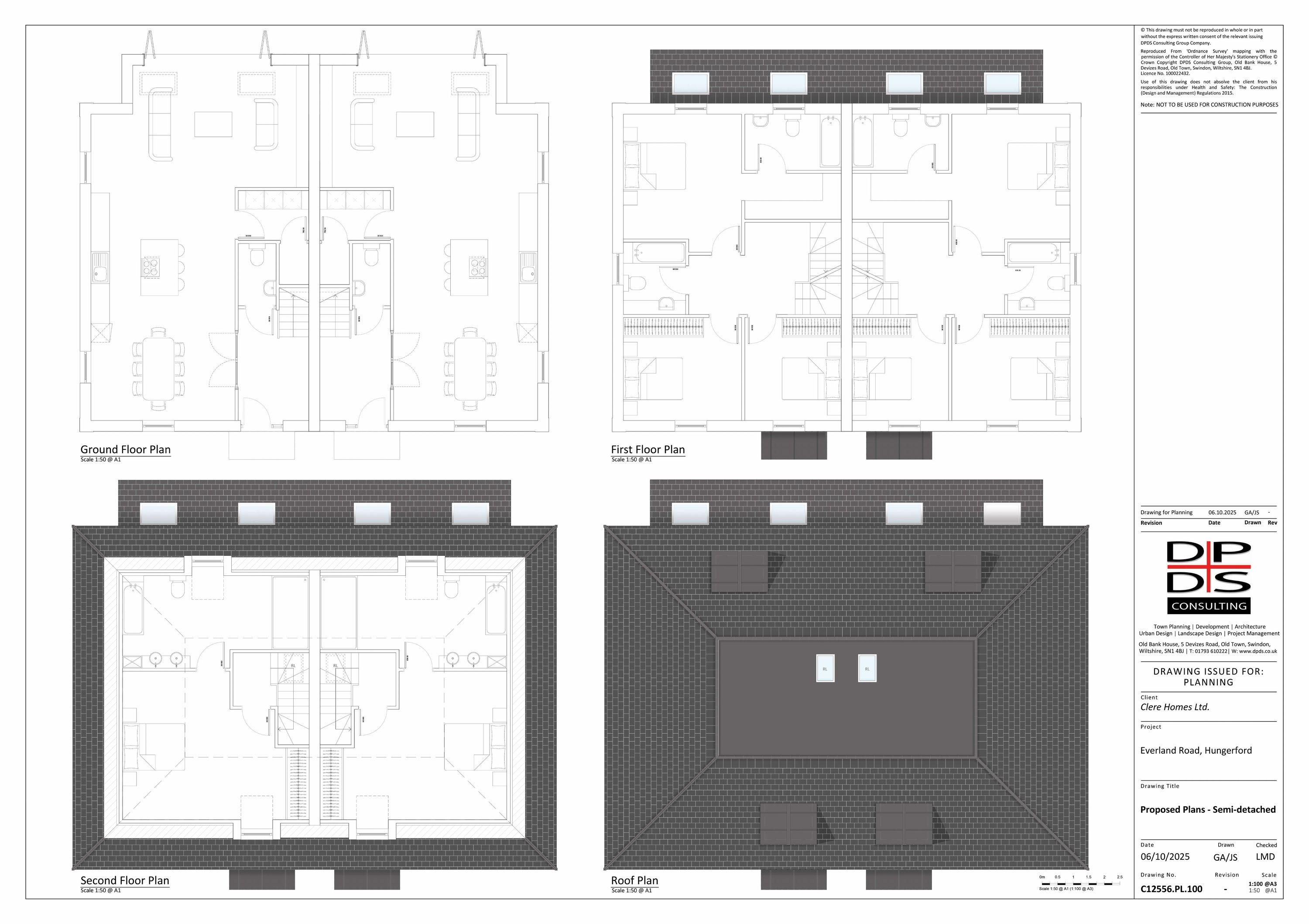
Erection of residential development comprising 6 semi-detached houses, 1 detached house, with associated access road, parking, and landscaping
Documents
Application Form
Application Form
Arboricultural Impact Assessment
Supporting Document
Biodiversity metric calculation tool
Biodiversity Net Gain
Boundary Treatment Plan
Plans, Drawings
Canal & River Trust
Consultee Comment
CIL - Form
Community Infrastructure Levy
Committee call-in authorised by Cllr Barnett
Committee Correspondence
Committee Call-In form
Committee Correspondence
Committee call-in form email from Councillor Benneyworth
Committee Correspondence
Condition assessment sheets
Biodiversity Net Gain
Conservation and Design Officer
Consultee Comment
Drainage documentation
Supporting Document
Ecological Management Plan
Plans, Drawings
Ecology Report with Habitat Map
Supporting Document
Ecology Team
Consultee Comment
Environmental Health
Consultee Comment
Heritage statement
Supporting Document
Highways West Berkshire Council
Consultee Comment
HT SuDS
Consultee Comment
Hungerford Town Council
Consultee Comment
Location Plan
Plans, Drawings
Network Rail
Newspaper, Press
Newbury Weekly News Planning Notice 08.01.2026
Newspaper, Press
Parking Provision - Details
Supporting Document
Planning statement
Supporting Document
Principal Archaeologist
Consultee Comment
Proposed Contextual Plan
Plans, Drawings
Proposed Elevations-Semi detached
Plans, Drawings
Proposed Landscape Strategy
Plans, Drawings
Proposed Site Section AA
Plans, Drawings
Roof Plan - Proposed Contextual Plan
Plans, Drawings
Topo Survey
Plans, Drawings
Tree Retention and Removal Plan
Supporting Document
Waste Management
Consultee Comment
Take Action
Make your voice heard. Authorities need to hear from people who support new homes.