← Back to West Berkshire Council

Status

Awaiting decision
Received
Last week
New dwellings
n/a

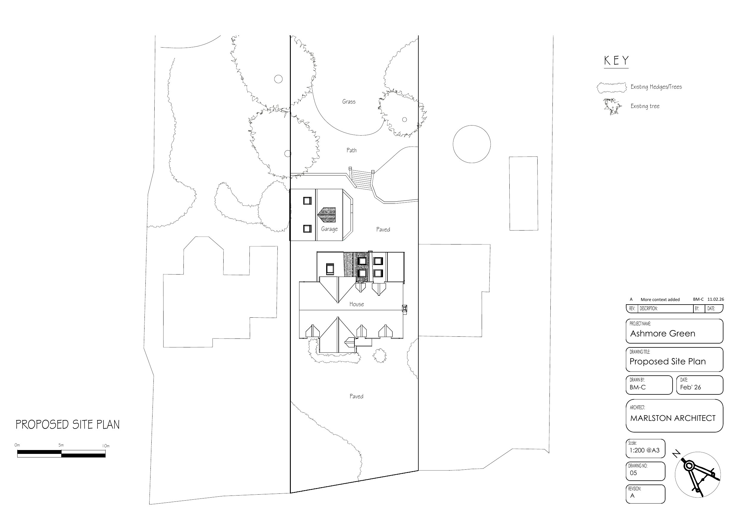
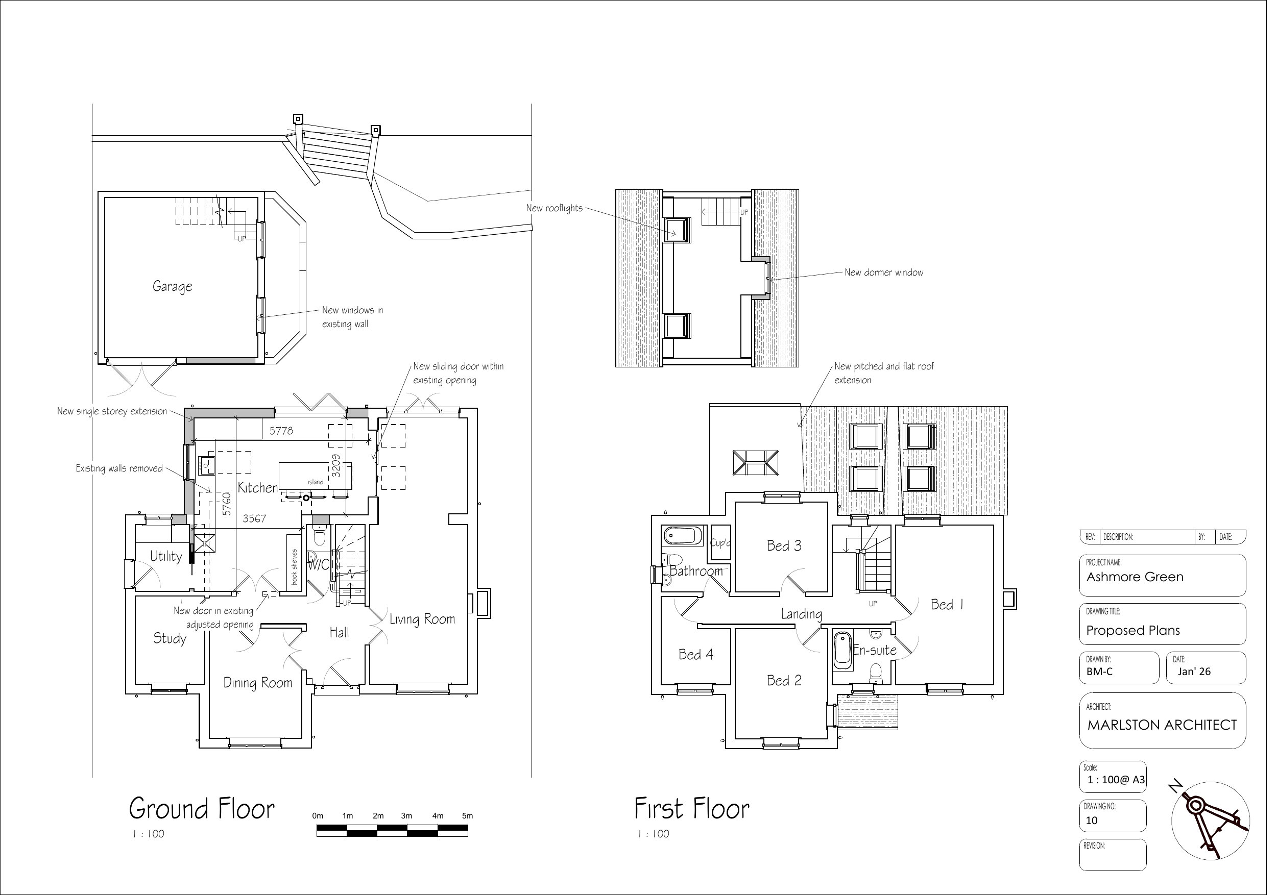
Full Proposal

Single storey extension to the rear of the existing house with associated internal alterations. New dormer window and rooflights in existing garage roof. Block existing garage door with two new ground floor windows.

Documents

Application Form - Without Personal Data
Application Form
Not archived · Council Link
Existing Elevations
Plans, Drawings
Not archived · Council Link
Existing Floor Plans
Plans, Drawings
Not archived · Council Link
Existing Garage Plans
Plans, Drawings
Not archived · Council Link
Plans, Drawings
Archived · Council Link
Plans, Drawings
Archived · Council Link
Garage Plans
Plans, Drawings
Not archived · Council Link
Location Plan
Plans, Drawings
Not archived · Council Link
Proposed Elevations
Plans, Drawings
Not archived · Council Link
Plans, Drawings
Archived · Council Link
Proposed Garage Plans
Plans, Drawings
Not archived · Council Link
Plans, Drawings
Archived · Council Link
Plans, Drawings
Archived · Council Link
Public Rights of Way Countryside
Consultee Comment
Not archived · Council Link

Take Action

Make your voice heard. Authorities need to hear from people who support new homes.

✉️ Write Email in Support View on Council Portal