← Back to West Lancashire Borough Council

Status

Registered
Received
Last month
New dwellings
n/a

Full Proposal

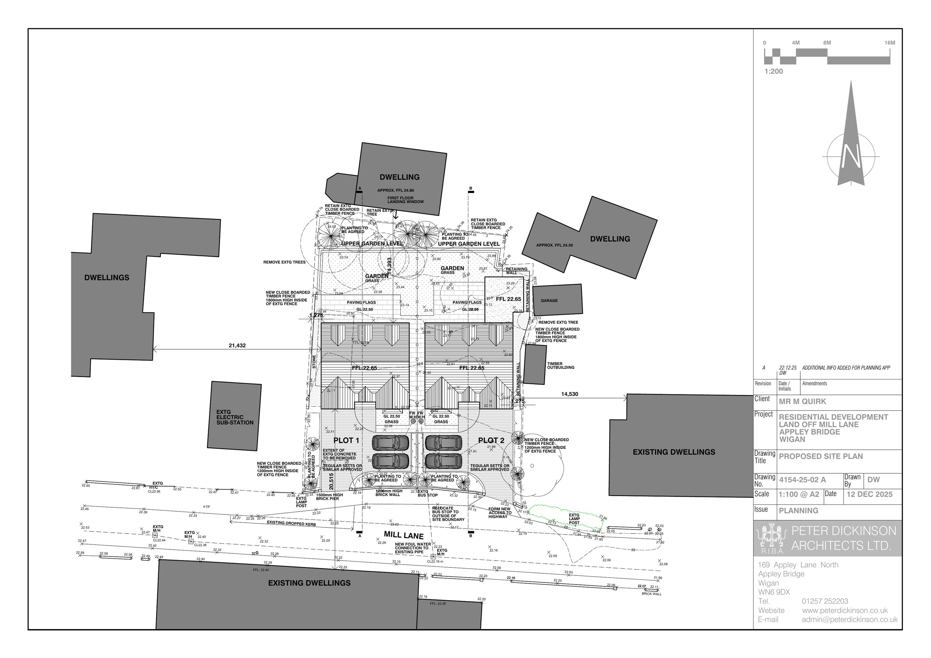
Construction of 2No. two storey four bedroom detached dwellings, including associated external works

Documents

Application form - without personal data
Application Form
Not archived · Council Link
Consultation/neighbours notified
Consultations & Neighbours notified
Not archived · Council Link
Covering letter
Miscellaneous
Not archived · Council Link
Design & access statement
Miscellaneous
Not archived · Council Link
Drainage
Consultation response (WLBC)
Not archived · Council Link
Elevation & floor plan - plot 1
Plans
Not archived · Council Link
Elevation & floor plan - plot 2
Plans
Not archived · Council Link
Environmental protection response
Consultation response (WLBC Env.Health)
Not archived · Council Link
Existing and proposed street scenes
Plans
Not archived · Council Link
Meas
Consultation response
Not archived · Council Link
Site Layout Plan
Archived · Council Link
Proposed site sections
Plans
Not archived · Council Link
The location plan
Site Location Plan
Not archived · Council Link
United utilities
Consultation response
Not archived · Council Link
United utilities
Consultation response
Not archived · Council Link

Take Action

Make your voice heard. Authorities need to hear from people who support new homes.

✉️ Write Email in Support View on Council Portal