← Back to West Oxfordshire District Council
25/02656/LBC
West Oxfordshire District Council · IDOX
Status
Under consideration
Received
n/a
New dwellings
n/a
Full Proposal
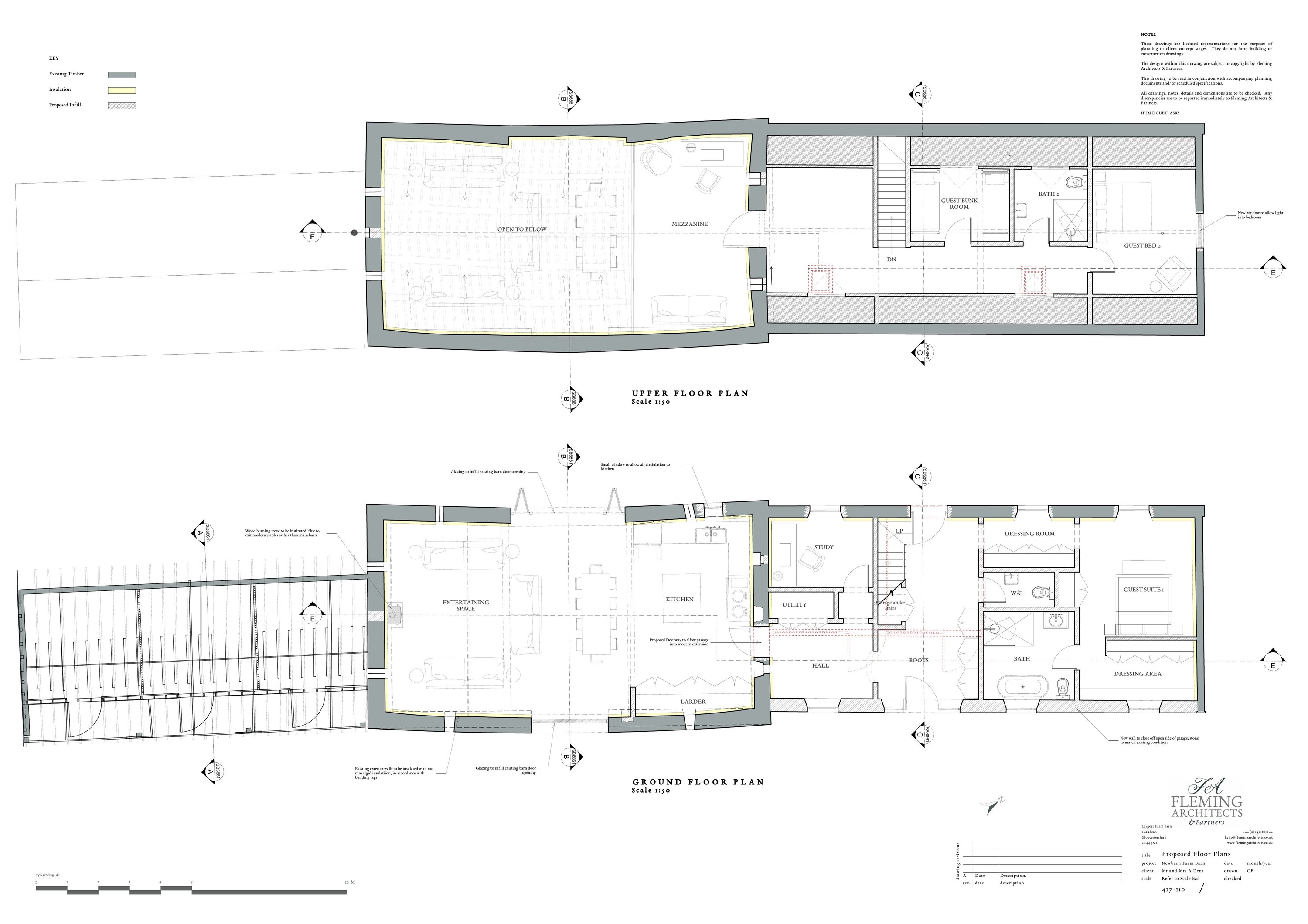
External and internal alterations with addition of mezzanine level to allow for use of building for ancillary residential purposes.
Documents
Take Action
Make your voice heard. Authorities need to hear from people who support new homes.