← Back to West Oxfordshire District Council

Status

Under consideration
Received
n/a
New dwellings
n/a

Full Proposal

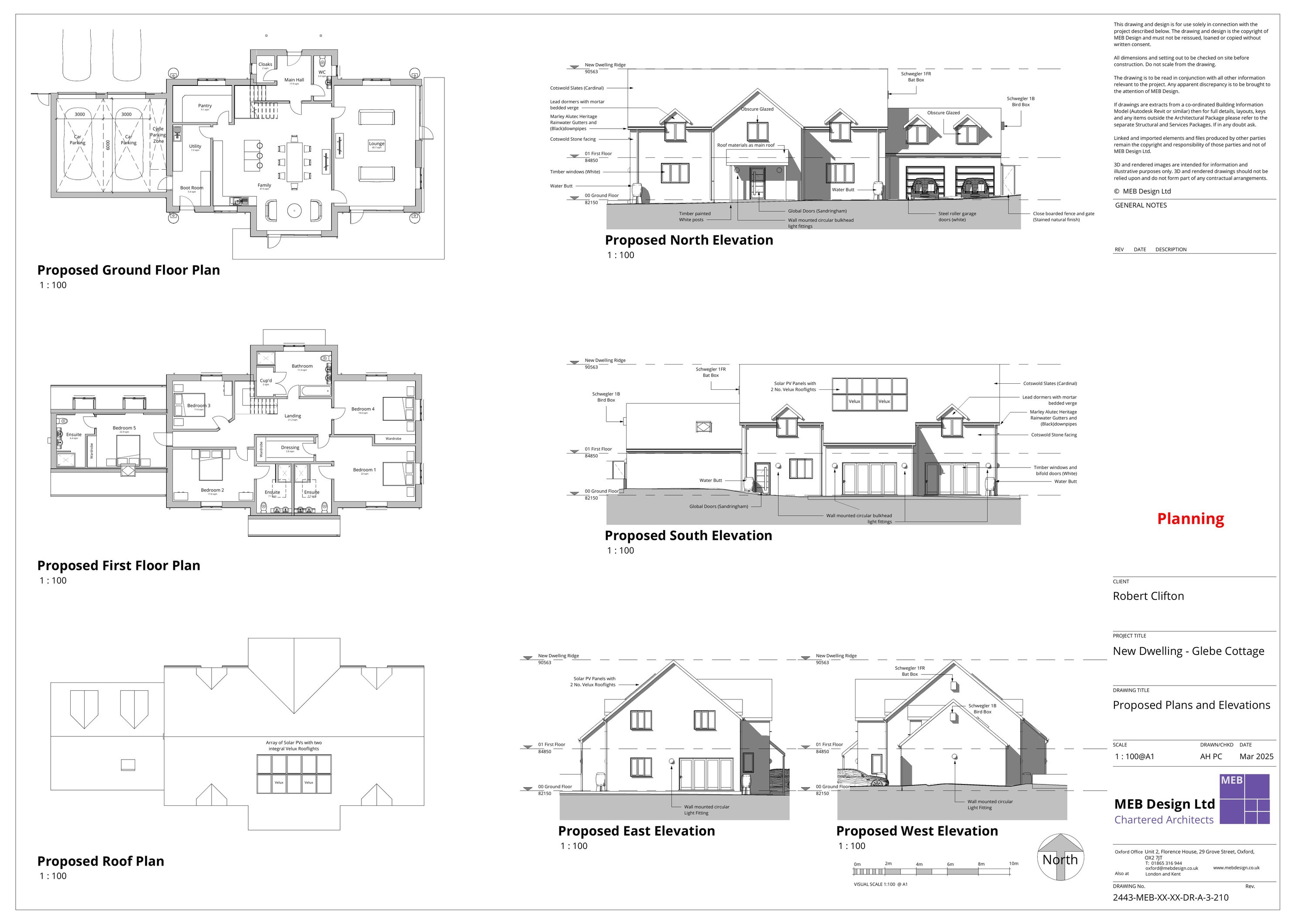
Erection of single dwelling with garage and associated ancillary development.

Documents

Application Form
Application Form
Not archived · Council Link
ARBORICULTURAL REPORT
Report
Not archived · Council Link
AVENELL, A
Objection Comment
Not archived · Council Link
BNG FEASABILITY ASSESSMENT
Supporting Documents
Not archived · Council Link
BNG Metric
BNG Metric
Not archived · Council Link
BNG Statement
BNG Statement
Not archived · Council Link
CURBRIDGE & LEW PARISH COUNCIL
Consultee Comment
Not archived · Council Link
DISTRICT ECOLOGIST
Consultee Comment
Not archived · Council Link
DRAINAGE REPORT
Report
Not archived · Council Link
ERS CONTAMINATED LAND
Consultee Comment
Not archived · Council Link
ERS NOISE AND AMENITIES
Consultee Comment
Not archived · Council Link
EXISTING AND PROPOSED 3D AERIAL FRONT VIEWS
Drawing
Not archived · Council Link
EXISTING AND PROPOSED 3D AERIAL REAR VIEWS
Drawing
Not archived · Council Link
Drawing
Archived · Council Link
FLOW DRAINAGE DESIGN
Supporting Documents
Not archived · Council Link
HACKLING, A
Objection Comment
Not archived · Council Link
HACKLING, A & E
Objection Comment
Not archived · Council Link
OCC HIGHWAYS
Consultee Comment
Not archived · Council Link
PLANNING STATEMENT
Supporting Documents
Not archived · Council Link
PRELIMINARY ECOLOGICAL APPRAISAL
Supporting Documents
Not archived · Council Link
Drawing
Archived · Council Link
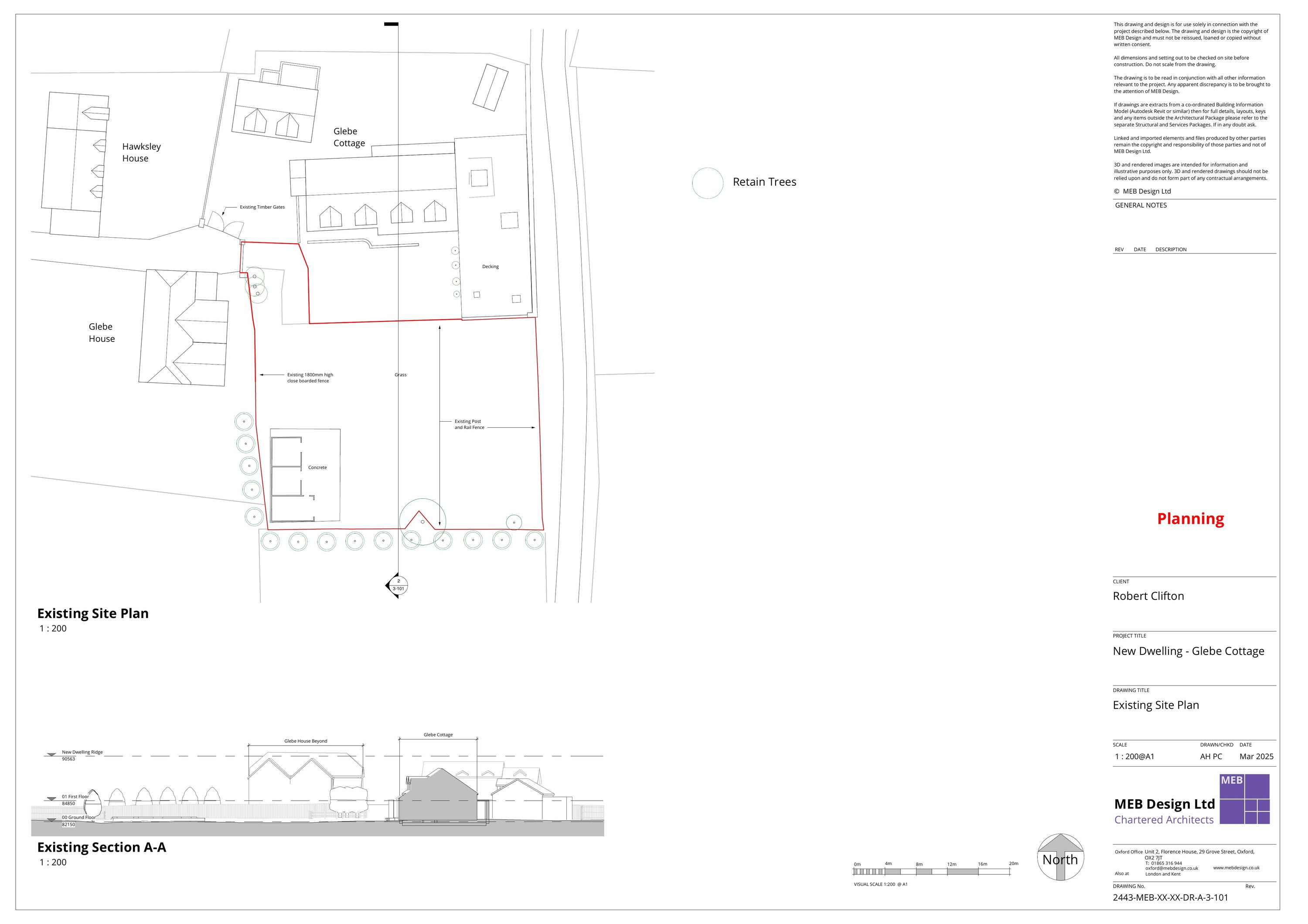
SITE LOCATION AND PROPOSED BLOCK PLAN
Drawing
Not archived · Council Link
SUPERSEDED DRAINAGE DETAILS
Drawing
Not archived · Council Link
SUPERSEDED DRAINAGE DETAILS
Drawing
Not archived · Council Link
SUPERSEDED DRAINAGE LAYOUT
Drawing
Not archived · Council Link
SUPERSEDED DRAINAGE LAYOUT
Drawing
Not archived · Council Link
SUPERSEDED DRAINAGE REPORT
Report
Not archived · Council Link
SURFACE & FOUL WATER DRAINAGE DETAILS
Drawing
Not archived · Council Link
SURFACE & FOUL WATER DRAINAGE LAYOUT
Drawing
Not archived · Council Link
SUSTAINABILITY STATEMENT
Supporting Documents
Not archived · Council Link
WADE, J
Objection Comment
Not archived · Council Link
WADE, J
Objection Comment
Not archived · Council Link
WODC DRAINAGE OFFICER
Consultee Comment
Not archived · Council Link
WODC DRAINAGE OFFICER
Consultee Comment
Not archived · Council Link
WODC DRAINAGE OFFICER
Consultee Comment
Not archived · Council Link
WYN-DAVIES, C
Objection Comment
Not archived · Council Link

Take Action

Make your voice heard. Authorities need to hear from people who support new homes.

✉️ Write Email in Support View on Council Portal