← Back to West Oxfordshire District Council
26/00249/FUL
West Oxfordshire District Council · IDOX
Status
Under consideration
Received
n/a
New dwellings
n/a
Full Proposal
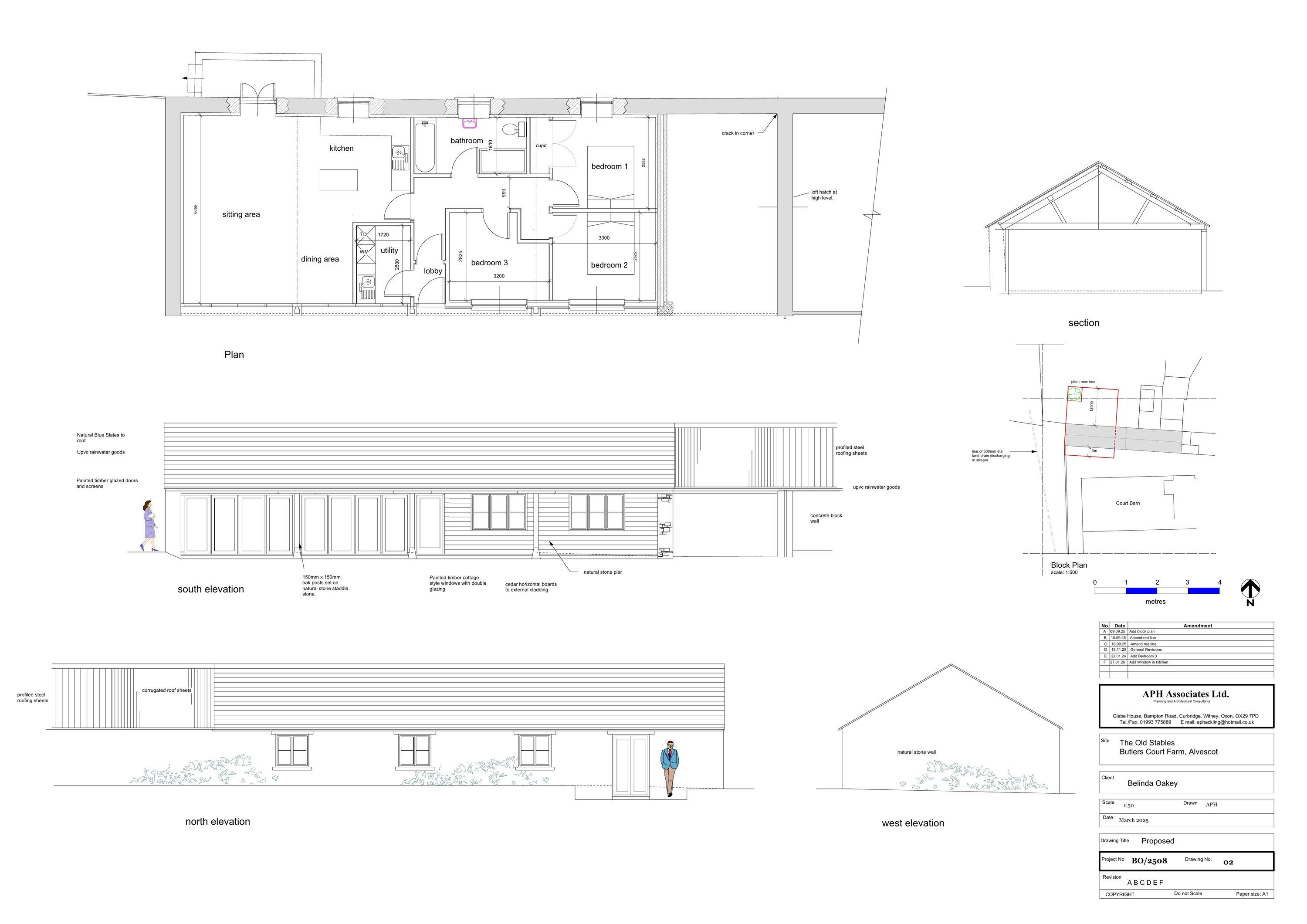
Conversion of existing barn to create a self-build three bedroom dwelling, with associated works
Documents
PRELIMINARY ECOLOGICAL APPRAISAL AND BIODIVERSITY NET GAIN ASSESSMENT
Report
Not archived
· Council Link
Take Action
Make your voice heard. Authorities need to hear from people who support new homes.