← Back to West Suffolk Council

Status

Pending Decision
Received
11 Dec 2025
New dwellings
n/a

Full Proposal

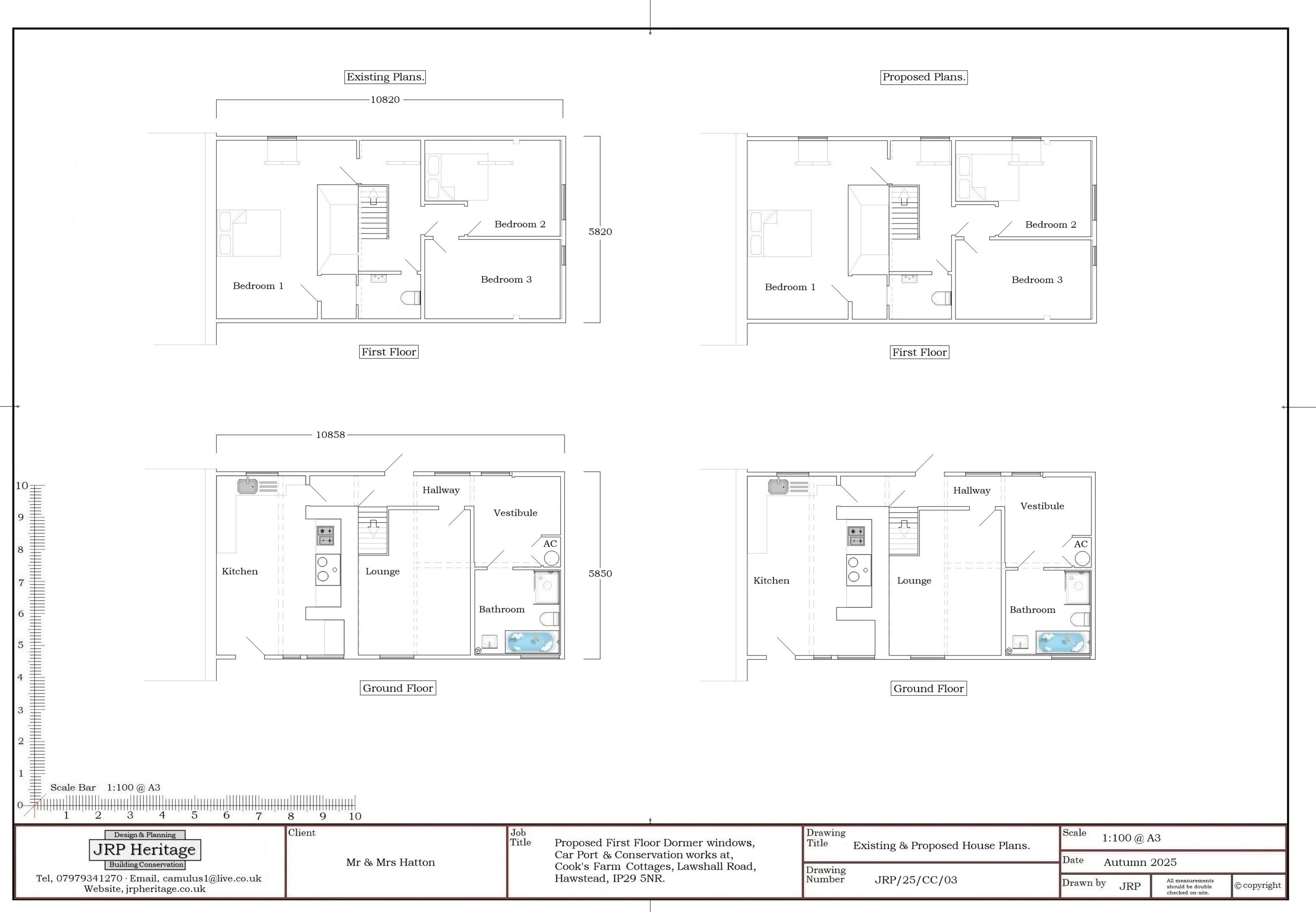
Householder planning application - a. replace thatch b. reinstate rear dormer windows c. replace three windows d. replacement of cement render with lime render and breathable paint/lime wash e. detached car port

Documents

APPLICATION FORM - WITHOUT PERSONAL DATA
Application Form
Not archived · Council Link
CONSERVATION COMMENTS
Consultation Response
Not archived · Council Link
COPPERFIELD BARN - COMMENTS
Neighbour Response
Not archived · Council Link
DESIGN AND ACCESS AND HERITAGE STATEMENT
Supporting Documents
Not archived · Council Link
Site and Other Plans/Drawings
Archived · Council Link
EXISTING ELEVATIONS
Site and Other Plans/Drawings
Not archived · Council Link
LOCATION AND BLOCK PLAN
Site and Other Plans/Drawings
Not archived · Council Link
PARISH COUNCIL COMMENT
Consultee Comment
Not archived · Council Link
PHOTOGRAPHS
Photo
Not archived · Council Link
PROPOSED CAR PORT AND ELEVATIONS
Site and Other Plans/Drawings
Not archived · Council Link
PROPOSED ELEVATIONS
Site and Other Plans/Drawings
Not archived · Council Link
Site and Other Plans/Drawings
Archived · Council Link

Take Action

Make your voice heard. Authorities need to hear from people who support new homes.

✉️ Write Email in Support View on Council Portal