← Back to City of Westminster

Status

Decided
Received
22 Aug 2025
New dwellings
n/a

Full Proposal

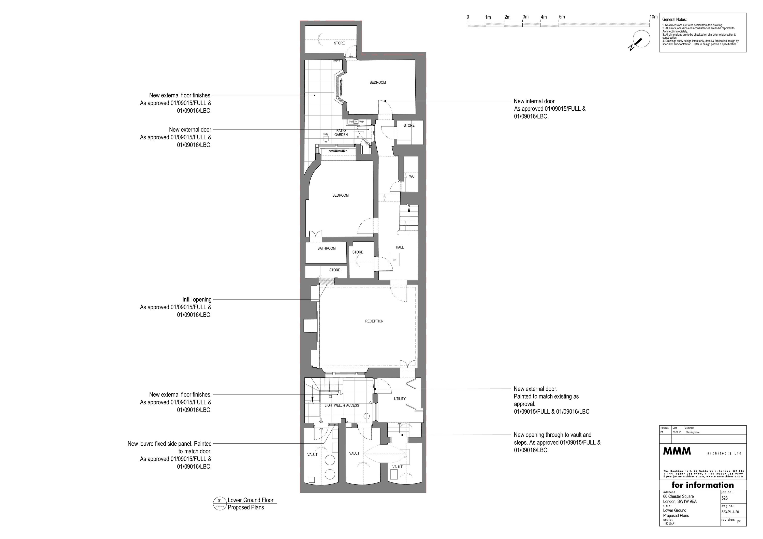
Confirmation that the planning permission dated 02 January 2002 (RN: 01/09015/FULL) for the "Alteration to rear pitch of mansard roof, creation of rear terrace on flat roof between ground and first floor level. Creation of new first floor covered balcony and alterations to front downpipe" has been lawfully implemented for the purpose of Section 56 of the Town and Country Planning Act (1990) (as amended) and that it is lawful to continue with that development.

Documents

1ST INVALID LETTER
Background Papers
Not archived · Council Link
ACK-GENERAL LETTER (G/P/C)
Background Papers
Not archived · Council Link
APPLICATION EXISTING PLANS
Drawing
Not archived · Council Link
APPLICATIONFORMREDACTED
Application Form
Not archived · Council Link
CNSLT-LA SOCIETY
Background Papers
Not archived · Council Link
CNSLT-LA SOCIETY
Background Papers
Not archived · Council Link
CNSLT-LA SOCIETY
Background Papers
Not archived · Council Link
COVER LETTER 21 AUGUST 2025
Background Papers
Not archived · Council Link
DELEGATED REPORT
Report
Not archived · Council Link
Drawing
Archived · Council Link
GRANT OF CLOPUD [PE]
Decision Notice
Not archived · Council Link
LOCATION PLAN
Location Plan
Not archived · Council Link
PHOTO 1
Photo
Not archived · Council Link
PHOTO 2
Photo
Not archived · Council Link
PHOTO 3
Photo
Not archived · Council Link
PHOTO 3
Photo
Not archived · Council Link
PHOTO 4
Photo
Not archived · Council Link
Drawing
Archived · Council Link

Take Action

Make your voice heard. Authorities need to hear from people who support new homes.

✉️ Write Email in Support View on Council Portal