← Back to City of Westminster

Status

Pending
Received
17 Sep 2025
New dwellings
n/a

Summary

Conversion of existing dwellings into new dwellings of different size within the same property.

Full Proposal

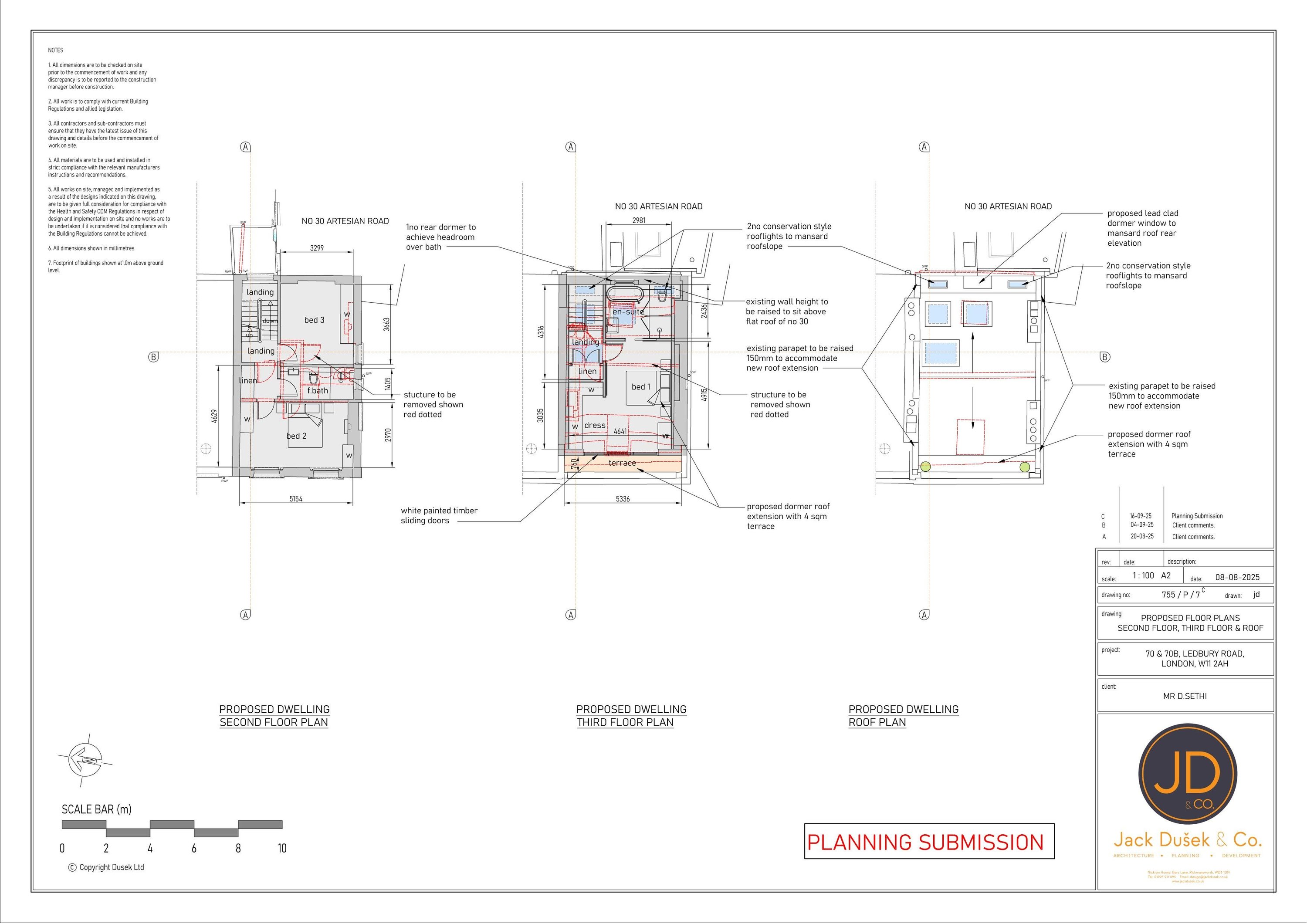
Conversion of 2no dwellings within property into 2no dwellings of different size, including internal alterations, alterations to fenestration and erection of a roof extension.

Documents

1ST INVALID LETTER
Background Papers
Not archived · Council Link
755-P-1 SITE LAYOUT PLANS
Drawing
Not archived · Council Link
755-P-10 LOCATION PLAN
Location Plan
Not archived · Council Link
755-P-11 01-10-25 EXISTING WINDOW SECTION
Drawing
Not archived · Council Link
755-P-12 01-10-25 PROPOSED WINDOW SECTION
Drawing
Not archived · Council Link
755-P-2 EXISTING PLANS 1
Drawing
Not archived · Council Link
755-P-3 EXISTING PLANS 2
Drawing
Not archived · Council Link
755-P-4 EXISTING ELEVS
Drawing
Not archived · Council Link
755-P-5 EXISTING SECTIONS
Drawing
Not archived · Council Link
755-P-8 PROPOSED CLEAN ELEVATIONS
Drawing
Not archived · Council Link
755-P-8 PROPOSED ELEVATIONS
Drawing
Not archived · Council Link
755-P-9 PROPOSED SECTIONS
Drawing
Not archived · Council Link
755-P-9 PROPOSED SECTIONS CLEAN
Drawing
Not archived · Council Link
ACK-GENERAL LETTER (G/P/C)
Background Papers
Not archived · Council Link
APPLICATIONFORMREDACTED
Application Form
Not archived · Council Link
CNSLT-LA SOCIETY
Background Papers
Not archived · Council Link
DESIGN AND ACCESS STATEMENT
Design and Access Statement
Not archived · Council Link
ECNSLT-INTERNAL CONSULTS
Background Papers
Not archived · Council Link
ECNSLT-INTERNAL CONSULTS
Background Papers
Not archived · Council Link
ECNSLT-STD EXT CONSULTEES
Background Papers
Not archived · Council Link
FLOOD RISK ASSESSMENT 15-09-25
Flood risk assessment
Not archived · Council Link
NEIGHBOUR NOTIFICATION LETTER (21D)
Background Papers
Not archived · Council Link
OBJECTION
Public Comment
Not archived · Council Link
RECEIPT OF APPLICATION
Other
Not archived · Council Link
SITE NOTICE 21 OR 28 DAYS IF T&C APPL.
Background Papers
Not archived · Council Link
SUSTAINABLE DESIGN STATEMENT
Sustainability appraisal
Not archived · Council Link

Take Action

Make your voice heard. Authorities need to hear from people who support new homes.

✉️ Write Email in Support View on Council Portal