← Back to Westmorland and Furness Council

Status

StatusOfficer Consideration
Received
19 Feb 2025
New dwellings
n/a

Summary

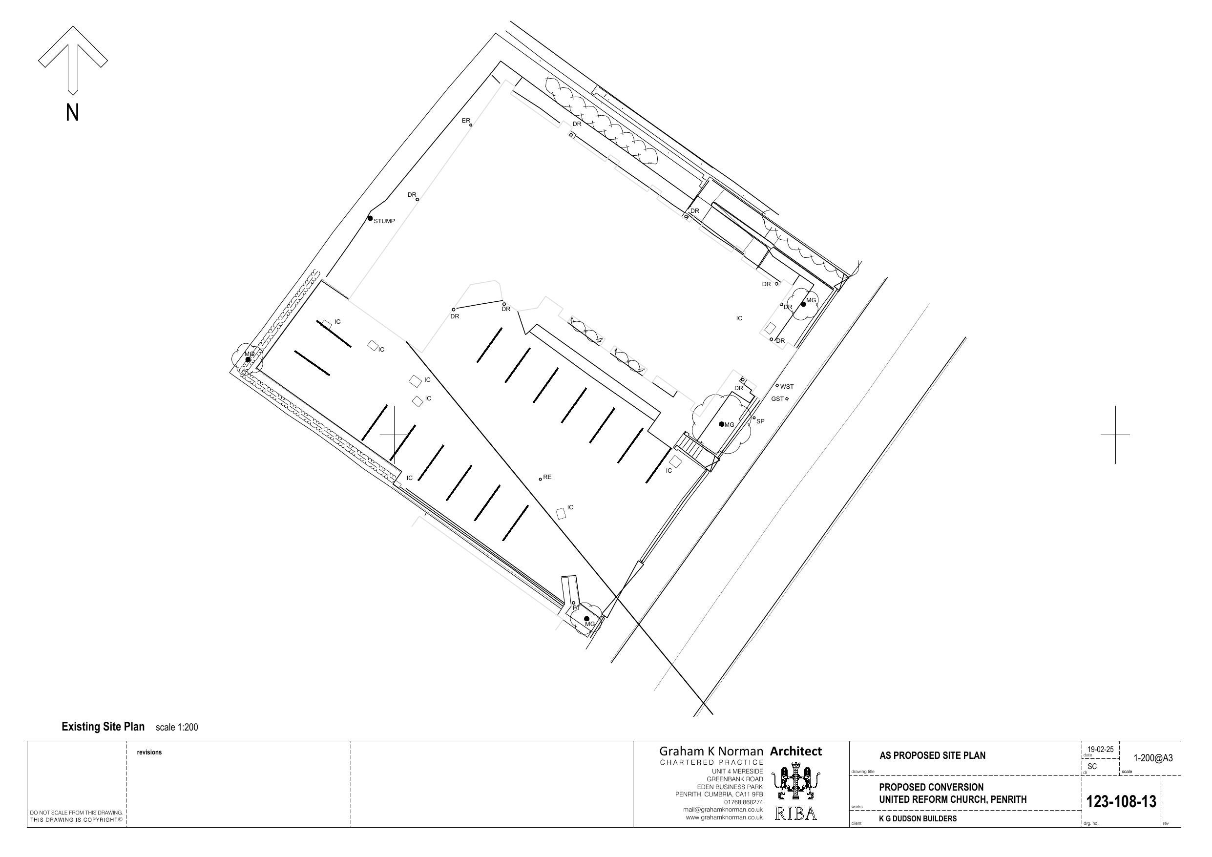
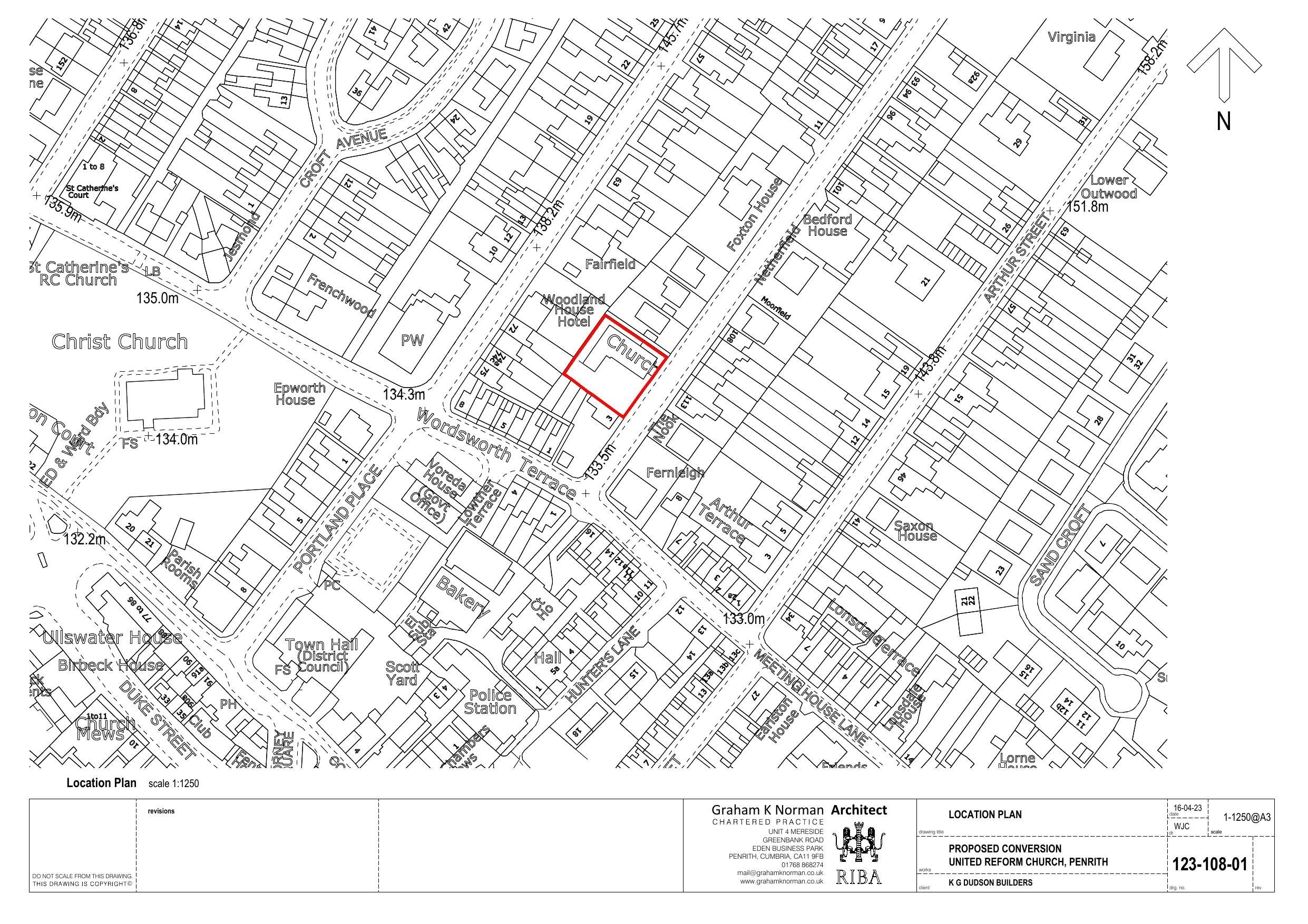
Change of use of church to 6 flats and erection of one linked dwelling in car park.

Full Proposal

Proposal/DescriptionChange of use of former United Reform Church into 6no residential flats and the erection of a single linked dwelling in the car park. Part retrospective.

Documents

-
Document
Not archived · Council Link
-
Document
Not archived · Council Link
-
Document
Not archived · Council Link
-
Document
Not archived · Council Link
-
Document
Not archived · Council Link
-
Document
Not archived · Council Link
-
Document
Not archived · Council Link
-
Document
Not archived · Council Link
-
Document
Not archived · Council Link
-
Document
Not archived · Council Link
-
Document
Not archived · Council Link
-
Document
Not archived · Council Link
-
Document
Not archived · Council Link
-
Document
Not archived · Council Link
-
Document
Not archived · Council Link
-
Document
Not archived · Council Link
-
Document
Not archived · Council Link
-
Document
Not archived · Council Link
-
Document
Not archived · Council Link
-
Document
Not archived · Council Link
-
Document
Not archived · Council Link
-
Document
Not archived · Council Link
-
Document
Not archived · Council Link
-
Document
Not archived · Council Link
-
Document
Not archived · Council Link
-
Document
Not archived · Council Link
-
Document
Not archived · Council Link
-
Document
Not archived · Council Link
-
Document
Not archived · Council Link
-
Document
Not archived · Council Link
-
Document
Not archived · Council Link
-
Document
Not archived · Council Link
-
Document
Not archived · Council Link
-
Document
Not archived · Council Link
-
Document
Not archived · Council Link
-
Document
Not archived · Council Link
-
Document
Not archived · Council Link
-
Document
Not archived · Council Link
-
Document
Not archived · Council Link
-
Document
Not archived · Council Link
-
Document
Not archived · Council Link
-
Document
Not archived · Council Link
-
Document
Not archived · Council Link
-
Document
Not archived · Council Link
-
Document
Not archived · Council Link
-
Document
Not archived · Council Link
-
Document
Not archived · Council Link
-
Document
Not archived · Council Link
-
Document
Not archived · Council Link
-
Document
Not archived · Council Link
-
Document
Archived · Council Link
-
Document
Not archived · Council Link
-
Document
Not archived · Council Link
-
Document
Not archived · Council Link
-
Document
Not archived · Council Link
Document
Archived · Council Link
123-108-02 -
Document
Not archived · Council Link
123-108-03 - A
Document
Not archived · Council Link
123-108-04 -
Document
Not archived · Council Link
123-108-05 - A
Document
Not archived · Council Link
123-108-06 -
Document
Not archived · Council Link
123-108-07 - A
Document
Not archived · Council Link
123-108-08 - B
Document
Not archived · Council Link
123-108-09 - A
Document
Not archived · Council Link
Document
Archived · Council Link
123-108-11 - C
Document
Not archived · Council Link
Document
Archived · Council Link
Document
Archived · Council Link

Take Action

Make your voice heard. Authorities need to hear from people who support new homes.

✉️ Write Email in Support View on Council Portal