← Back to Westmorland and Furness Council

Status

StatusOfficer Consideration
Received
22 Jan 2025
New dwellings
n/a

Summary

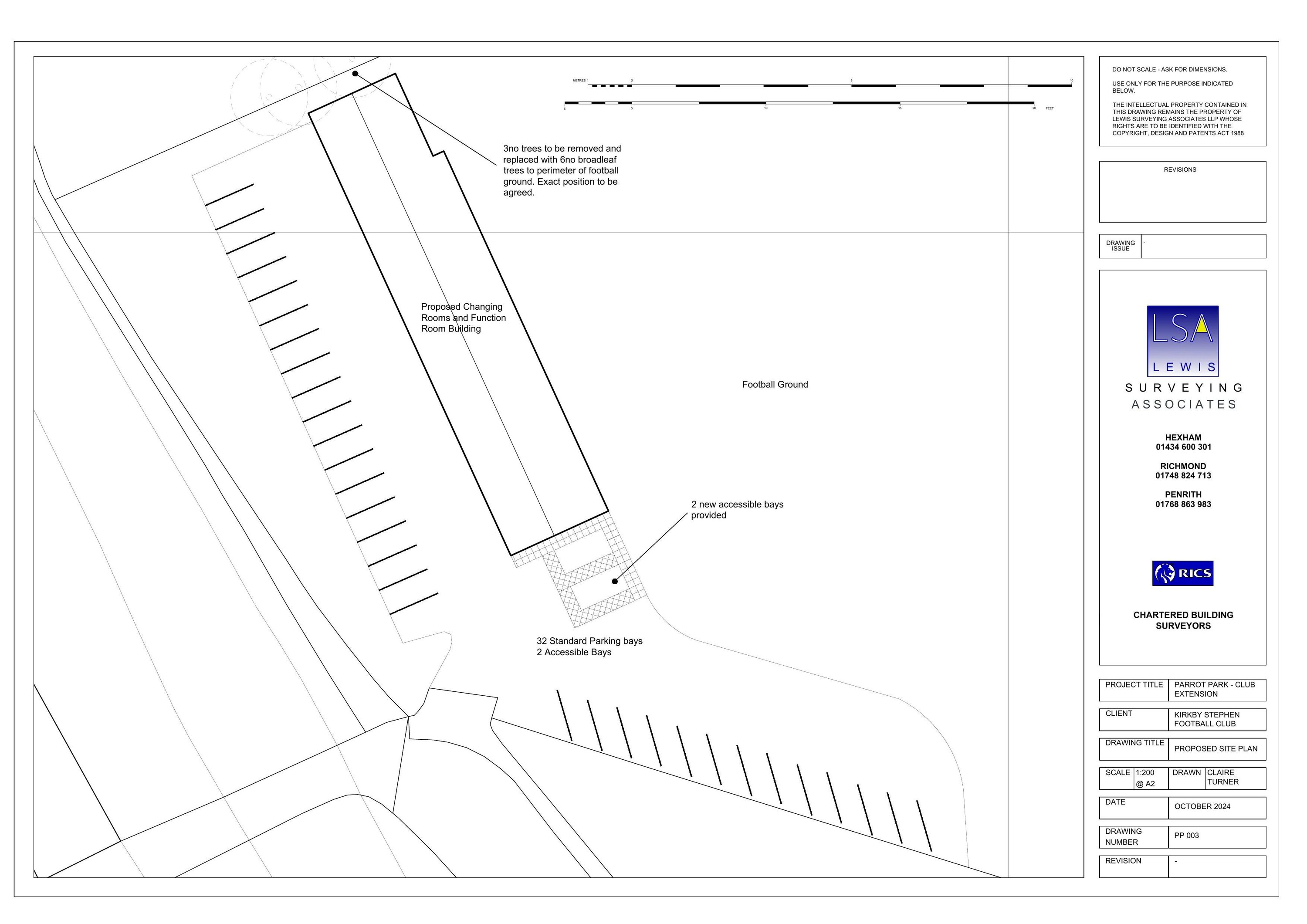
Extend existing changing-room clubhouse to provide function room, WCs and serving facilities.

Full Proposal

Proposal/DescriptionExtension of the existing changing room club house to provide a function room, ancillary WC and serving facilities.

Documents

-
Document
Not archived · Council Link
-
Document
Not archived · Council Link
-
Document
Not archived · Council Link
-
Document
Not archived · Council Link
-
Document
Not archived · Council Link
-
Document
Not archived · Council Link
-
Document
Not archived · Council Link
-
Document
Not archived · Council Link
-
Document
Not archived · Council Link
-
Document
Not archived · Council Link
-
Document
Not archived · Council Link
-
Document
Not archived · Council Link
-
Document
Not archived · Council Link
-
Document
Not archived · Council Link
Document
Archived · Council Link
Document
Archived · Council Link
Document
Archived · Council Link
PP 004 -
Document
Not archived · Council Link
PP 005 - B
Document
Not archived · Council Link
PP 006 -
Document
Not archived · Council Link

Take Action

Make your voice heard. Authorities need to hear from people who support new homes.

✉️ Write Email in Support View on Council Portal