← Back to Westmorland and Furness Council
2025/0591/FPA
Westmorland and Furness Council · MASTERGOV
Status
StatusOfficer Consideration
Received
30 Jul 2025
New dwellings
n/a
Summary
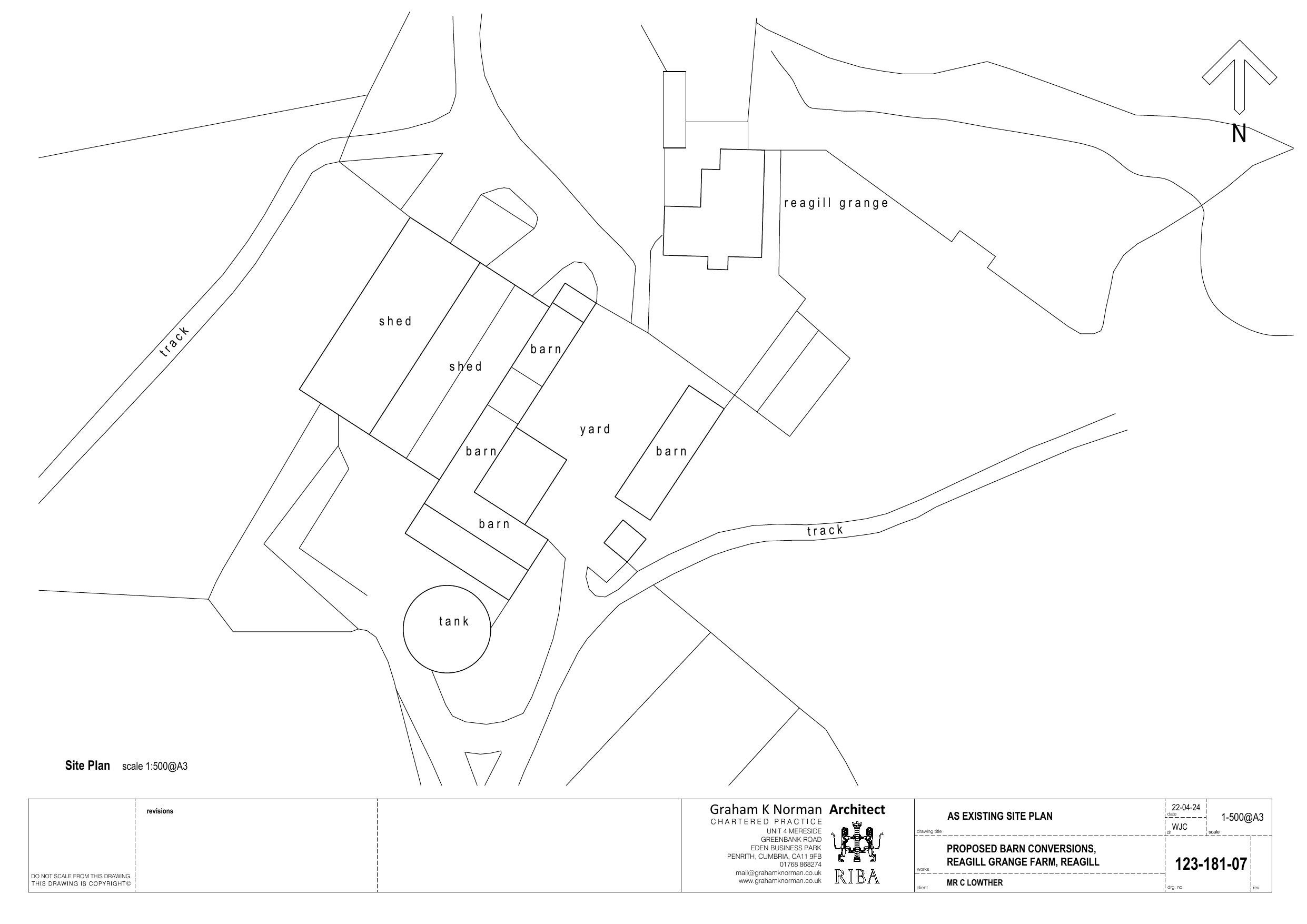
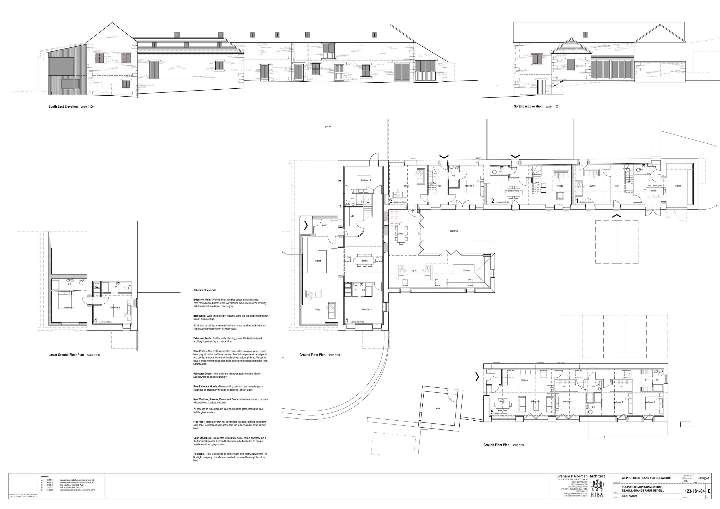
Change of use of agricultural buildings to form five dwellings and associated works.
Full Proposal
Proposal/DescriptionChange of use of agricultural buildings to form 5no dwellinghouses and associated works.
Documents
Take Action
Make your voice heard. Authorities need to hear from people who support new homes.