← Back to Westmorland and Furness Council

Status

StatusOfficer Consideration
Received
14 Sep 2025
New dwellings
n/a

Full Proposal

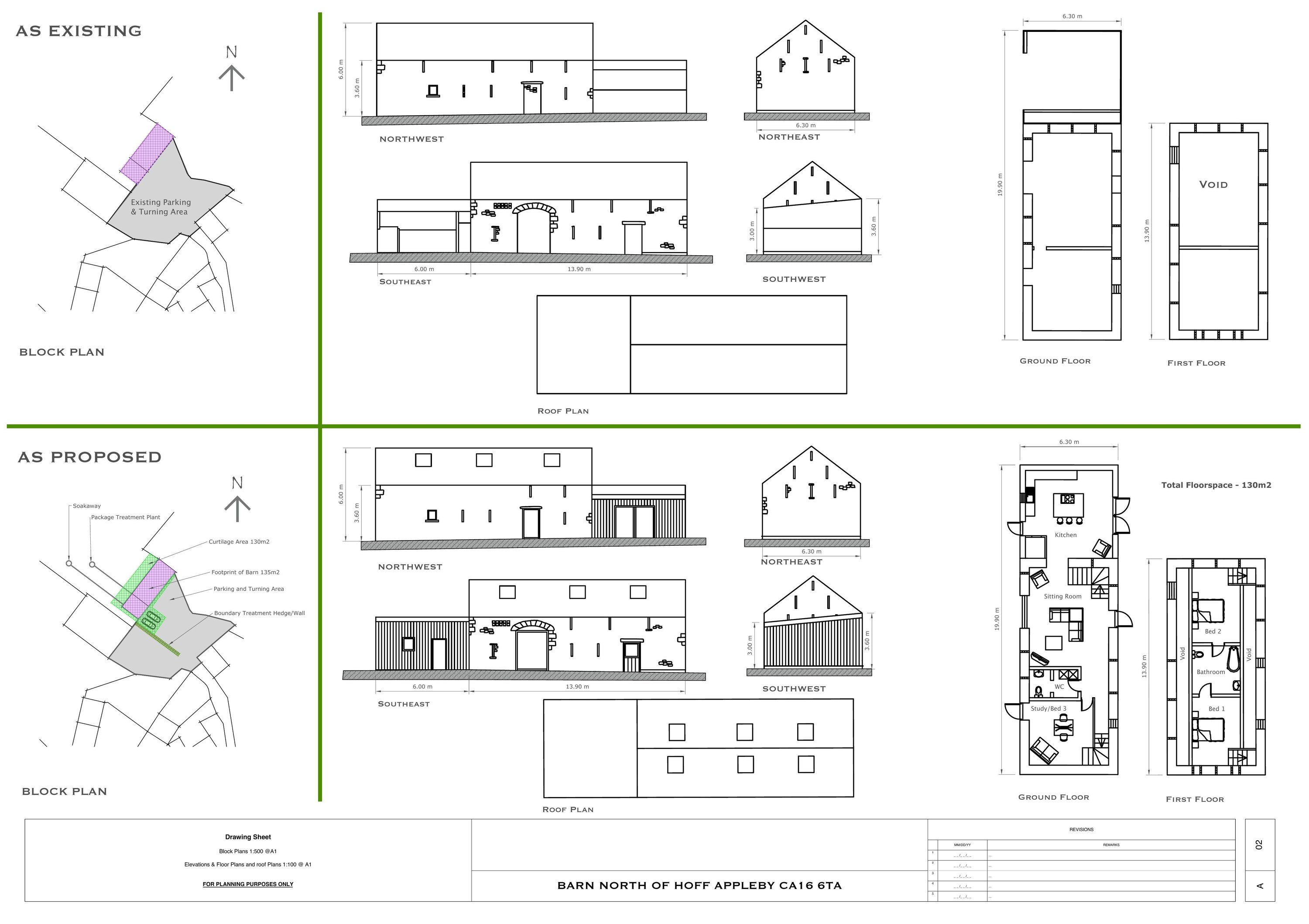
Proposal/DescriptionRegulation 77 application for the change of use of an agricultural building to a dwellinghouse, following Prior Approval 2024/2372/PACOU.

Documents

-
Document
Not archived · Council Link
-
Document
Not archived · Council Link
-
Document
Not archived · Council Link
-
Document
Not archived · Council Link
-
Document
Not archived · Council Link
-
Document
Not archived · Council Link
-
Document
Not archived · Council Link
-
Document
Not archived · Council Link
Document
Archived · Council Link
Document
Archived · Council Link

Take Action

Make your voice heard. Authorities need to hear from people who support new homes.

✉️ Write Email in Support View on Council Portal