← Back to Westmorland and Furness Council
2025/1838/FPA
Westmorland and Furness Council · MASTERGOV
Status
StatusAwaiting Legal Agreement
Received
22 Sep 2025
New dwellings
n/a
Full Proposal
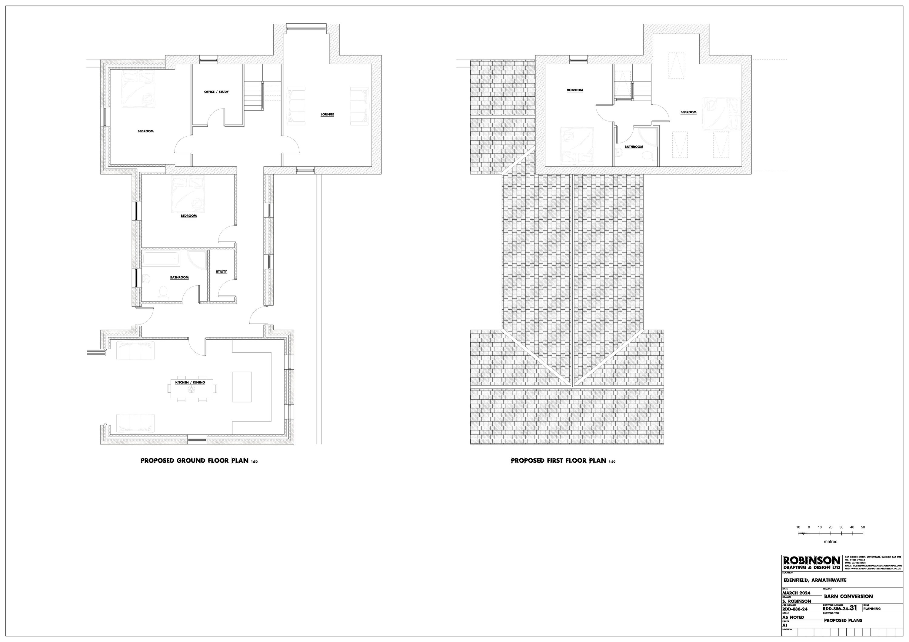
Proposal/DescriptionChange of use of barn to a dwelling, including extension and associated operations.
Documents
Take Action
Make your voice heard. Authorities need to hear from people who support new homes.