← Back to Westmorland and Furness Council

Status

StatusOfficer Consideration
Received
21 Sep 2025
New dwellings
n/a

Full Proposal

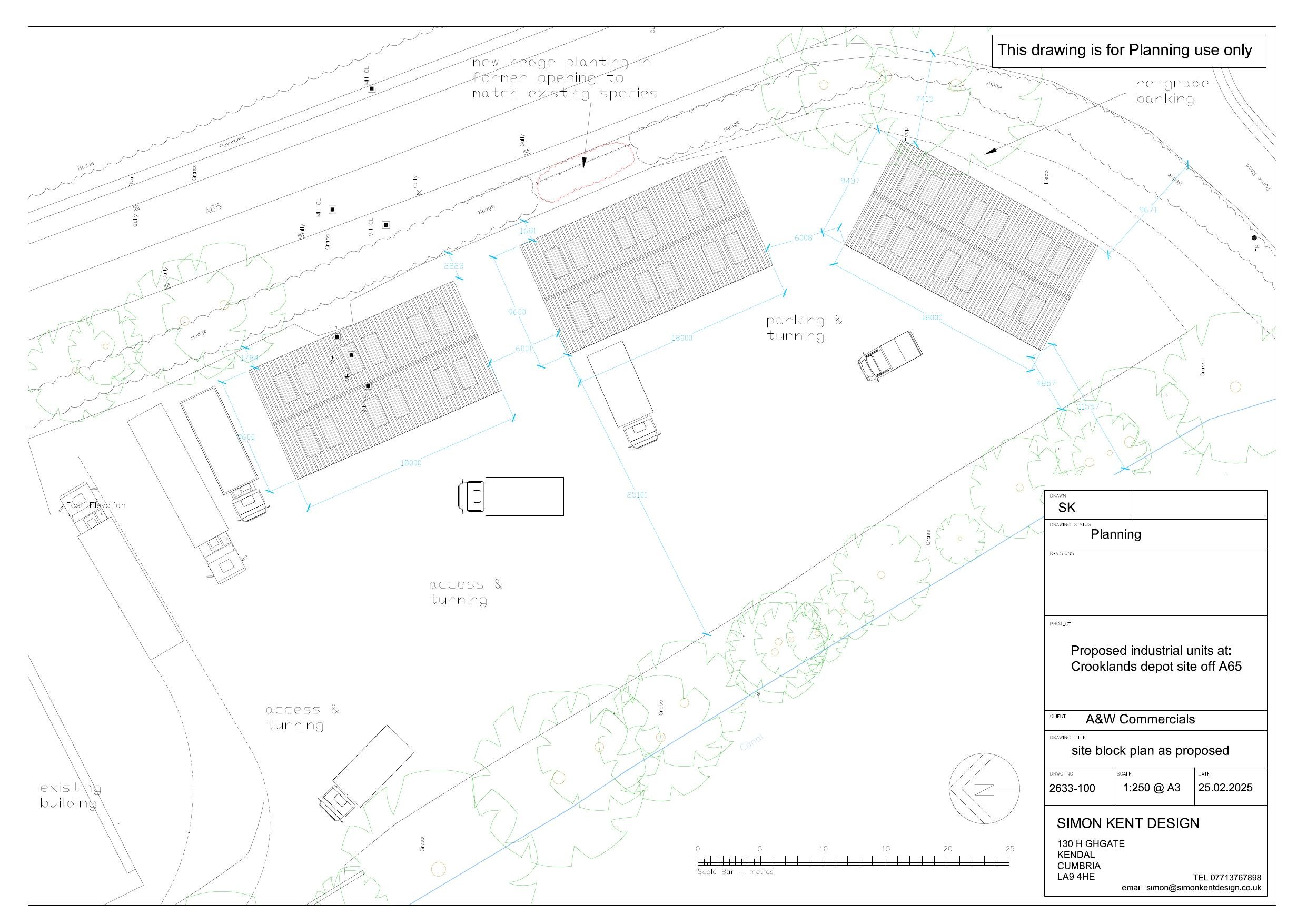
Proposal/DescriptionErection of 3 commercial buildings and associated infrastructure for flexible use B2 (General Industrial), B8 (Storage and Distribution) and/or E(g) (Commercial, Business and Service) (Resubmission of 2025/0454/FPA)

Documents

-
Document
Not archived · Council Link
-
Document
Not archived · Council Link
-
Document
Not archived · Council Link
-
Document
Not archived · Council Link
-
Document
Not archived · Council Link
-
Document
Not archived · Council Link
-
Document
Not archived · Council Link
-
Document
Not archived · Council Link
-
Document
Not archived · Council Link
-
Document
Not archived · Council Link
-
Document
Not archived · Council Link
-
Document
Not archived · Council Link
-
Document
Not archived · Council Link
-
Document
Not archived · Council Link
-
Document
Not archived · Council Link
-
Document
Not archived · Council Link
-
Document
Not archived · Council Link
-
Document
Not archived · Council Link
-
Document
Not archived · Council Link
-
Document
Not archived · Council Link
-
Document
Not archived · Council Link
-
Document
Not archived · Council Link
-
Document
Not archived · Council Link
-
Document
Not archived · Council Link
-
Document
Not archived · Council Link
-
Document
Not archived · Council Link
-
Document
Not archived · Council Link
-
Document
Archived · Council Link
-
Document
Not archived · Council Link
Document
Archived · Council Link
2633-101 -
Document
Not archived · Council Link
2633-102 -
Document
Not archived · Council Link
2633-103 -
Document
Not archived · Council Link
2633-104 -
Document
Not archived · Council Link
2633-105 -
Document
Not archived · Council Link
S5068-BDN-XX-XX-DR-C-010 - P2
Document
Not archived · Council Link

Take Action

Make your voice heard. Authorities need to hear from people who support new homes.

✉️ Write Email in Support View on Council Portal