← Back to Westmorland and Furness Council

Status

StatusOfficer Consideration
Received
01 Dec 2025
New dwellings
n/a

Full Proposal

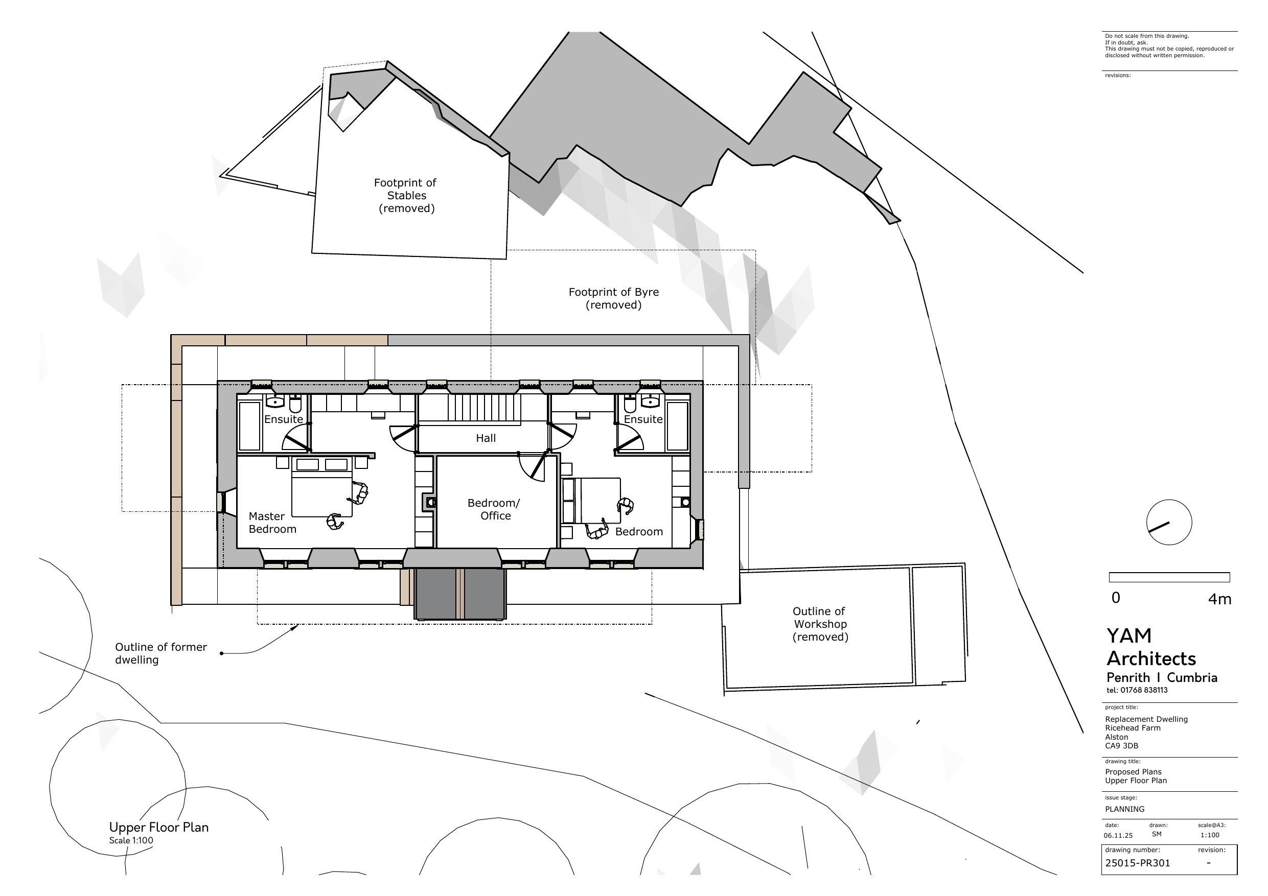
Proposal/DescriptionDemolition of existing dwelling and construction of replacement self-build dwelling.

Documents

-
Document
Not archived · Council Link
-
Document
Not archived · Council Link
-
Document
Not archived · Council Link
-
Document
Not archived · Council Link
-
Document
Not archived · Council Link
-
Document
Not archived · Council Link
-
Document
Not archived · Council Link
-
Document
Not archived · Council Link
-
Document
Not archived · Council Link
-
Document
Archived · Council Link
Document
Archived · Council Link
Document
Archived · Council Link
Document
Archived · Council Link
25015-EX300 -
Document
Not archived · Council Link
25015-EX301 -
Document
Not archived · Council Link
25015-EX302 -
Document
Not archived · Council Link
25015-EX500 -
Document
Not archived · Council Link
25015-EX501 -
Document
Not archived · Council Link
25015-EX502 -
Document
Not archived · Council Link
25015-EX503 -
Document
Not archived · Council Link
Document
Archived · Council Link
Document
Archived · Council Link
Document
Archived · Council Link
Document
Archived · Council Link
Document
Archived · Council Link
Document
Archived · Council Link
Document
Archived · Council Link

Take Action

Make your voice heard. Authorities need to hear from people who support new homes.

✉️ Write Email in Support View on Council Portal