← Back to Westmorland and Furness Council

Status

StatusOfficer Consideration
Received
24 Nov 2025
New dwellings
n/a

Full Proposal

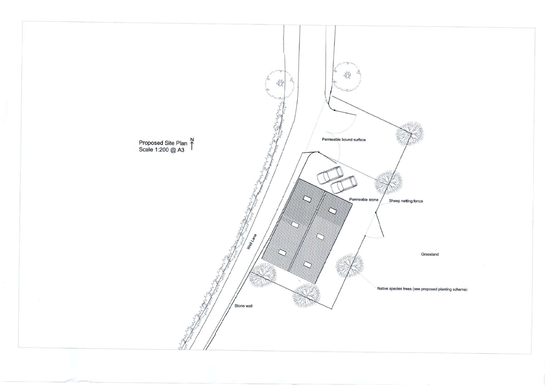
Proposal/DescriptionConstruction of a general purpose agricultural building with alterations and widening of existing access (Part Retrospective)

Documents

-
Document
Not archived · Council Link
-
Document
Not archived · Council Link
-
Document
Not archived · Council Link
-
Document
Not archived · Council Link
-
Document
Not archived · Council Link
-
Document
Not archived · Council Link
-
Document
Not archived · Council Link
-
Document
Not archived · Council Link
-
Document
Not archived · Council Link
-
Document
Not archived · Council Link
-
Document
Not archived · Council Link
-
Document
Archived · Council Link
-
Document
Not archived · Council Link
-
Document
Not archived · Council Link
-
Document
Archived · Council Link
-
Document
Archived · Council Link

Take Action

Make your voice heard. Authorities need to hear from people who support new homes.

✉️ Write Email in Support View on Council Portal