← Back to Wigan Council

Status

Unknown
Received
01 Jul 2025
New dwellings
n/a

Summary

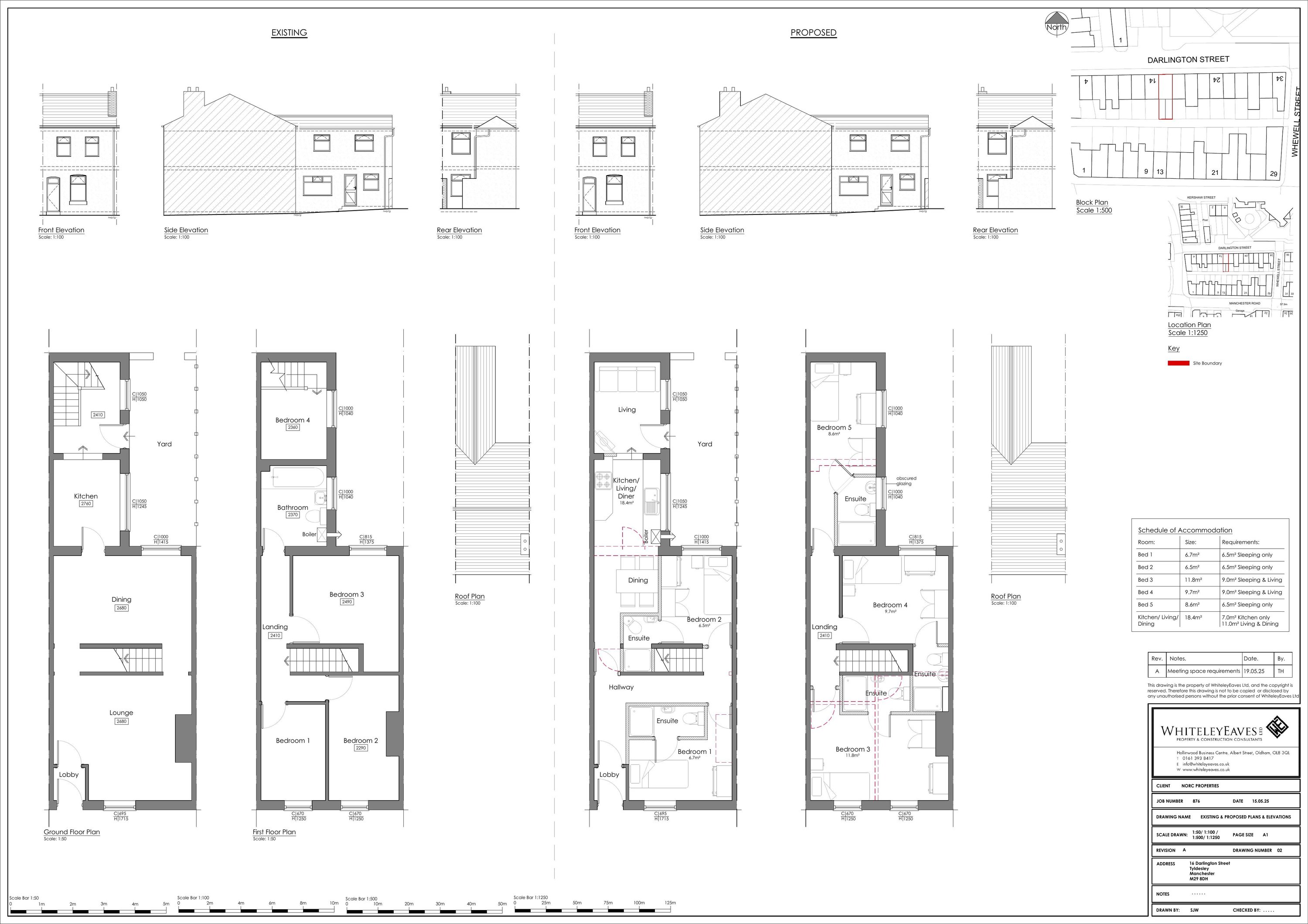
Certificate for proposed conversion of dwelling to 5-person, 5-bedroom HMO (Use Class C4).

Full Proposal

Certificate of lawful development for a proposed use of dwellinghouse (Use Class 3) as a 5 person 5 bed HMO, (Use Class C4)

Documents

APPLICATIONFORMREDACTED
Application Form
Not archived · Council Link
OFFICER REPORT
Officer Report
Not archived · Council Link
WEB DECISION NOTICE
Decision Notice
Not archived · Council Link

Take Action

Make your voice heard. Authorities need to hear from people who support new homes.

✉️ Write Email in Support View on Council Portal