← Back to Wigan Council

Status

Registered
Received
01 Oct 2025
New dwellings
n/a

Summary

Erection of two dwellings with parking and landscaping.

Full Proposal

Erection of 2 dwellings together with associated parking and landscaping following removal of existing dwelling and buildings

Documents

1382-02 EXISTING SITE LAYOUT
Plans and Drawings
Not archived · Council Link
1382-02 EXISTING SITE LAYOUT
Plans and Drawings
Not archived · Council Link
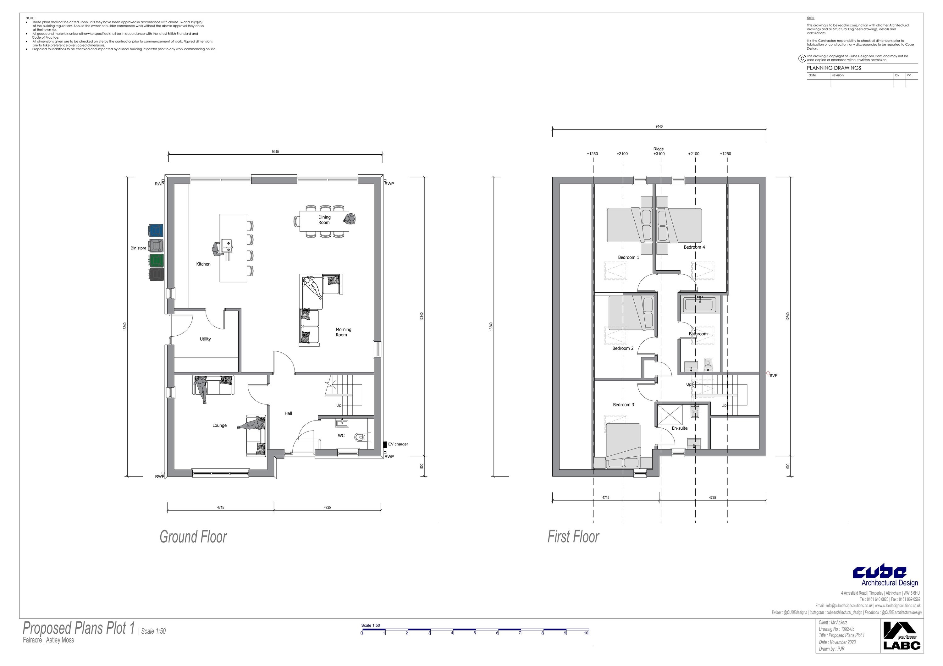
Plans and Drawings
Archived · Council Link
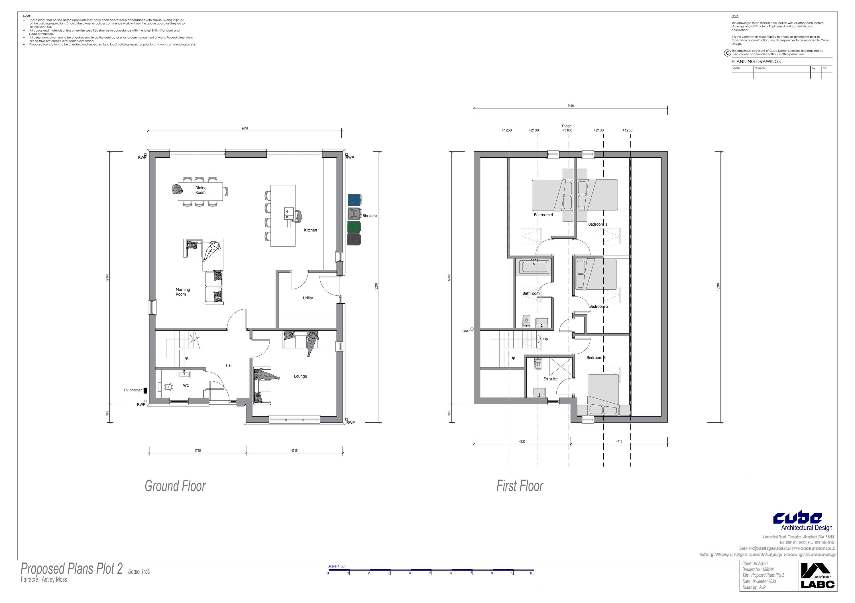
Plans and Drawings
Archived · Council Link
1382-05 PROPOSED ROOF PLANS
Plans and Drawings
Not archived · Council Link
Plans and Drawings
Archived · Council Link
1382-07 PROPOSED ELEVATIONS PLOT 1
Plans and Drawings
Not archived · Council Link
1382-08 PROPOSED ELEVATIONS PLOT 2
Plans and Drawings
Not archived · Council Link
1382-09 PROPOSED STREET SCENE
Plans and Drawings
Not archived · Council Link
1382-10 EXISTING LOCATION PLAN
Location Plan
Not archived · Council Link
1382-11 EXISTING LOCATION PLAN
Location Plan
Not archived · Council Link
1382-12 PROPOSED LOCATION PLAN
Location Plan
Not archived · Council Link
1382-13 PROPOSED LOCATION PLAN
Location Plan
Not archived · Council Link
1382-14 PROPOSED SITE LAYOUT
Plans and Drawings
Not archived · Council Link
1382-15 EXISTING WORKSHOP ELEVATIONS
Plans and Drawings
Not archived · Council Link
1382-16 EXISTING DWELLING ELEVATIONS
Plans and Drawings
Not archived · Council Link
2025 PRELIMINARY ROOST ASSESSMENT - FAIRACRE - ASTLEY MOSS
Supporting Report
Not archived · Council Link
APPLICATIONFORMREDACTED
Application Form
Not archived · Council Link
BIODIVERSITY NET GAIN STATEMENT
Supporting Report
Not archived · Council Link
GREEN BELT STATEMENT
Supporting Report
Not archived · Council Link
PLANNING STATEMENT
Supporting Report
Not archived · Council Link
PRELIMINARY ECOLOGICAL APPRAISAL - FAIRACRE - ASTLEY MOSS
Supporting Report
Not archived · Council Link
SELF BUILD 24_0797_STATEMENT_BIODIVERSITY_NET_GAIN
Supporting Report
Not archived · Council Link
TRANSPORT POLICY
Consultee Reply
Not archived · Council Link
TREE OFFICER
Consultee Reply
Not archived · Council Link
UNITED UTILITIES
Consultee Reply
Not archived · Council Link

Take Action

Make your voice heard. Authorities need to hear from people who support new homes.

✉️ Write Email in Support View on Council Portal