A/25/099776/FULL
Wigan Council · IDOX
Status
Registered
Received
06 Oct 2025
New dwellings
n/a
Full Proposal
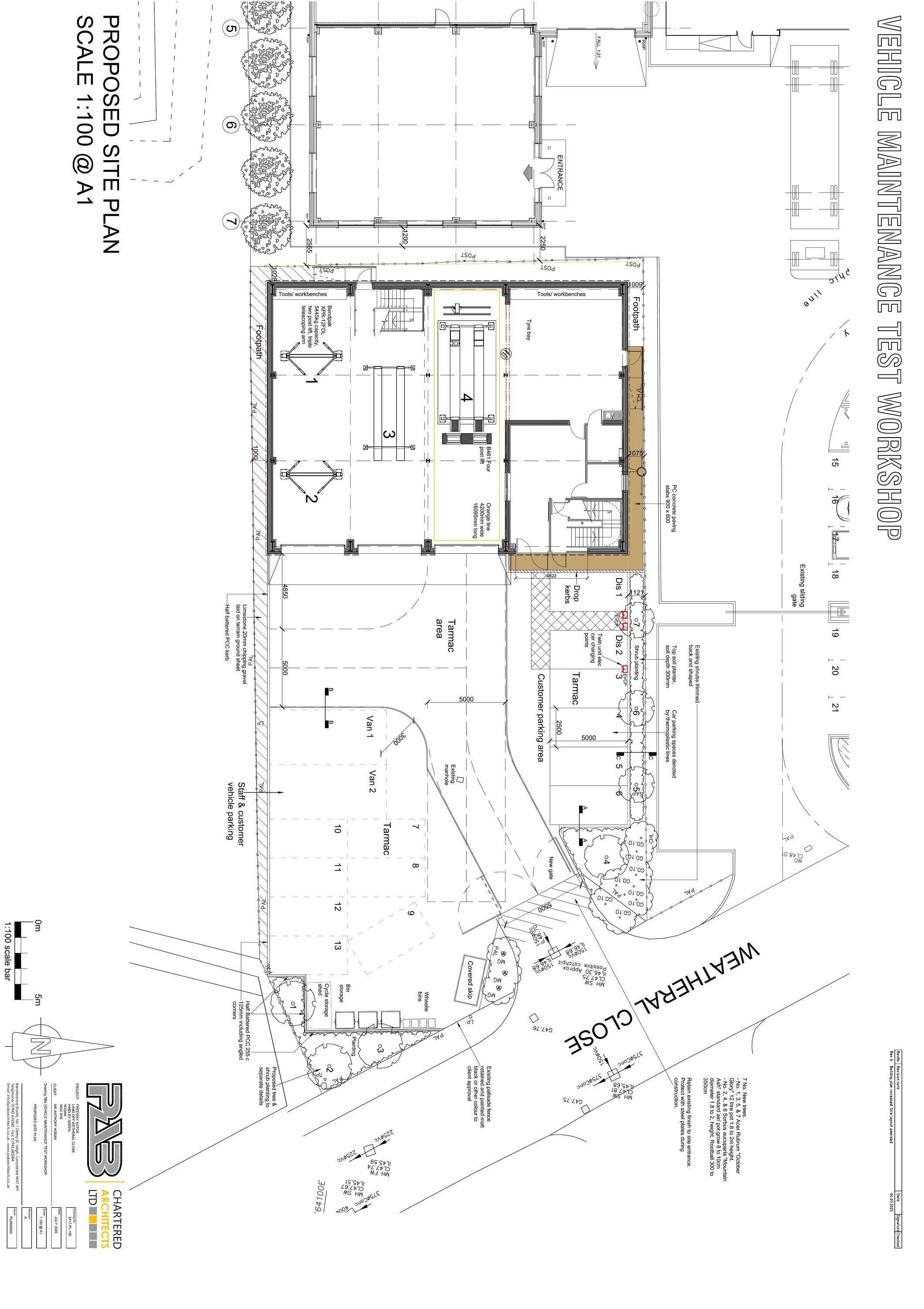
Construction of a vehicle workshop and Mot testing facility with offices at first floor level, photovoltaic panels to roof, together with associated external works, car and customer parking, drainage and landscaping works
Documents
1417.DESIGNANDACCESSSTATEMENT.FREEWAYAUTOS (AUTORECOVERED)
Supporting Report
Not archived
· Council Link
2417-PL-108 REV B - PROPOSED FRONT AND GABLE ELEVATIONS
Plans and Drawings
Not archived
· Council Link
2417-PL-109 REV B - PROPOSED REAR AND GABLE ELEVATIONS
Plans and Drawings
Not archived
· Council Link
PR-25-0271 LAND OFF WETHERAL CLOSE - THE STATUTORY METRIC.XLSX
Supporting Report
Not archived
· Council Link
Take Action
Make your voice heard. Authorities need to hear from people who support new homes.