← Back to Wigan Council

Status

Registered
Received
20 Oct 2025
New dwellings
n/a

Full Proposal

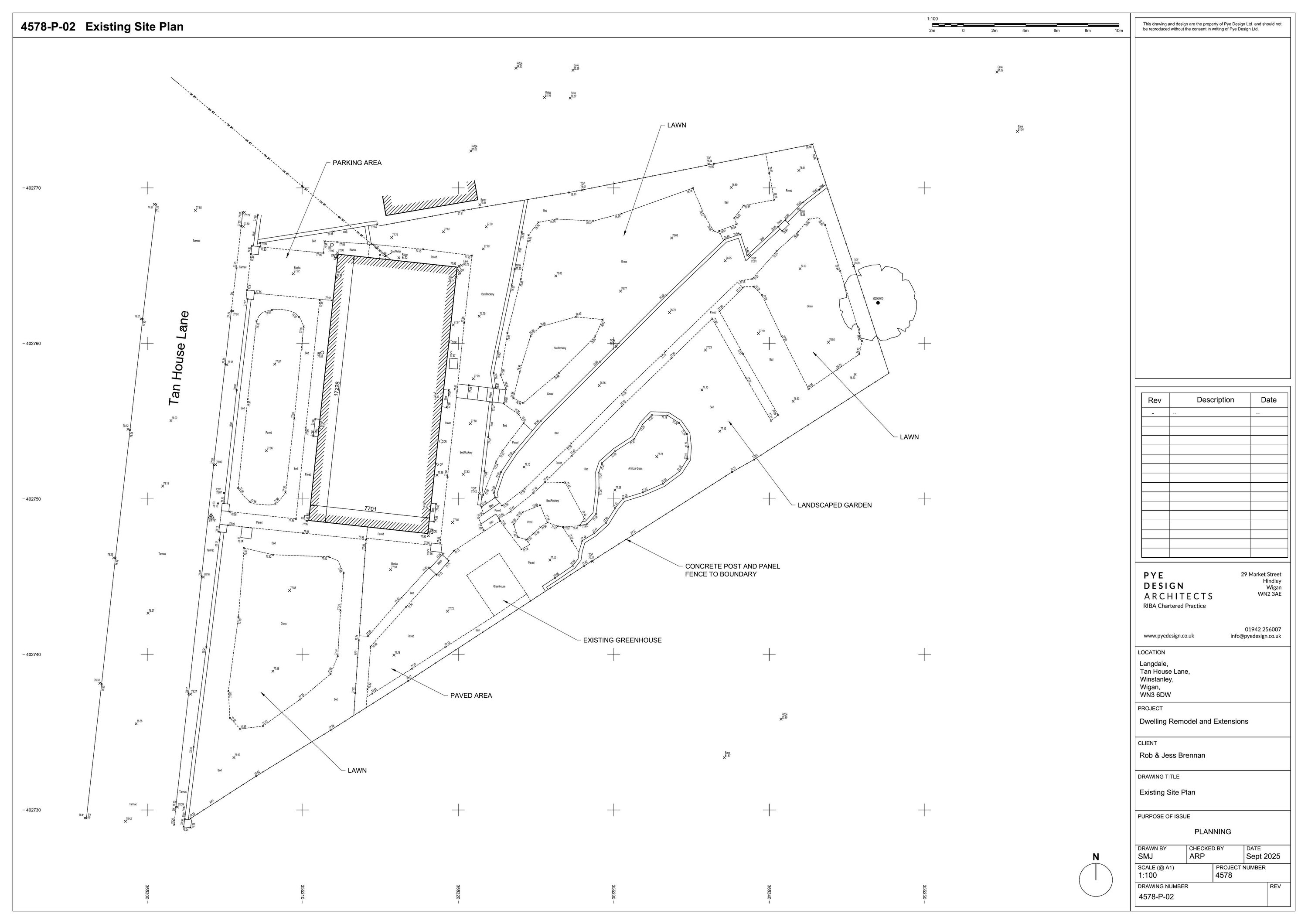
Remodelling of existing dwelling including new roof, new dormers to front and rear, single storey to side and rear extension with solar panels to front and flue to rear, patio to rear and creation of additional driveway together with associated external alterations including external finishing and new fenestration

Documents

Plans and Drawings
Archived · Council Link
4578-P-04 EXISTING ELEVATIONS
Plans and Drawings
Not archived · Council Link
4578-P-07 PROPOSED ELEVATIONS
Plans and Drawings
Not archived · Council Link
4578-P-08 PROPOSED BLOCK PLAN
Plans and Drawings
Not archived · Council Link
APPLICATIONFORMREDACTED
Application Form
Not archived · Council Link
EXISTING FLOOR PLANS AND ROOF PLAN
Plans and Drawings
Not archived · Council Link
LOCATIONPLAN
Location Plan
Not archived · Council Link
ONLINE COMMENT
Public Comment
Not archived · Council Link
SOLAR PANEL DETAILS
Plans and Drawings
Not archived · Council Link

Take Action

Make your voice heard. Authorities need to hear from people who support new homes.

✉️ Write Email in Support View on Council Portal