A/25/100098/FULL
Wigan Council · IDOX
Status
Registered
Received
28 Nov 2025
New dwellings
n/a
Full Proposal
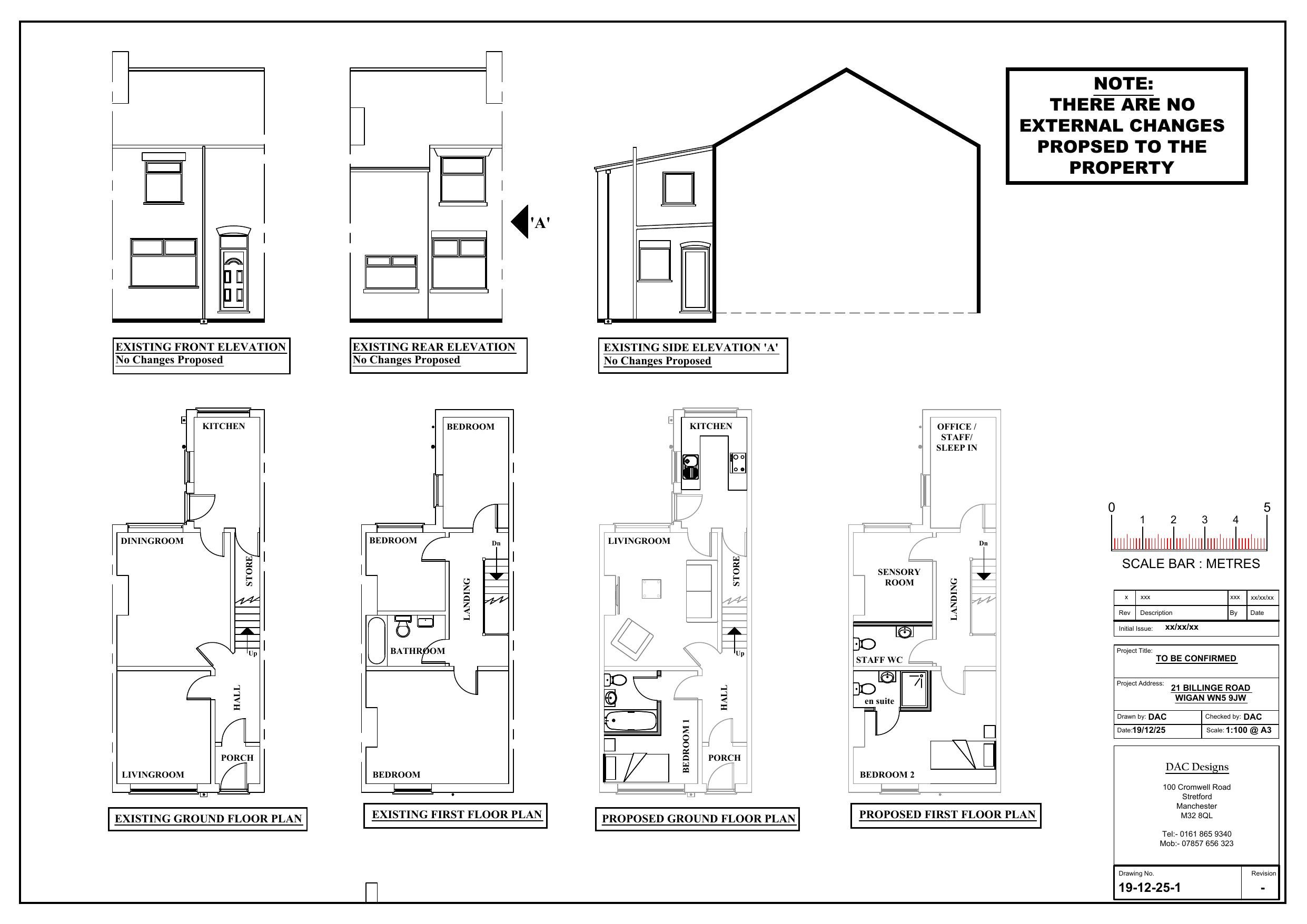
Change of use from single dwelling (Use Class C3) to a childrens residential home for up to 2 children (Use Class C2)
Documents
Take Action
Make your voice heard. Authorities need to hear from people who support new homes.