← Back to Royal Borough of Windsor and Maidenhead

Status

Awaiting decision
Received
13 Feb 2025
New dwellings
n/a

Full Proposal

Demolition/removal of all existing buildings, structures and hardstanding and the erection of three two-storey detached four/five-bedroom dwellings and a single building comprising of five two-bedroom apartments together with access, parking and garaging, bin and bike storage and amenity space.

Documents

1 community comment
Community Comments Object
Not archived · Council Link
1 public comment
Community Comments Object
Not archived · Council Link
1 public comment
Community Comments Object
Not archived · Council Link
1 public comment
Community Comments Object
Not archived · Council Link
1 public comment
Community Comments Object
Not archived · Council Link
1 public comment
Community Comments Object
Not archived · Council Link
1 public comment
Community Comments Object
Not archived · Council Link
1 public comment
Community Comments Object
Not archived · Council Link
1 public comment
Community Comments Object
Not archived · Council Link
1 public comment
Community Comments Object
Not archived · Council Link
1 public comment
Community Comments Object
Not archived · Council Link
1 public comment
Community Comments Object
Not archived · Council Link
1 public comment
Community Comments Object
Not archived · Council Link
1 public comment
Community Comments Object
Not archived · Council Link
1 public comment
Community Comments Object
Not archived · Council Link
1 public comment
Community Comments Object
Not archived · Council Link
1 public comment
Community Comments Object
Not archived · Council Link
1 public comment
Community Comments Object
Not archived · Council Link
1 public comment
Community Comments Object
Not archived · Council Link
1 public comment
Community Comments Object
Not archived · Council Link
1 public comment
Community Comments Object
Not archived · Council Link
Advert
Supporting Information - General
Not archived · Council Link
Application form - redacted
Application Forms
Not archived · Council Link
Approved document o report overheating risk in residential buildings for berries
Supporting Information - General
Not archived · Council Link
Arboricultural impact assessment
Supporting Information - Trees
Not archived · Council Link
Archaeological desk-based assessment
Supporting Information - General
Not archived · Council Link
Berkshire archaeology
Consultee - Comments
Not archived · Council Link
Biodiversity metric
Supporting Information - General
Not archived · Council Link
Cil form
CIL Documents
Not archived · Council Link
Cllr call in to Panel
Cllr call in to Panel
Not archived · Council Link
Cllr call in to Panel
Cllr call in to Panel
Not archived · Council Link
Amended Plans
Archived · Council Link
Plans
Archived · Council Link
Conservation
Consultee - Comments
Not archived · Council Link
Conservation
Consultee - Comments
Not archived · Council Link
Cookham parish council -request for extension for comments
Extension of Time
Not archived · Council Link
Cookham parish council comment
Parish Council Comments
Not archived · Council Link
Cookham parish council comments
Parish Council Comments
Not archived · Council Link
Cookham parish council's comments
Parish Council Comments
Not archived · Council Link
Cookham society comments
Community Comments Object
Not archived · Council Link
Degree guideline.
Amended Plans
Not archived · Council Link
Design and access statement
Design and Access Statement
Not archived · Council Link
Dynamic thermal modelling ? approved document o
Supporting Information - General
Not archived · Council Link
Ecology
Consultee - Comments
Not archived · Council Link
Ecology comment
Consultee - Comments
Not archived · Council Link
Email 01.07.2025-cllr email
Correspondence - General
Not archived · Council Link
Email 04.04.2025-cllr correspondence
Correspondence - General
Not archived · Council Link
Email 10.12.2025-cllr` email
Correspondence - General
Not archived · Council Link
Email 17.12.2025-cllr`s email
Correspondence - General
Not archived · Council Link
Email 18.08.2025
Correspondence - General
Not archived · Council Link
Email 18.08.2025-(email 1 of 2).
Correspondence - General
Not archived · Council Link
Email 18.08.2025-(email 2 of 2)
Correspondence - General
Not archived · Council Link
Email 19.08.2025
Correspondence - General
Not archived · Council Link
Email 22.12.2025
Correspondence - General
Not archived · Council Link
Email 27.08.2025
Correspondence - General
Not archived · Council Link
Energy and sustainability statement.
Supporting Information - General
Not archived · Council Link
Energy strategy
Supporting Information - General
Not archived · Council Link
Environment agency
Consultee - Comments
Not archived · Council Link
Environment agency
Consultee - Comments
Not archived · Council Link
Environment agency
Consultee - Comments
Not archived · Council Link
Environment protection
Consultee - Comments
Not archived · Council Link
Existing buildings - plans and elevations
Plans
Not archived · Council Link
Fire appliance access
Plans
Not archived · Council Link
Flood risk assessment - part 1
Supporting Information - Flood Risk
Not archived · Council Link
Flood risk assessment - part 2
Supporting Information - Flood Risk
Not archived · Council Link
Form 1- cil additional information
CIL Documents
Not archived · Council Link
Friends of cookham abbey
Consultee - Comments
Not archived · Council Link
Full sap calculation printout derter_plot 1_green.
Supporting Information - General
Not archived · Council Link
Full sap calculation printout derter_plot 1_lean.
Supporting Information - General
Not archived · Council Link
Full sap calculation printout derter_plot 2_green
Supporting Information - General
Not archived · Council Link
Full sap calculation printout derter_plot 2_lean.
Supporting Information - General
Not archived · Council Link
Full sap calculation printout derter_plot 3_green.
Supporting Information - General
Not archived · Council Link
Full sap calculation printout derter_plot 3_lean
Supporting Information - General
Not archived · Council Link
Full sap calculation printout derter_plot 4_green.
Supporting Information - General
Not archived · Council Link
Full sap calculation printout derter_plot 4_lean.
Supporting Information - General
Not archived · Council Link
Full sap calculation printout derter_plot 5_green
Supporting Information - General
Not archived · Council Link
Full sap calculation printout derter_plot 5_lean.
Supporting Information - General
Not archived · Council Link
Full sap calculation printout derter_plot 6_green.
Supporting Information - General
Not archived · Council Link
Full sap calculation printout derter_plot 6_lean
Supporting Information - General
Not archived · Council Link
Full sap calculation printout derter_plot 7_green
Supporting Information - General
Not archived · Council Link
Full sap calculation printout derter_plot 7_lean
Supporting Information - General
Not archived · Council Link
Full sap calculation printout derter_plot 8_green
Supporting Information - General
Not archived · Council Link
Full sap calculation printout derter_plot 8_lean.
Supporting Information - General
Not archived · Council Link
Heritage statement
Heritage Statement
Not archived · Council Link
Highways
Consultee - Comments
Not archived · Council Link
Highways
Consultee - Comments
Not archived · Council Link
History log
Property History
Not archived · Council Link
Illustrative cgi 01
Supporting Information - General
Not archived · Council Link
Llfa comment
Consultee - Comments
Not archived · Council Link
Llfa comment
Consultee - Comments
Not archived · Council Link
Location plan
Plans
Not archived · Council Link
Neighbour notification list
Neighbour Notification List
Not archived · Council Link
On behalf of friends of cookham abbey
Consultee - Comments
Not archived · Council Link
Planning decisions from cookham parish council
Parish Council Comments
Not archived · Council Link
Planning statement
Planning Statement
Not archived · Council Link
Amended Plans
Archived · Council Link
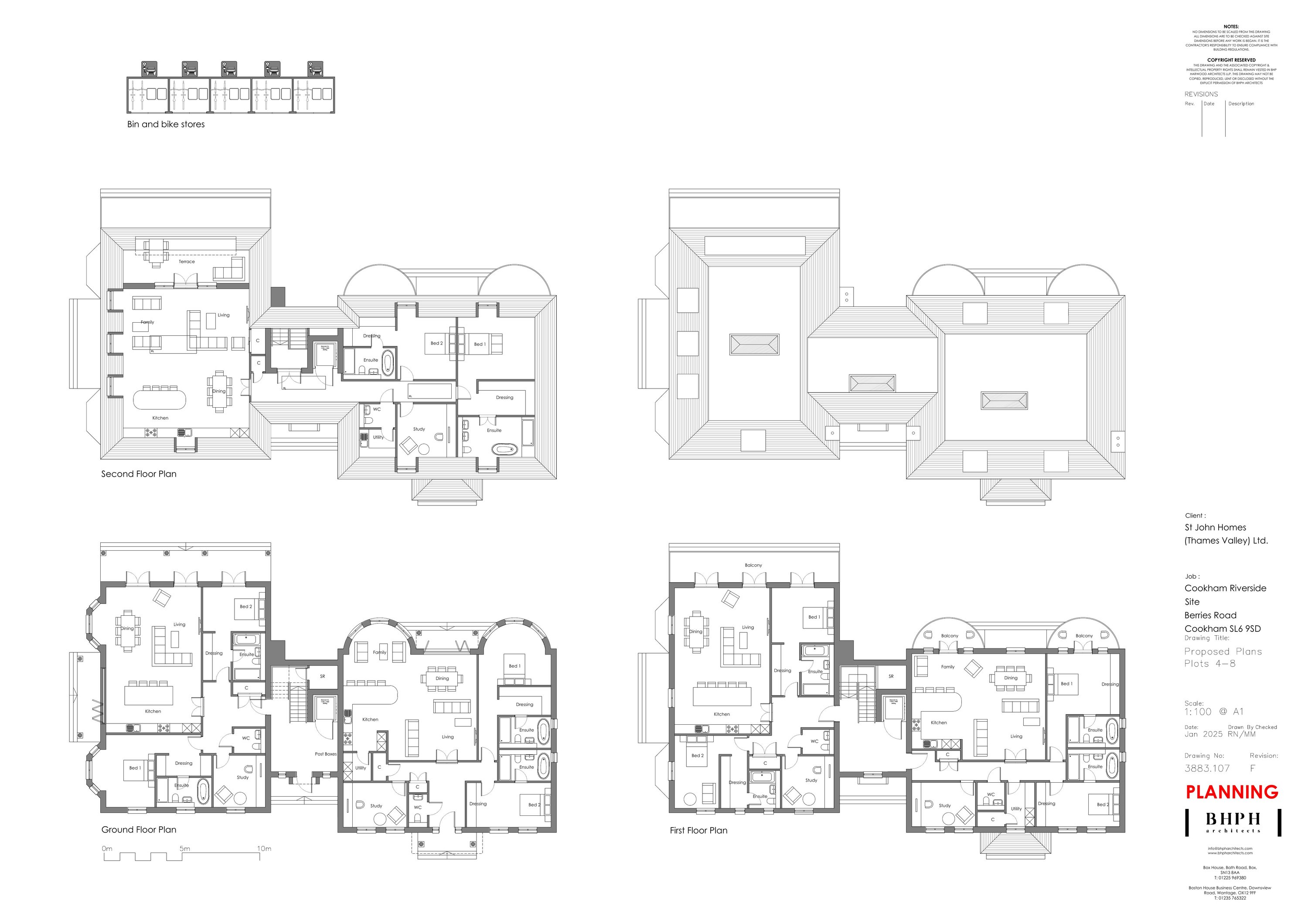
Plot 1-proposed elevations
Amended Plans
Not archived · Council Link
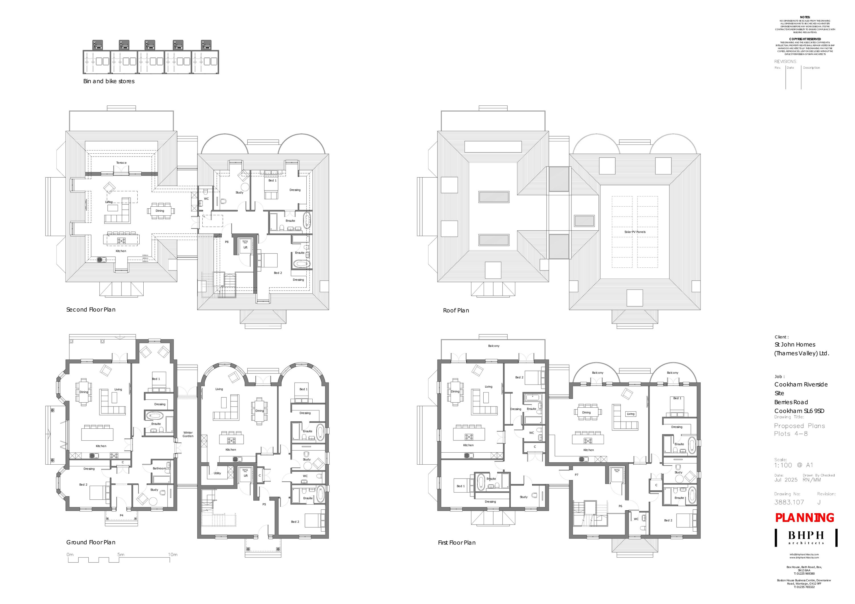
Plots 4-8 proposed elevations.
Amended Plans
Not archived · Council Link
Plots 4-8 proposed elevations.
Amended Plans
Not archived · Council Link
Amended Plans
Archived · Council Link
Proposed elevations - plot 1
Plans
Not archived · Council Link
Proposed elevations - plots 4-8
Plans
Not archived · Council Link
Proposed elevations -plots 4-8
Amended Plans
Not archived · Council Link
Proposed plots 4-8 elevations
Amended Plans
Not archived · Council Link
Proposed plots 4-8 plans.
Amended Plans
Not archived · Council Link
Amended Plans
Archived · Council Link
Superseded Plans
Archived · Council Link
Superseded Plans
Archived · Council Link
Public comment(full)
Community Comments Object
Not archived · Council Link
Rbwm sustainability checklist - berries rd site.p
Supporting Information - General
Not archived · Council Link
Relationship to whytegates.p
Amended Plans
Not archived · Council Link
Response to highways comments
Correspondence - General
Not archived · Council Link
Riverside nursing home fifth submission russell report.
Supporting Information - General
Not archived · Council Link
Site notice
Photographs
Not archived · Council Link
Site notice
Photographs
Not archived · Council Link
Amended Plans
Archived · Council Link
Street elevation
Amended Plans
Not archived · Council Link
Structural landscape plan
Supporting Information - Landscape
Not archived · Council Link
Structural landscape plan
Plans
Not archived · Council Link
Structural landscape plan.
Supporting Information - Landscape
Not archived · Council Link
Sustainability officer
Consultee - Comments
Not archived · Council Link
Sustainability officer
Supporting Information - General
Not archived · Council Link
Technical note: biodiversity net gain
Supporting Information - General
Not archived · Council Link
The cookham society
Community Comments Object
Not archived · Council Link
The cookham society
Community Comments Object
Not archived · Council Link
The cookham society
Consultee - Comments
Not archived · Council Link
The cookham society
Community Comments Object
Not archived · Council Link
The cookham society?s representation
Consultee - Comments
Not archived · Council Link
The cookham society?s representation
Consultee - Comments
Not archived · Council Link
Transport statement
Supporting Information - Transport
Not archived · Council Link
Tree protection plan
Supporting Information - Trees
Not archived · Council Link
Tree survey and arboricultural impact assessment
Supporting Information - Trees
Not archived · Council Link
Unfolded street elevation
Plans
Not archived · Council Link
Wat1 tool - berries rd site.
Supporting Information - General
Not archived · Council Link

Take Action

Make your voice heard. Authorities need to hear from people who support new homes.

✉️ Write Email in Support View on Council Portal