← Back to Royal Borough of Windsor and Maidenhead
25/02482/FULL
Royal Borough of Windsor and Maidenhead · IDOX
Status
Awaiting decision
Received
23 Sep 2025
New dwellings
n/a
Full Proposal
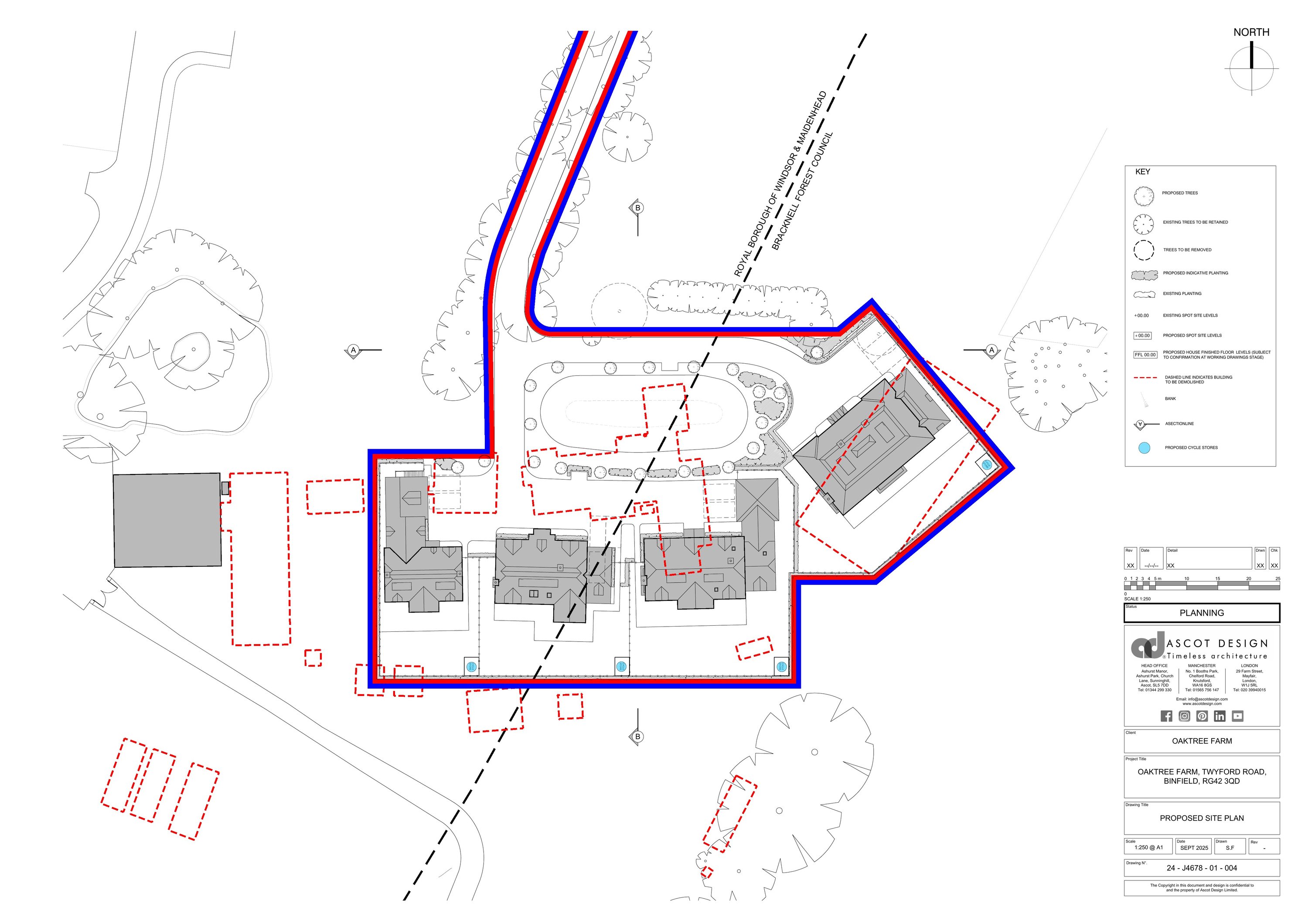
4no. residential detached dwellings, cycle and refuse storage, hardstanding and landscaping following demolition of existing elements.
Documents
Arboricultural impact assessment, method statement & tree protection plan
Supporting Information - Trees
Not archived
· Council Link
Landscape and visual appraisal - part 1
Supporting Information - Landscape
Not archived
· Council Link
Landscape and visual appraisal - part 2
Supporting Information - Landscape
Not archived
· Council Link
Naturespace great crested newt district licensing scheme certificate
Supporting Information - Trees
Not archived
· Council Link
Oak tree farm :impact plan for geart crested newt district licencing
Supporting Information - Trees
Not archived
· Council Link
Planning statement incorporating green belt assessment
Supporting Information - General
Not archived
· Council Link
Take Action
Make your voice heard. Authorities need to hear from people who support new homes.