← Back to Royal Borough of Windsor and Maidenhead
26/00179/FULL
Royal Borough of Windsor and Maidenhead · IDOX
Status
Awaiting decision
Received
Last month
New dwellings
n/a
Full Proposal
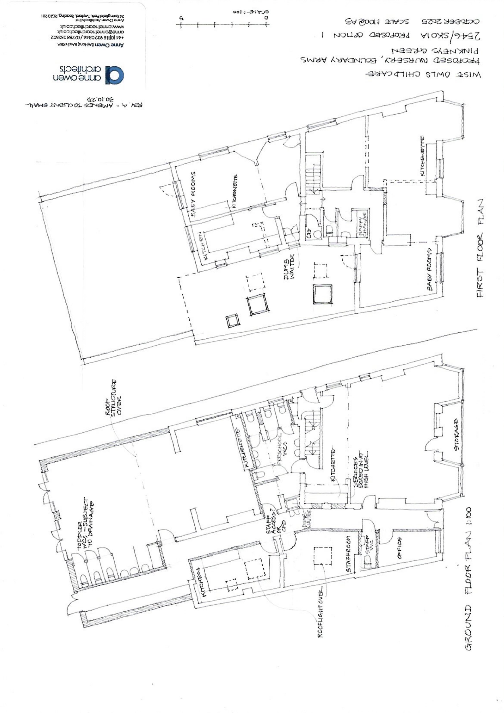
Change of use from public house to a childrens day nursery, single storey rear extension,1no bike store, 1no. buggy parking, 1no. bin store, landscaping and hardstanding and alterations to fenestration following demolition of existing elements.
Documents
10 space amazon eco specification sheet
Supporting Information - General
Not archived
· Council Link
Boundary arms - marketing correspondence
Supporting Information - General
Not archived
· Council Link
Ecology impact assessment & biodiversit net gain assessment
Supporting Information - Ecology
Not archived
· Council Link
Take Action
Make your voice heard. Authorities need to hear from people who support new homes.