← Back to Woking Borough Council

Status

Permitted subject to a legal agremment
Received
n/a
New dwellings
n/a

Summary

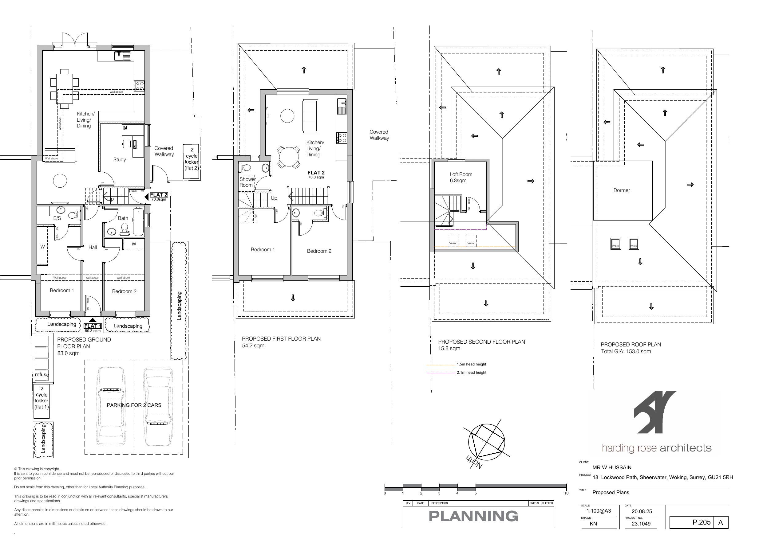
Retain rear dormer and convert house into two flats with parking and dropped kerb.

Full Proposal

Retention of a rear facing dormer and proposed conversion of existing dwellinghouse into 2x flats with associated parking and extended dropped kerb (part retrospective)

Documents

(SUPERSEDED) 23.1049 P.206 PROPOSED FRONT AND REAR ELEVATIONS
Plans
Not archived · Council Link
23.1049 B.201 BLOCK PLAN
Plans
Not archived · Council Link
23.1049 L.201 LOCATION PLAN
Plans
Not archived · Council Link
23.1049 P.202 EXISTING PLANS
Plans
Not archived · Council Link
23.1049 P.203 EXISTING FRONT AND REAR ELEVATIONS
Plans
Not archived · Council Link
23.1049 P.204 EXISTING SIDE ELEVATIONS
Plans
Not archived · Council Link
23.1049 P.206 REV A- PROPOSED FRONT AND REAR ELEVATIONS (AMENDED PLAN)
Plans
Not archived · Council Link
23.1049 P.207 PROPOSED SIDE ELEVATIONS
Plans
Not archived · Council Link
APPLICATIONFORMREDACTED
Application Form
Not archived · Council Link
APPR. - FULL - DECISION
Decision
Not archived · Council Link
APPROPRIATE ASSESSMENT REPORT
Report
Not archived · Council Link
CRITICAL DRAINAGE OFFICER
Consultee Comment
Not archived · Council Link
DELEGATION REPORT
Report
Not archived · Council Link
DESIGN AND ACCESS STATEMENT
Report
Not archived · Council Link
DRAFT DECISION
Decision
Not archived · Council Link
EXTENSION OF TIME GENERAL LETTER
Correspondence
Not archived · Council Link
NEIGH. NOTIF. - STANDARD - LIST
Neighbour Notification List
Not archived · Council Link
NOTICE UNDER ARTICLE 13- SIGNED
Application Form
Not archived · Council Link
PARKING PROVISION
Background Papers
Not archived · Council Link
SCC HIGHWAYS
Consultee Comment
Not archived · Council Link
SCC HIGHWAYS
Consultee Comment
Not archived · Council Link
UNILATERAL UNDERTAKING
Decision
Not archived · Council Link
WORKSHEET FOR PLANNING APPLICATION
Correspondence
Not archived · Council Link

Take Action

Make your voice heard. Authorities need to hear from people who support new homes.

✉️ Write Email in Support View on Council Portal