← Back to Woking Borough Council

Status

Permitted subject to a legal agremment
Received
n/a
New dwellings
n/a

Summary

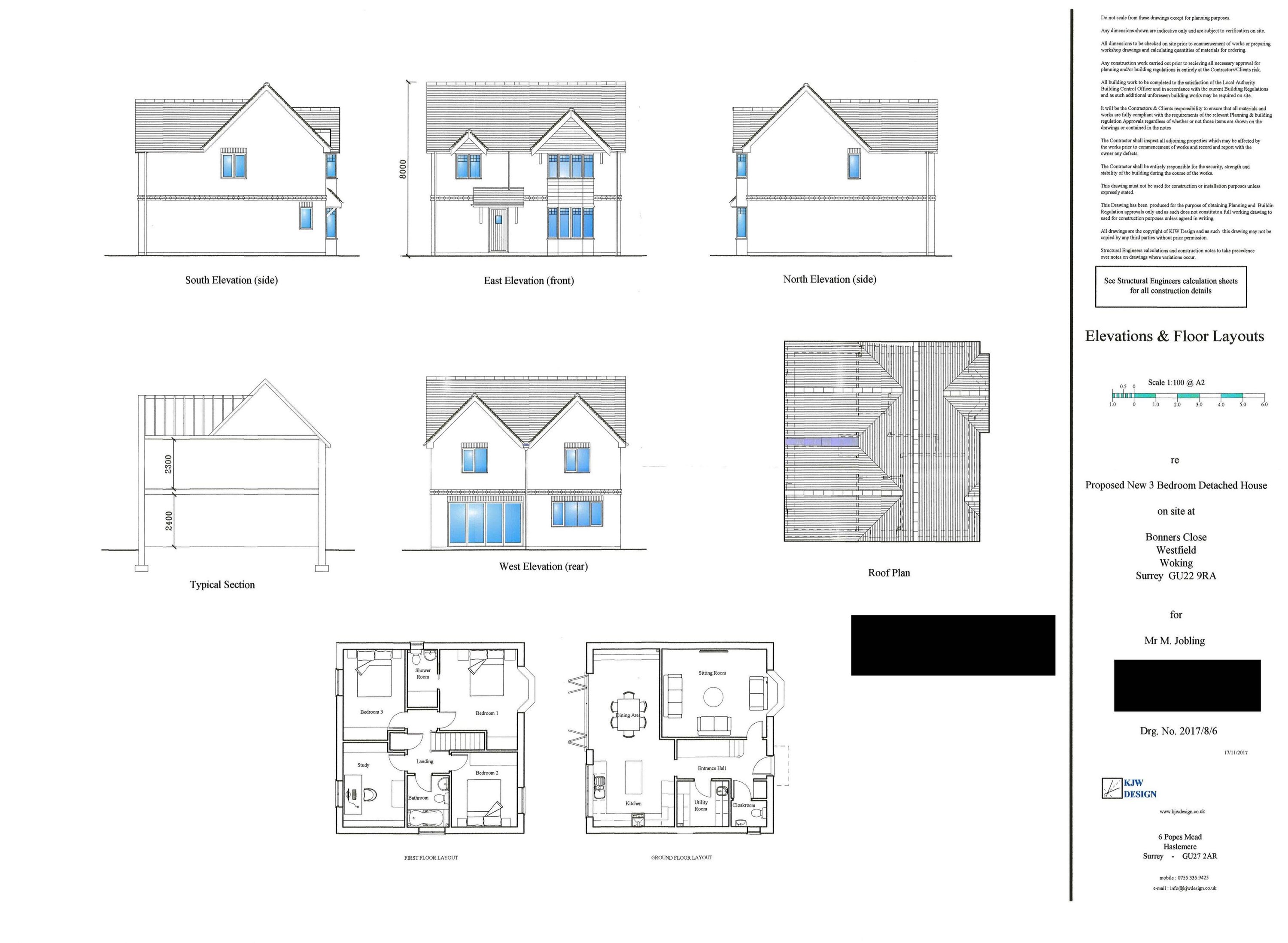
Construction of one detached four-bedroom house.

Full Proposal

Proposed construction of a 4no. bedroom detached house.

Documents

APPLICATION FORM - REDACTED
Application Form
Not archived · Council Link
APPR. - FULL - DECISION
Decision
Not archived · Council Link
APPROPRIATE ASSESSMENT REPORT
Report
Not archived · Council Link
BAT SURVEY REPORT
Report
Not archived · Council Link
BLOCK PLAN
Plans
Not archived · Council Link
BNG MATRIX
Background Papers
Not archived · Council Link
CIL FORM 1: CIL ADDITIONAL INFORMATION FORM
Background Papers
Not archived · Council Link
CIL FORM 2 - ASSUMPTION OF LIABILITY.
Background Papers
Not archived · Council Link
COUNTY HIGHWAY AUTHORITY (SURREY COUNTY COUNCIL).
Consultee Comment
Not archived · Council Link
COVER LETTER 21-08-2025
Correspondence
Not archived · Council Link
DELEGATED REPORT
Report
Not archived · Council Link
DESIGN AND ACCESS STATEMENT
Report
Not archived · Council Link
ECO BNG TECHNICAL NOTE
Report
Not archived · Council Link
ECOLOGICAL APPRAISAL REV A
Report
Not archived · Council Link
EXTENSION OF TIME GENERAL LETTER
Correspondence
Not archived · Council Link
EXTENSION OF TIME GENERAL LETTER
Correspondence
Not archived · Council Link
LOCATION PLAN
Plans
Not archived · Council Link
MRS HAZEL OAKLEY
Public Comment
Not archived · Council Link
NEIGH. NOTIF. - STANDARD - LIST
Neighbour Notification List
Not archived · Council Link
SCC HIGHWAYS
Consultee Comment
Not archived · Council Link
SENIOR ARBORICULTURAL OFFICER
Consultee Comment
Not archived · Council Link
SITE NOTICE
Background Papers
Not archived · Council Link
SURREY WILDLIFE TRUST
Consultee Comment
Not archived · Council Link
THAMES WATER
Consultee Comment
Not archived · Council Link
UNILATERAL UNDERTAKING
Decision
Not archived · Council Link
WORKSHEET FOR PLANNING APPLICATION
Correspondence
Not archived · Council Link

Take Action

Make your voice heard. Authorities need to hear from people who support new homes.

✉️ Write Email in Support View on Council Portal