← Back to Woking Borough Council

Status

Awaiting decision
Received
n/a
New dwellings
n/a

Summary

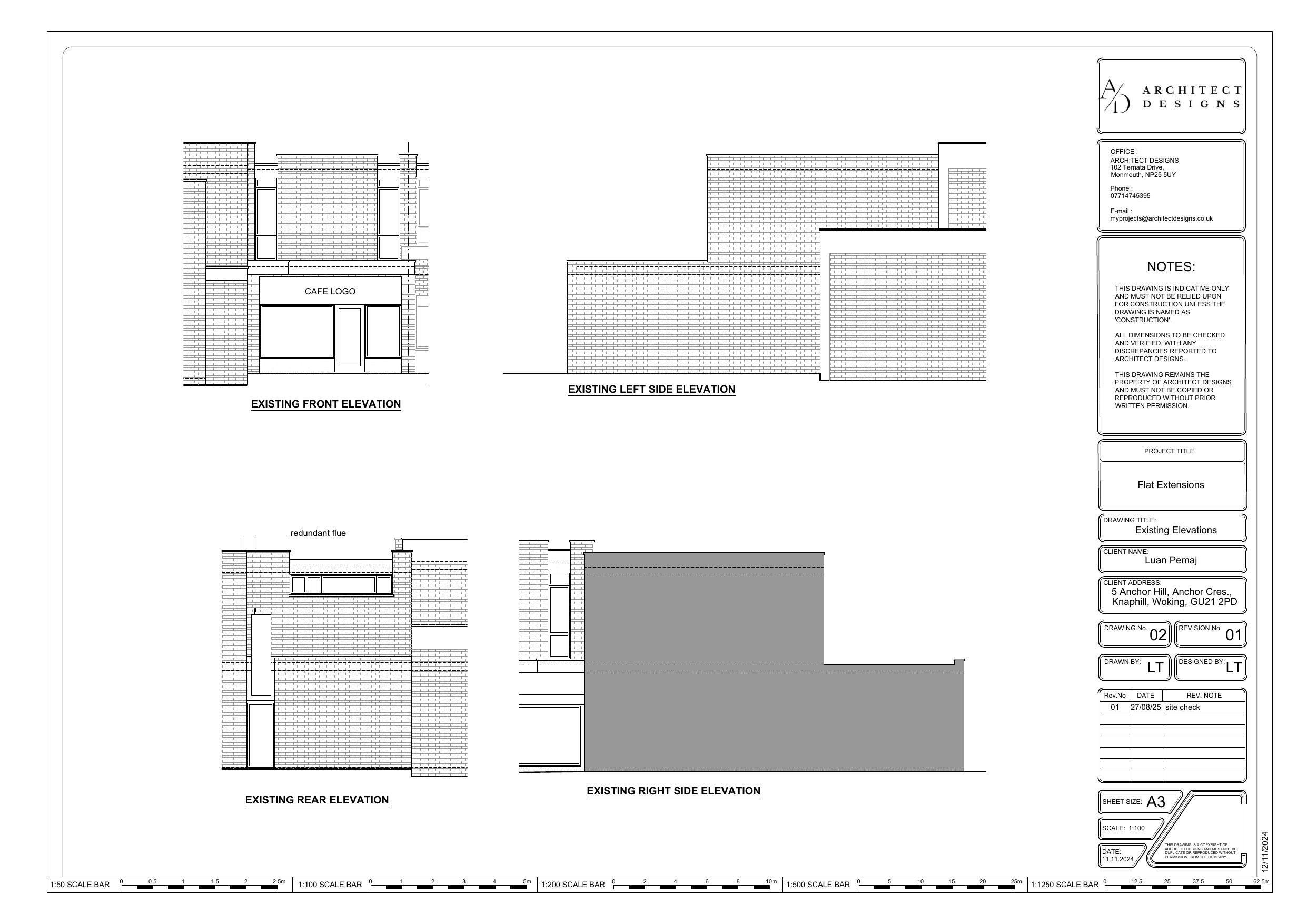
First-floor extension and conversion into one two-bedroom flat; revised ground-floor café layout and bin/bike storage.

Full Proposal

Proposed erection of a first-floor level extension to the first-floor storage area (Use Class E) and conversion of first-floor into a self-contained two-bedroom residential unit (Use Class C3) with associated external bin and bicycle storage provision. Revised ground-floor café layout that introduces an accessible unisex WC with a lobby. Removal of external roof-mounted extraction flue.

Documents

APPLICATIONFORMREDACTED
Application Form
Not archived · Council Link
APPROPRIATE ASSMENT REPORT
Report
Not archived · Council Link
BINS AND BIKES
Plans
Not archived · Council Link
BIODIVERSITY NET GAIN EXEMPTION STATEMENT
Report
Not archived · Council Link
CIL FORM 1
Application Form
Not archived · Council Link
DELEGATION REPORT
Report
Not archived · Council Link
ENVIRONMENTAL HEALTH OFFICER
Consultee Comment
Not archived · Council Link
Plans
Archived · Council Link
LEGAL - FULL - S106 - DRAFT
Decision
Not archived · Council Link
LOCATION PLAN
Plans
Not archived · Council Link
NEIGH. NOTIF. - STANDARD - LIST
Neighbour Notification List
Not archived · Council Link
NOISE ASSESSMENT REPORT
Report
Not archived · Council Link
PLANNING STATEMENT
Report
Not archived · Council Link
Plans
Archived · Council Link
SCC HIGHWAYS
Consultee Comment
Not archived · Council Link
WORKSHEET FOR PLANNING APPLICATION
Correspondence
Not archived · Council Link

Take Action

Make your voice heard. Authorities need to hear from people who support new homes.

✉️ Write Email in Support View on Council Portal