← Back to Woking Borough Council

Status

Pending Consideration
Received
n/a
New dwellings
n/a

Summary

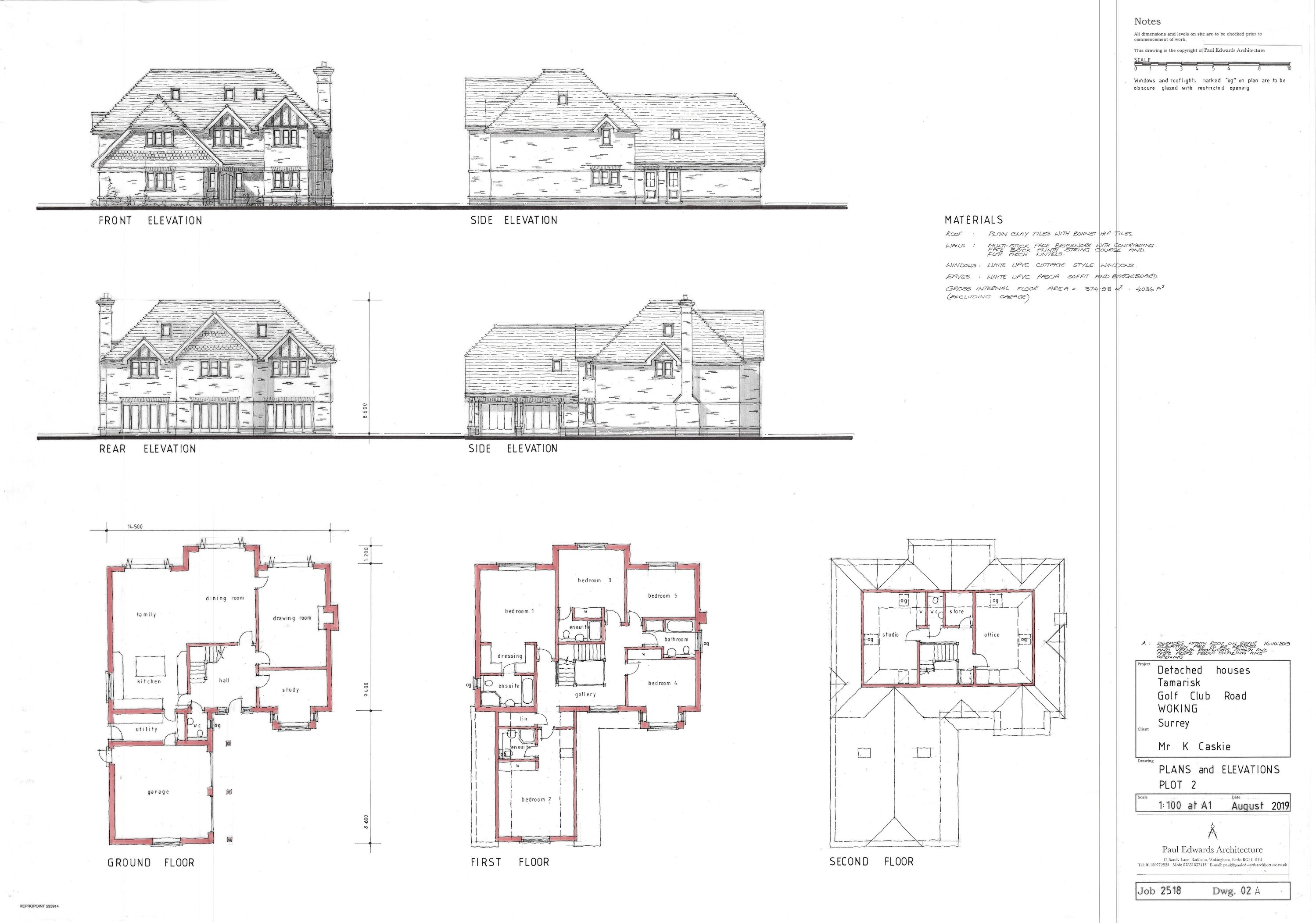
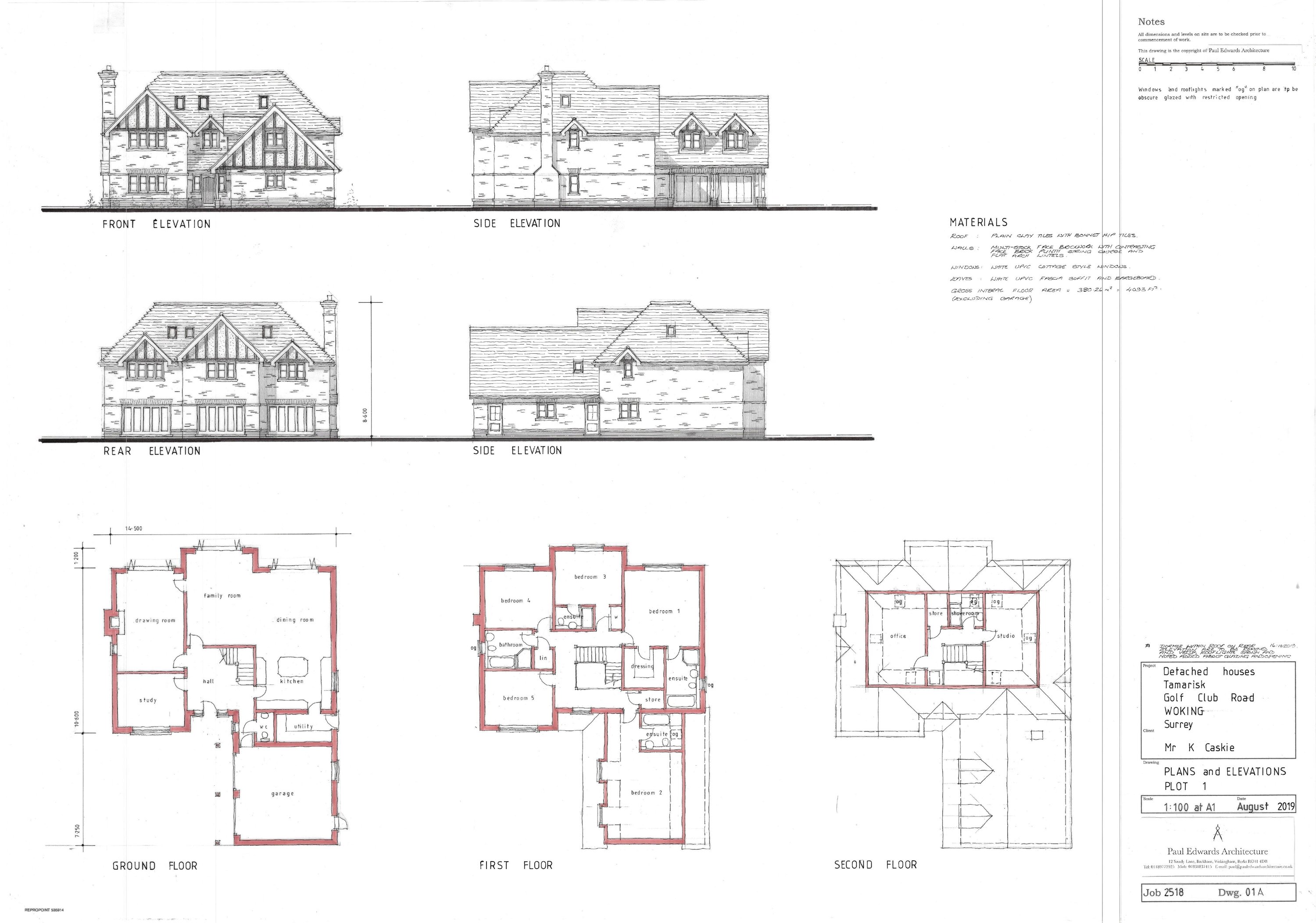
Construction of two detached two-storey dwellings with attached double garages and landscaping.

Full Proposal

Construction of 2 x detached 2 storey dwellings with attached double garages and associated landscaping following the demolition of the existing detached 2 storey dwelling and detached garage.

Documents

APPLICATIONFORMREDACTED
Application Form
Not archived · Council Link
ARBORICULTURAL REPORT
Background Papers
Not archived · Council Link
BHCA 0LS 38586332 - V1 -
Background Papers
Not archived · Council Link
BNG - 38586332 - V1
Plans
Not archived · Council Link
DESIGN AND ACCESS ATATEMENT
Background Papers
Not archived · Council Link
DRAINAGE CALCULATIONS
Background Papers
Not archived · Council Link
DRAINAGE PLAN-P1
Background Papers
Not archived · Council Link
DRAINAGE SCHEDULES-P1
Background Papers
Not archived · Council Link
ECOLOGY TN (AUGUST 2025)
Background Papers
Not archived · Council Link
ENERGY DEMAND ASSESSMENT
Background Papers
Not archived · Council Link
EXISITNG PLANS AND ELEVATIONS
Plans
Not archived · Council Link
LOCAL LEAD FLOOD AUTHORITY
Consultee Comment
Not archived · Council Link
MR AND MRS DAVID BALL
Public Comment
Not archived · Council Link
MR DAVID JOHNSON-NEUTRAL(FULL)
Public Comment
Not archived · Council Link
NEIGH. NOTIF. - STANDARD - LIST
Neighbour Notification List
Not archived · Council Link
PLANNING STATEMENT
Background Papers
Not archived · Council Link
SCC HIGHWAYS
Consultee Comment
Not archived · Council Link
SEWER LONG SECTIONS-P1
Background Papers
Not archived · Council Link
Plans
Archived · Council Link
STANDARD DETAILS-P1
Background Papers
Not archived · Council Link
STANDARD DETAILS-P1
Background Papers
Not archived · Council Link
STATUTORY BNG METRIC
Background Papers
Not archived · Council Link
WORKSHEET FOR PLANNING APPLICATION
Correspondence
Not archived · Council Link

Take Action

Make your voice heard. Authorities need to hear from people who support new homes.

✉️ Write Email in Support View on Council Portal