← Back to Wokingham Borough Council

Status

Unknown
Received
n/a
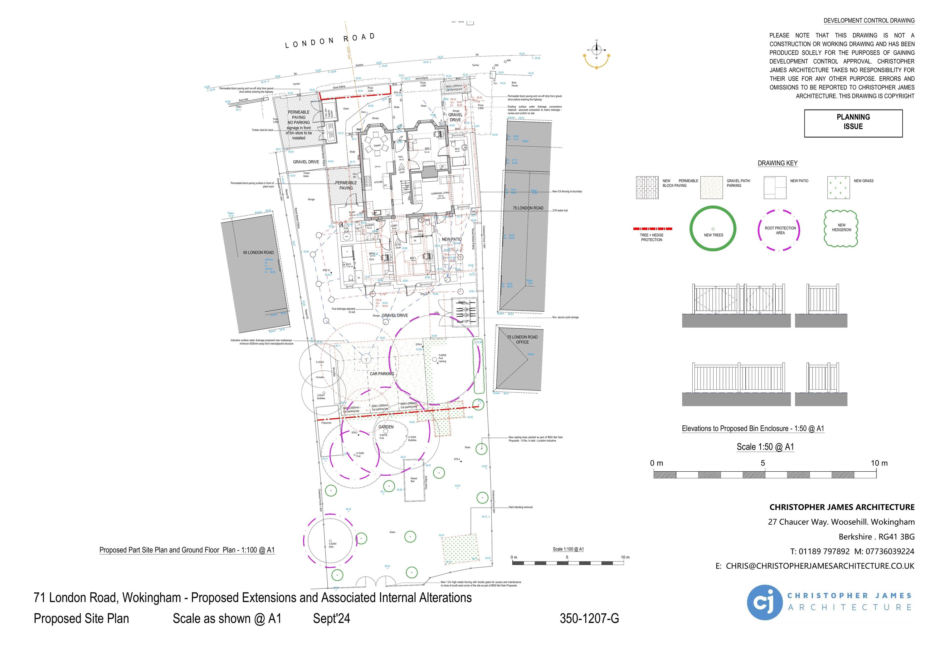
New dwellings
n/a

Summary

Application details not provided.

Full Proposal

Unknown

Documents

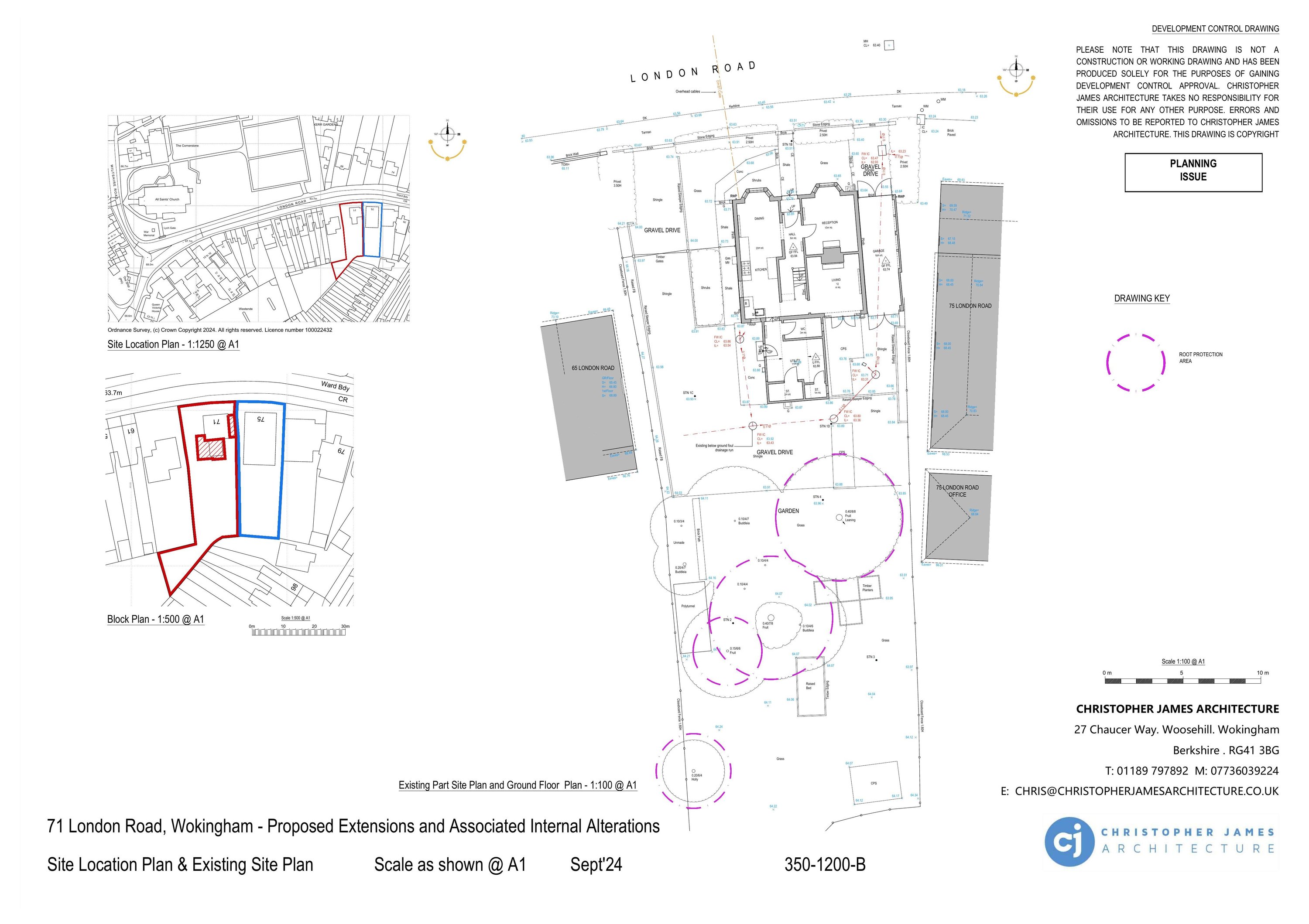
3501201 - Existing Floor and Roof Plans / Front and West Side Elevations
Planning Plans
Not archived · Council Link
3501202 - Existing Floor and Roof Plans / Rear and East Side Elevations
Planning Plans
Not archived · Council Link
350C1 Construction Management Plan
Planning Statements and Reports
Not archived · Council Link
71 London Road Arboricultural Impact Assessment December 2024
Planning Statements and Reports
Not archived · Council Link
71 London Road Plan of Tree Constraints December 2024
Planning Statements and Reports
Not archived · Council Link
71 London Road Wokingham - Arboricultural Impact Assessment
Planning Statements and Reports
Not archived · Council Link
71 London Road Wokingham - Arboricultural Method Statement
Planning Statements and Reports
Not archived · Council Link
Bat Endoscope Survey
Planning Statements and Reports
Not archived · Council Link
BNG Metric
Planning Statements and Reports
Not archived · Council Link
BNG Report
Planning Statements and Reports
Not archived · Council Link
CIL Form 1
Planning CIL Form
Not archived · Council Link
Comments_WokinghamTownCouncilPTCommittee_250010_4632071.pdf
Planning Comments
Not archived · Council Link
Comments_WokinghamTownCouncilPTCommittee_250010_4637622.pdf
Planning Comments
Not archived · Council Link
Covering Letter
Planning Statements and Reports
Not archived · Council Link
Decision Notice
Planning Decision Notice & Officer Report
Not archived · Council Link
Downlighter Specifications
Planning Revised Plans
Not archived · Council Link
Drainage Response 1.NT
Planning Consultation Response
Not archived · Council Link
Drawing Issue and Register
Planning Statements and Reports
Not archived · Council Link
Ecology response
Planning Consultation Response
Not archived · Council Link
Ecology response 1 (TC)
Planning Consultation Response
Not archived · Council Link
Highways response
Planning Consultation Response
Not archived · Council Link
Planning Design and Access Statement
Planning Statements and Reports
Not archived · Council Link
Preliminary Ecological Appraisal and Roost Assessment
Planning Statements and Reports
Not archived · Council Link
Planning Revised Plans
Archived · Council Link
Planning Plans
Archived · Council Link
Redacted Application Form
Planning Application Form Redacted
Not archived · Council Link
Signed Officer Report Draft Decision Notice
Planning Decision Notice & Officer Report
Not archived · Council Link
Signed Officer Report General
Planning Decision Notice & Officer Report
Not archived · Council Link
SUPERSEDED BNG Metric
Planning Statements and Reports
Not archived · Council Link
SUPERSEDED BNG Report
Planning Statements and Reports
Not archived · Council Link
SUPERSEDED Downlighter Specifications
Planning Statements and Reports
Not archived · Council Link
SUPERSEDED Preliminary Ecological Appraisal and Roost Assessment
Planning Statements and Reports
Not archived · Council Link
SUPERSEDED Proposed Floor and Roof Plans and Elevations
Planning Plans
Not archived · Council Link
SUPERSEDED Proposed Floor and Roof Plans and Elevations (Demolition)
Planning Plans
Not archived · Council Link
Planning Statements and Reports
Archived · Council Link
Planning Revised Plans
Archived · Council Link
SUPERSEDED Tree Protection Plan
Planning Statements and Reports
Not archived · Council Link
Swift Brick Specifications
Planning Statements and Reports
Not archived · Council Link
Technical Note: Detailed Bat Roost Assessment
Planning Statements and Reports
Not archived · Council Link
tree and landscape response - CR
Planning Consultation Response
Not archived · Council Link
Tree Protection Plan
Planning Revised Plans
Not archived · Council Link

Take Action

Make your voice heard. Authorities need to hear from people who support new homes.

✉️ Write Email in Support View on Council Portal