← Back to Wokingham Borough Council

Status

Unknown
Received
n/a
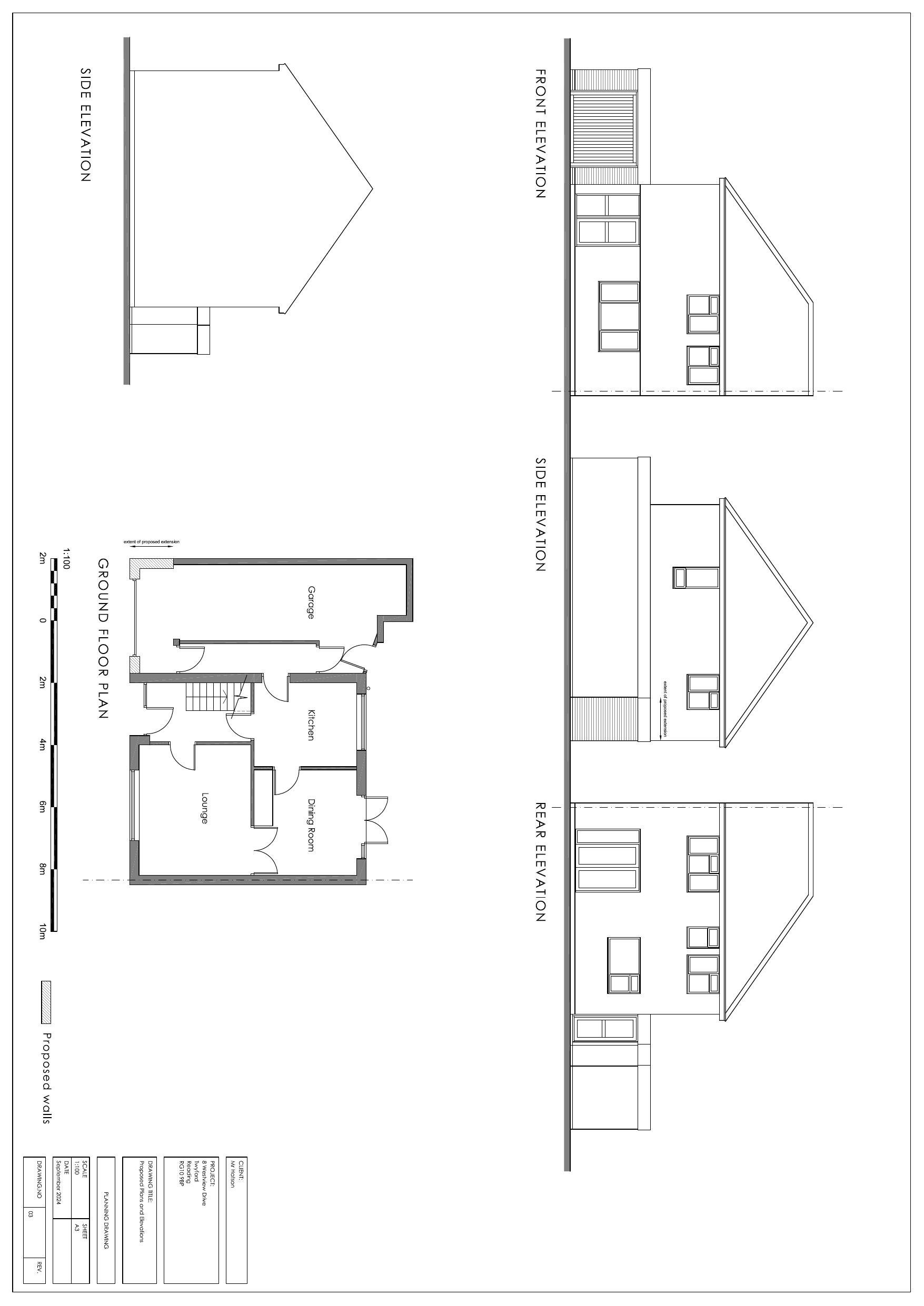
New dwellings
n/a

Full Proposal

Unknown

Documents

Planning Plans
Archived · Council Link
02 Existing Plans and Elevations
Planning Plans
Not archived · Council Link
Planning Plans
Archived · Council Link
Application Form Redacted
Planning Application Form Redacted
Not archived · Council Link
Cil Form 1
Planning CIL Form
Not archived · Council Link
Comments_TwyfordParishCouncil_250489_4649215.pdf
Planning Comments
Not archived · Council Link
Decision Notice
Planning Decision Notice & Officer Report
Not archived · Council Link
highways response
Planning Consultation Response
Not archived · Council Link
Signed Officer Report Draft Decision Notice
Planning Decision Notice & Officer Report
Not archived · Council Link
Signed Officer Report General
Planning Decision Notice & Officer Report
Not archived · Council Link

Take Action

Make your voice heard. Authorities need to hear from people who support new homes.

✉️ Write Email in Support View on Council Portal