← Back to Wyre Council

Status

Application Permitted
Received
20 Sep 2024
New dwellings
n/a

Full Proposal

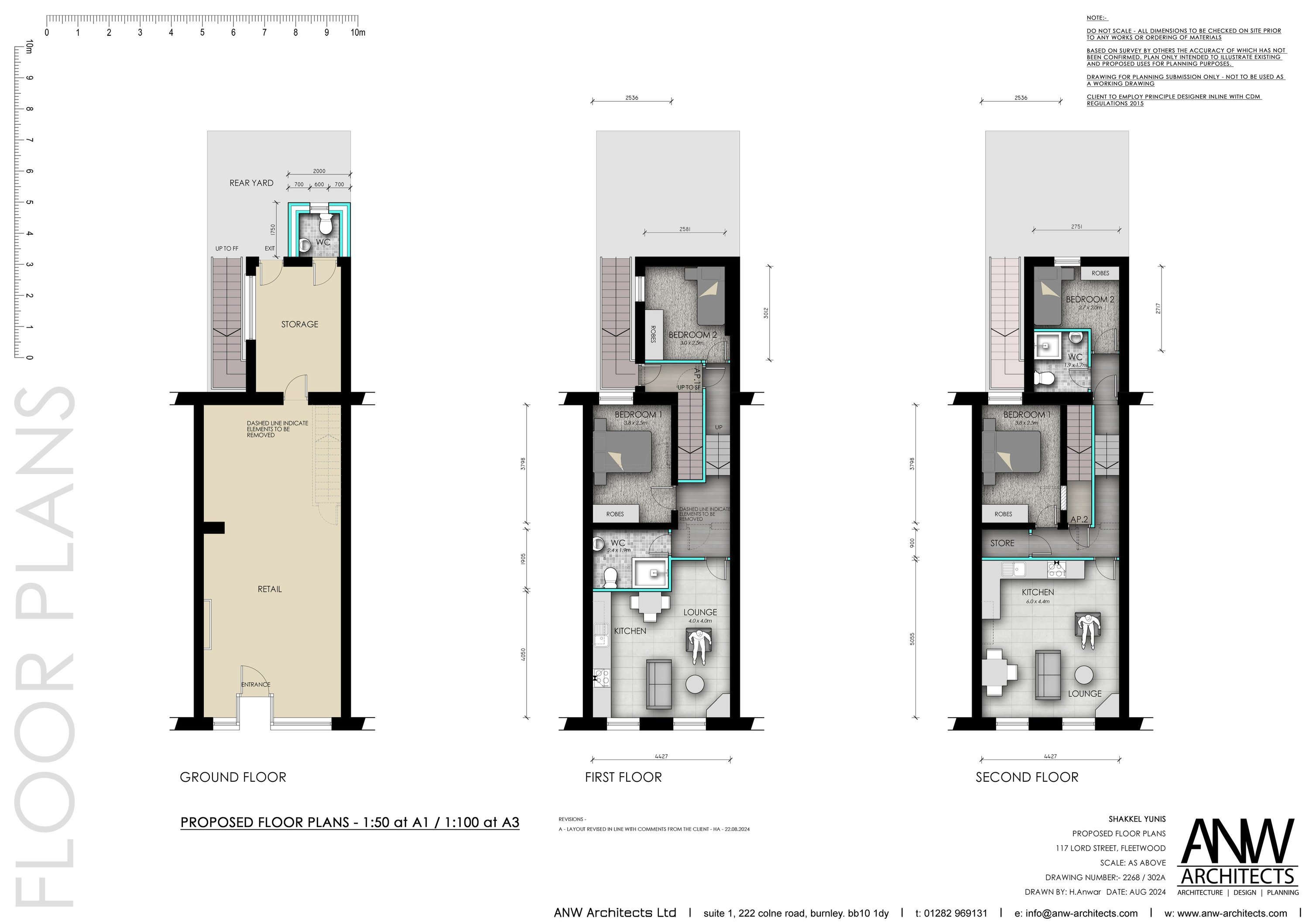
Proposed change of use of first and second floors from office use to 2 dwellings (C3), and erection of rear staircase and ground floor extension

Documents

* wyre drainage consultee
Consultee Response
Not archived · Council Link
* wyre drainage consultee
Consultee Response
Not archived · Council Link
- environment agency
Consultee Response
Not archived · Council Link
- environment agency
Consultee Response
Not archived · Council Link
Conservation officer
Consultee Response
Not archived · Council Link
Decision notice
Decision Notice
Not archived · Council Link
Delegated report
Delegated Report
Not archived · Council Link
Environmental protection - amenity
Consultee Response
Not archived · Council Link
Environmental protection - amenity
Consultee Response
Not archived · Council Link
Existing and proposed elevations
Approved Plans
Not archived · Council Link
Existing floor plans
Plans
Not archived · Council Link
Flood risk map
Superseded Document
Not archived · Council Link
Flood risk, climate change and sustainability statements
Application Documentation
Not archived · Council Link
Fra
Revised Document
Not archived · Council Link
Lcc highways
Consultee Response
Not archived · Council Link
Noise assessment
Application Documentation
Not archived · Council Link
Planning and heritage statement
Application Documentation
Not archived · Council Link
Approved Plans
Archived · Council Link
Waste
Consultee Response
Not archived · Council Link

Take Action

Make your voice heard. Authorities need to hear from people who support new homes.

✉️ Write Email in Support View on Council Portal