← Back to Wyre Council

Status

Application Permitted
Received
03 Oct 2024
New dwellings
n/a

Full Proposal

Erection of a detached dwelling (retrospective)

Documents

* wyre drainage consultee
Consultee Response
Not archived · Council Link
* wyre drainage consultee
Consultee Response
Not archived · Council Link
* wyre drainage consultee
Consultee Response
Not archived · Council Link
* wyre drainage consultee
Consultee Response
Not archived · Council Link
- ryan arrell tree officer
Consultee Response
Not archived · Council Link
- ryan arrell tree officer
Consultee Response
Not archived · Council Link
Contamination pro forma
Application Documentation
Not archived · Council Link
Decision notice
Decision Notice
Not archived · Council Link
Delegated report
Delegated Report
Not archived · Council Link
Drainage design statement
Application Documentation
Not archived · Council Link
Drainage plan
Superseded Plans
Not archived · Council Link
Drainage plan
Revised Plans
Not archived · Council Link
Existing landscaping plan
Plans
Not archived · Council Link
Plans
Archived · Council Link
Letter from drainage consultant
Application Documentation
Not archived · Council Link
Mrs janet lawson-marsden lcc highways
Consultee Response
Not archived · Council Link
Planning statement and supporting statements
Application Documentation
Not archived · Council Link
Proposed drainage plan
Superseded Plans
Not archived · Council Link
Proposed elevations
Superseded Plans
Not archived · Council Link
Proposed elevations
Superseded Plans
Not archived · Council Link
Proposed elevations
Superseded Plans
Not archived · Council Link
Proposed elevations
Revised Plans
Not archived · Council Link
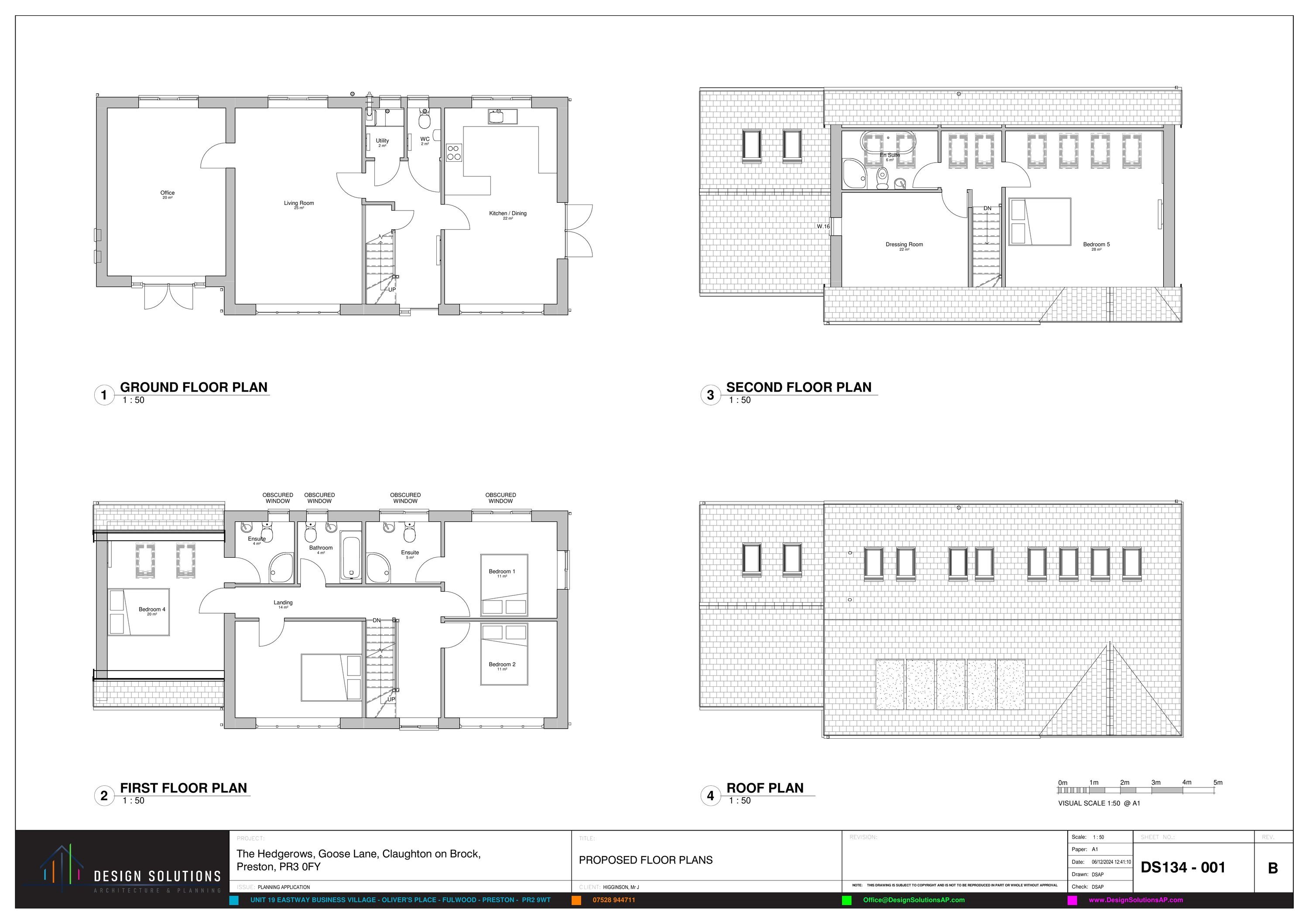
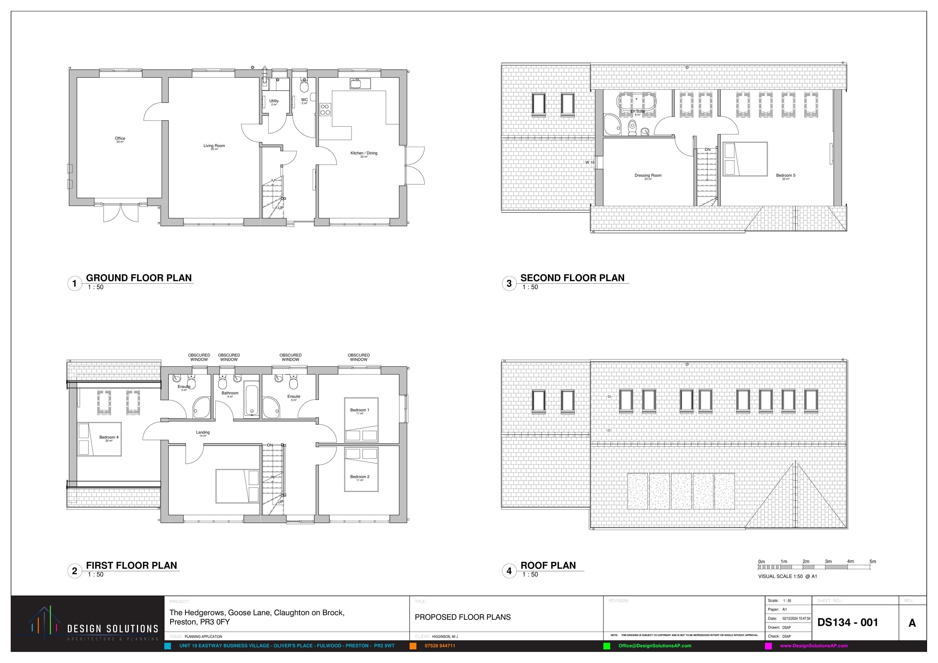
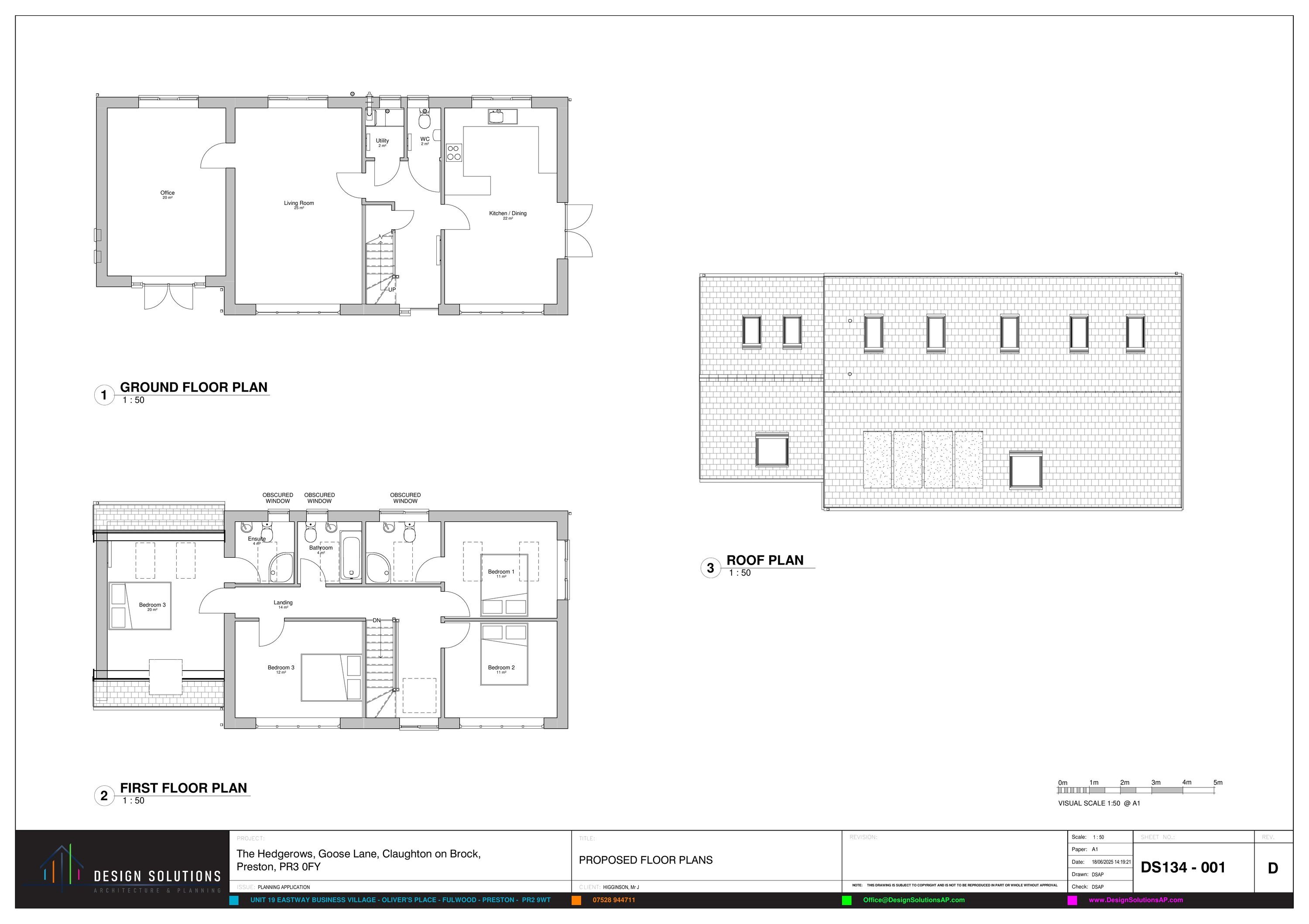
Proposed floor plan
Superseded Plans
Not archived · Council Link
Revised Plans
Archived · Council Link
Superseded Plans
Archived · Council Link
Superseded Plans
Archived · Council Link
Proposed landscaping plan
Superseded Plans
Not archived · Council Link
Proposed section x - x
Revised Plans
Not archived · Council Link
Proposed sections
Superseded Plans
Not archived · Council Link
Plans
Archived · Council Link
Site Location Plan
Archived · Council Link
United utilities
Consultee Response
Not archived · Council Link
United utilities
Consultee Response
Not archived · Council Link

Take Action

Make your voice heard. Authorities need to hear from people who support new homes.

✉️ Write Email in Support View on Council Portal