← Back to Wyre Council

Status

Application Permitted
Received
21 Oct 2024
New dwellings
n/a

Full Proposal

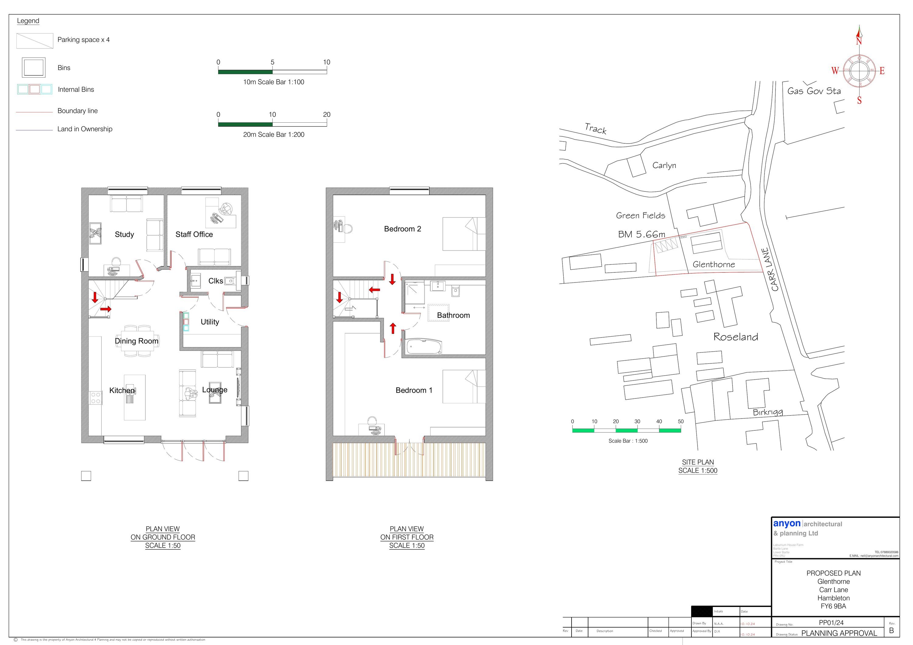
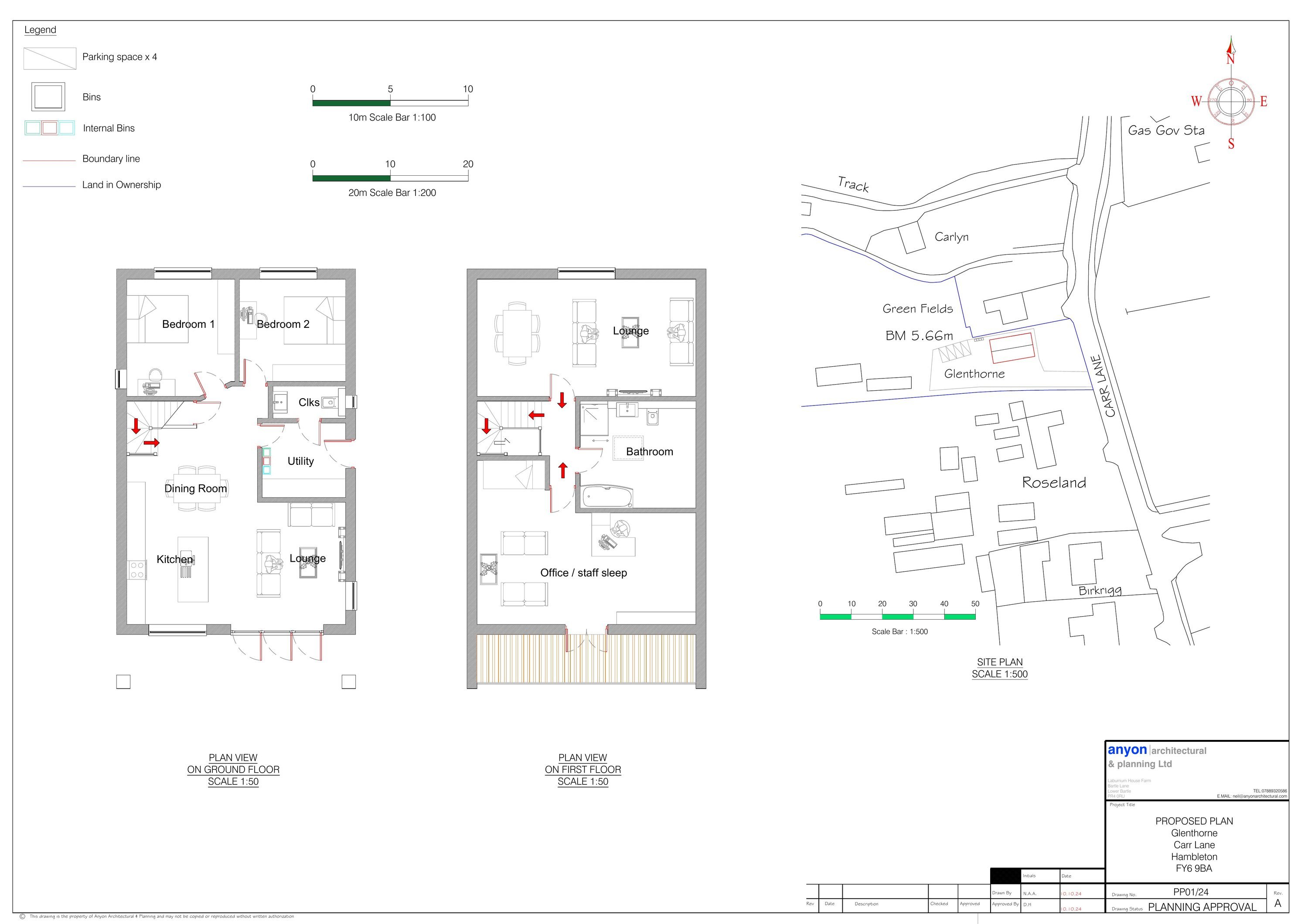
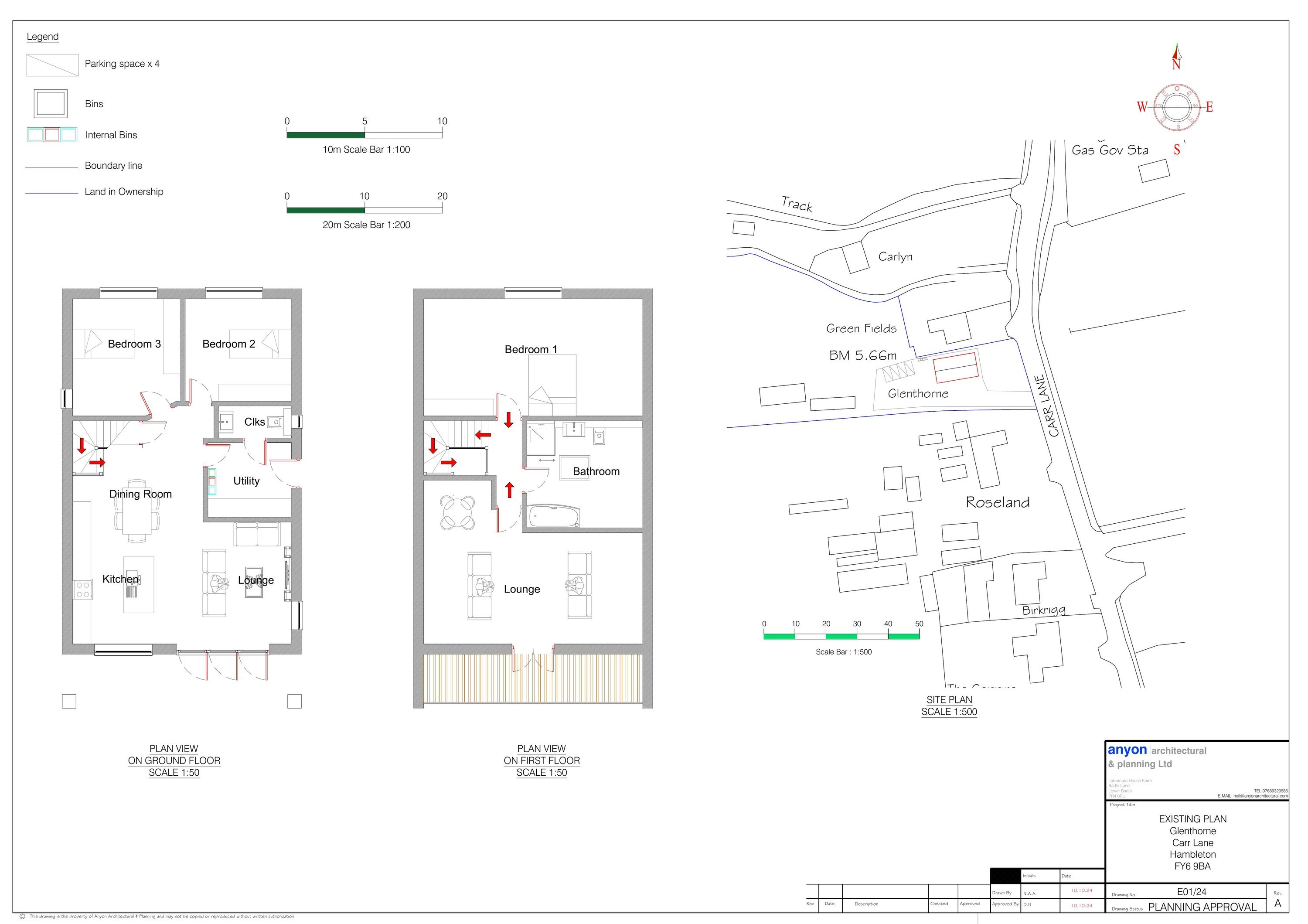
Proposed change of use from dwelling (C3a) to childrens care home (C2) for up to 2 children aged between 7-18 and change of use of land to provide parking and amenity area (part retrospective)

Documents

* wyre drainage consultee
Consultee Response
Not archived · Council Link
* wyre drainage consultee
Consultee Response
Not archived · Council Link
* yvonne walton hambleton parish council
Consultee Response
Not archived · Council Link
- environment agency
Consultee Response
Not archived · Council Link
- environment agency
Consultee Response
Not archived · Council Link
- environment agency
Consultee Response
Not archived · Council Link
additional information re staff and parking/ access from agent
Application Documentation
Not archived · Council Link
Avoiding danger from underground services
Consultee Response
Not archived · Council Link
Cadent gas
Consultee Response
Not archived · Council Link
Cadent gas map
Consultee Response
Not archived · Council Link
Cadent gas map
Consultee Response
Not archived · Council Link
Consultee Response
Archived · Council Link
Climate and sustainability statement
Application Documentation
Not archived · Council Link
Cllr call in confirmation
Application Documentation
Not archived · Council Link
Committee report
Committee Report
Not archived · Council Link
Committee report
Committee Report
Not archived · Council Link
Decision notice
Decision Notice
Not archived · Council Link
Flood risk assessment
Superseded Document
Not archived · Council Link
Fra
Flood Risk Assessment
Not archived · Council Link
Lcc childcare services
Consultee Response
Not archived · Council Link
Lcc childcare services
Consultee Response
Not archived · Council Link
Mr jonathan faill environmental protection
Consultee Response
Not archived · Council Link
Mrs janet lawson-marsden lcc highways
Consultee Response
Not archived · Council Link
Mrs janet lawson-marsden lcc highways
Consultee Response
Not archived · Council Link
Planning and management statement
Application Documentation
Not archived · Council Link
Superseded Plans
Archived · Council Link
Revised Plans
Archived · Council Link
Proposed floor plan and site layout
Approved Plans
Not archived · Council Link
Superseded Plans
Archived · Council Link
Revised
Superseded Document
Not archived · Council Link
Approved Plans
Archived · Council Link
Site Location Plan
Archived · Council Link
Superseded Plans
Archived · Council Link
Superseded Plans
Archived · Council Link
Superseded Plans
Archived · Council Link
Specification for safe working in the vicinity of cadent assets
Consultee Response
Not archived · Council Link
Wyre council drainage officer
Consultee Response
Not archived · Council Link

Take Action

Make your voice heard. Authorities need to hear from people who support new homes.

✉️ Write Email in Support View on Council Portal