← Back to Wyre Council

Status

Application Permitted
Received
04 Nov 2024
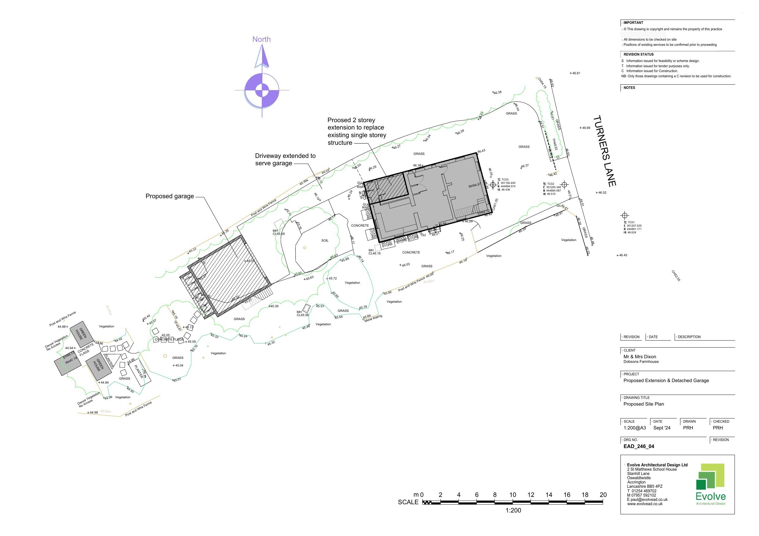
New dwellings
n/a

Full Proposal

Proposed erection of 1.no 2 storey extension following the demolition of existing lean to, and the erection of detached garage with home office in roof space

Documents

* brian hamilton peak and northern footpaths society
Consultee Response
Not archived · Council Link
- ryan arrell tree officer
Consultee Response
Not archived · Council Link
Arboricultural impact assessment
Application Documentation
Not archived · Council Link
Bat assessment
Application Documentation
Not archived · Council Link
Decision notice
Decision Notice
Not archived · Council Link
Delegated rpeort
Delegated Report
Not archived · Council Link
Ecology
Consultee Response
Not archived · Council Link
Existing plans and elevations
Plans
Not archived · Council Link
Plans
Archived · Council Link
Ms lynne nelson
Consultee Response
Not archived · Council Link
Parish
Consultee Response
Not archived · Council Link
Proposed garage elevations and floor plans
Approved Plans
Not archived · Council Link
Proposed house elevations and floor plans
Approved Plans
Not archived · Council Link
Approved Plans
Archived · Council Link
Approved Plans
Archived · Council Link
Supporting statement
Application Documentation
Not archived · Council Link
United utilities
Consultee Response
Not archived · Council Link

Take Action

Make your voice heard. Authorities need to hear from people who support new homes.

✉️ Write Email in Support View on Council Portal