← Back to Wyre Council

Status

Application Permitted
Received
02 Dec 2024
New dwellings
n/a

Full Proposal

Proposed development of 4.no single storey dwellings with detached garages, a new detached garage for Mulberry House, and alterations to Library Cottage to form a single dwelling.

Documents

(plots 104) garage plans and elevations
Approved Plans
Not archived · Council Link
* wyre drainage consultee
Consultee Response
Not archived · Council Link
* wyre drainage consultee
Consultee Response
Not archived · Council Link
- gmeu consultee comments
Consultee Response
Not archived · Council Link
- gmeu consultee comments
Consultee Response
Not archived · Council Link
- gmeu consultee comments
Consultee Response
Not archived · Council Link
- great eccleston parish council
Consultee Response
Not archived · Council Link
- ryan arrell tree officer
Consultee Response
Not archived · Council Link
- ryan arrell tree officer
Consultee Response
Not archived · Council Link
Arboricultural survey
Application Documentation
Not archived · Council Link
Bng assessment
Superseded Plans
Not archived · Council Link
Bng metric
Application Documentation
Not archived · Council Link
Bng metric
Superseded Plans
Not archived · Council Link
Bng report
Application Documentation
Not archived · Council Link
Brick type- alderley russett
Application Documentation
Not archived · Council Link
Cllr call in confirmation
Application Documentation
Not archived · Council Link
Committee report
Committee Report
Not archived · Council Link
Decision notice
Decision Notice
Not archived · Council Link
Drainage strategy
Superseded Document
Not archived · Council Link
Drainage strategy report
Application Documentation
Not archived · Council Link
Drainage strategy report
Superseded Document
Not archived · Council Link
Ecology report
Application Documentation
Not archived · Council Link
Edgemere roof tiles
Application Documentation
Not archived · Council Link
Environmental health contamination
Consultee Response
Not archived · Council Link
Eurologik windows guide
Application Documentation
Not archived · Council Link
Evcp data
Application Documentation
Not archived · Council Link
Existing elevations (library cottage)
Plans
Not archived · Council Link
Plans
Archived · Council Link
Geo environmental report phase 1
Application Documentation
Not archived · Council Link
Growth lancashire
Consultee Response
Not archived · Council Link
Habitat bank quotation
Application Documentation
Not archived · Council Link
Heritage statement
Application Documentation
Not archived · Council Link
House type 1 (plots 1-3) proposed floor plan
Approved Plans
Not archived · Council Link
House type 1(plots 1-3)- proposed elevations
Approved Plans
Not archived · Council Link
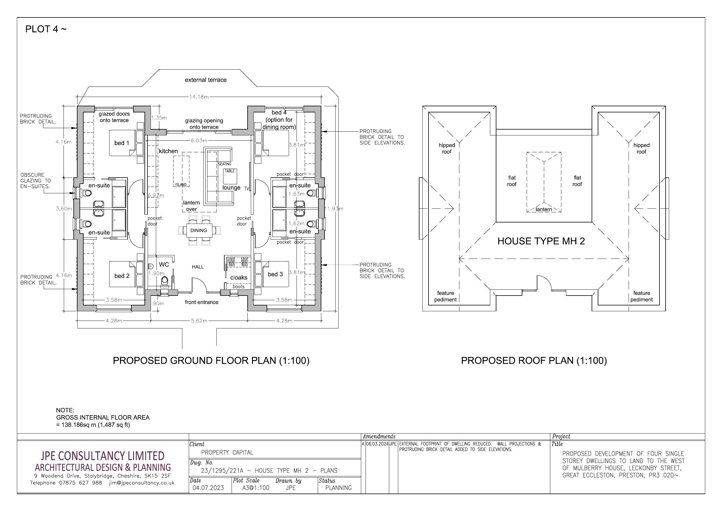
House type 2 (plot 4)- proposed elevations
Approved Plans
Not archived · Council Link
Lancashire fire and rescue
Consultee Response
Not archived · Council Link
Landscape and planting plan
Plans
Not archived · Council Link
Landscape strategy
Superseded Plans
Not archived · Council Link
Landscaping plan
Superseded Plans
Not archived · Council Link
Lcc highways
Consultee Response
Not archived · Council Link
Library cottage- existing elevations
Superseded Plans
Not archived · Council Link
Library cottage- existing floor plans
Plans
Not archived · Council Link
Library cottage- proposed elevations
Superseded Plans
Not archived · Council Link
Library cottage- proposed floor plan
Approved Plans
Not archived · Council Link
Lighting assessment
Application Documentation
Not archived · Council Link
Materials schedule
Application Documentation
Not archived · Council Link
Mr ryan derbyshire
Consultee Response
Not archived · Council Link
Mulberry cottage- proposed detached garage plans
Approved Plans
Not archived · Council Link
Natural england
Consultee Response
Not archived · Council Link
Planning statement
Application Documentation
Not archived · Council Link
Proposed elevations (library cottage)
Approved Plans
Not archived · Council Link
Superseded Plans
Archived · Council Link
Superseded Plans
Archived · Council Link
Approved Plans
Archived · Council Link
Refuse and recycling statement
Application Documentation
Not archived · Council Link
Site access visibility splays
Plans
Not archived · Council Link
Approved Plans
Archived · Council Link
Sustainability statement
Application Documentation
Not archived · Council Link
Tree constraints report
Application Documentation
Not archived · Council Link
Tree officer update
Consultee Response
Not archived · Council Link
United utilities
Consultee Response
Not archived · Council Link
Waste
Consultee Response
Not archived · Council Link
Wyre waste officer
Consultee Response
Not archived · Council Link

Take Action

Make your voice heard. Authorities need to hear from people who support new homes.

✉️ Write Email in Support View on Council Portal