← Back to Wyre Council

Status

Prior Approval Refused
Received
20 Feb 2025
New dwellings
n/a

Summary

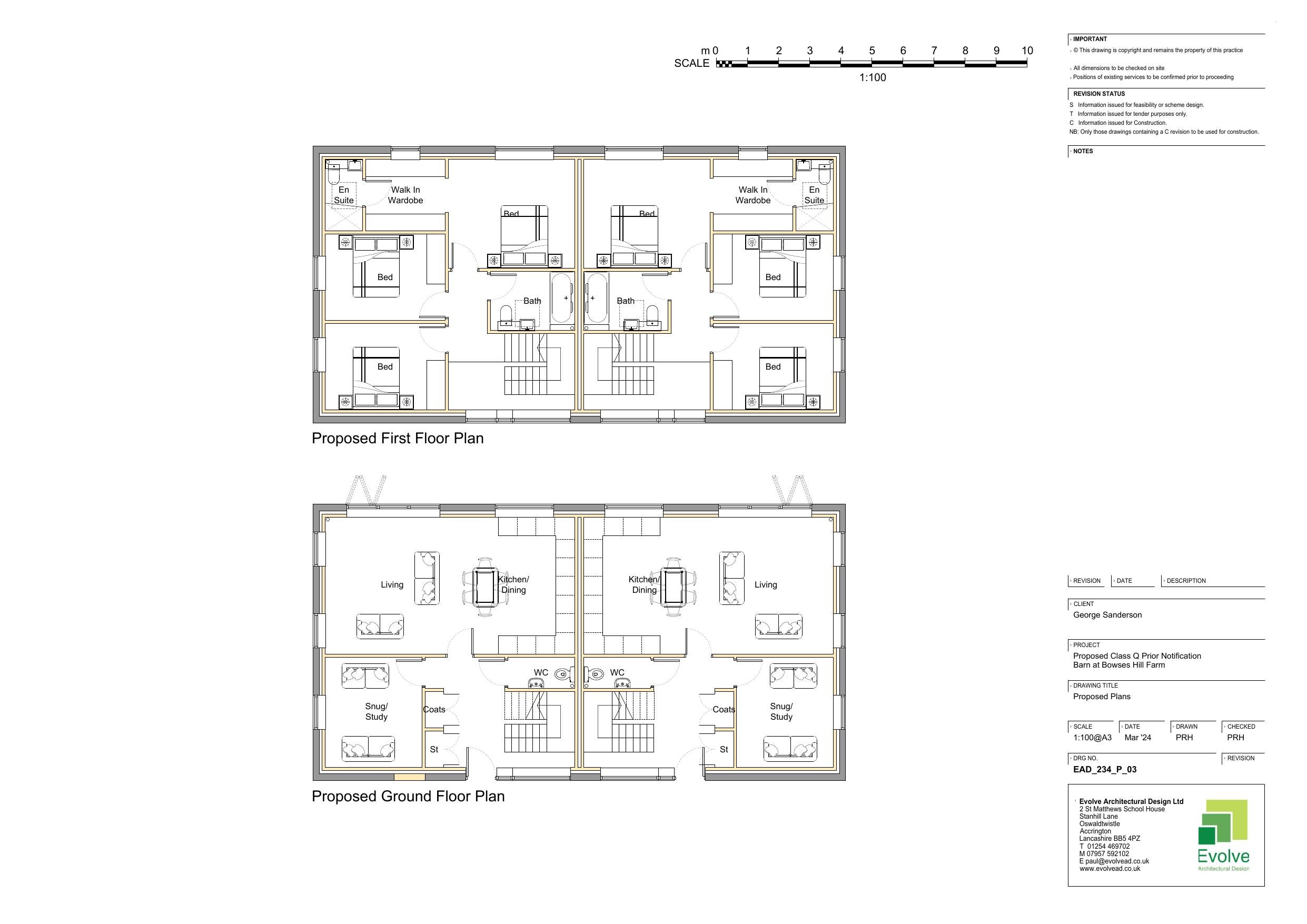
Convert agricultural building to two dwelling houses under Class Q permitted development.

Full Proposal

Prior approval for proposed change of use of an agricultural building to 2 no. dwelling houses (C3) with building operations under Class Q of the GPDO

Documents

* wyre drainage consultee
Consultee Response
Not archived · Council Link
- gmeu consultee comments
Consultee Response
Not archived · Council Link
Addendum to structural inspection
Application Documentation
Not archived · Council Link
Appeal form
Appeal Documentation
Not archived · Council Link
Appeal neighbour letter
Appeal Documentation
Not archived · Council Link
Appeal Documentation
Archived · Council Link
Appeal statement
Appeal Documentation
Not archived · Council Link
Application form - without personal data
Application Form
Not archived · Council Link
Bat survey
Revised Document
Not archived · Council Link
Decision notice
Decision Notice
Not archived · Council Link
Delegated report
Delegated Report
Not archived · Council Link
Environment agency
Consultee Response
Not archived · Council Link
Existing floor plans and elevations
Plans
Not archived · Council Link
Flood risk assessment
Flood Risk Assessment
Not archived · Council Link
Lcc highways
Consultee Response
Not archived · Council Link
Lpa appeal questionnaire
Appeal Documentation
Not archived · Council Link
Objection
Public Comment
Not archived · Council Link
Objects
Public Comment
Not archived · Council Link
Objects
Public Comment
Not archived · Council Link
Objects
Public Comment
Not archived · Council Link
Objects
Public Comment
Not archived · Council Link
Objects
Public Comment
Not archived · Council Link
Objects
Public Comment
Not archived · Council Link
Objects
Public Comment
Not archived · Council Link
Objects
Public Comment
Not archived · Council Link
Objects
Public Comment
Not archived · Council Link
Objects
Public Comment
Not archived · Council Link
Peak and northern footpaths society
Consultee Response
Not archived · Council Link
Planning statement
Application Documentation
Not archived · Council Link
Pnfs
Consultee Response
Not archived · Council Link
Preliminary bat roost assessment report
Superseded Document
Not archived · Council Link
Proposed elevations
Plans
Not archived · Council Link
Prow
Consultee Response
Not archived · Council Link
Prow map
Consultee Response
Not archived · Council Link
Signed statutory declaration
Application Documentation
Not archived · Council Link
Signed statutory declaration
Application Documentation
Not archived · Council Link
Site Location Plan
Archived · Council Link
Stalmine-with-staynall parish council
Consultee Response
Not archived · Council Link
Structural inspection report
Application Documentation
Not archived · Council Link
Tree officer
Consultee Response
Not archived · Council Link
Updated appeal neighbour notification
Appeal Documentation
Not archived · Council Link

Take Action

Make your voice heard. Authorities need to hear from people who support new homes.

✉️ Write Email in Support View on Council Portal